欢迎来到龙图网在线图文分享平台-CAD图纸,设计说明书,工业设计3D模型,三维软件下载!   客服QQ:2363701252
热搜:

工艺夹具 模具设计 数控编程 土木工程 3D模型

Q761-年产10万吨煤制醋酸车间合成气一氧化碳变换工段初步设计 下载积分:50 资料编号: Q761

1.打开支付宝或者微信扫描二维码。
2.填写金额:50 
3.添加备注,填写资料编号:
资料编号: Q761
4.支付成功后,请发资料编号到邮箱:jxsj168@qq.com
会有专人在15分钟内把资料发到您邮箱
备注:如果付款忘记填写资料编号,则发邮件时附带您的交易明细截图即可。
请耐心等待,如超过30分钟还没收到,请联系客服QQ:2363701252
点击分享:

作品描述

作品包括:

Word版说明书1份,共51页,约15000字

开题报告一份

外文翻译一份

CAD版本图纸,共3张

5KE_XXQ8D160~JJ6}VEHE68.png

摘 要

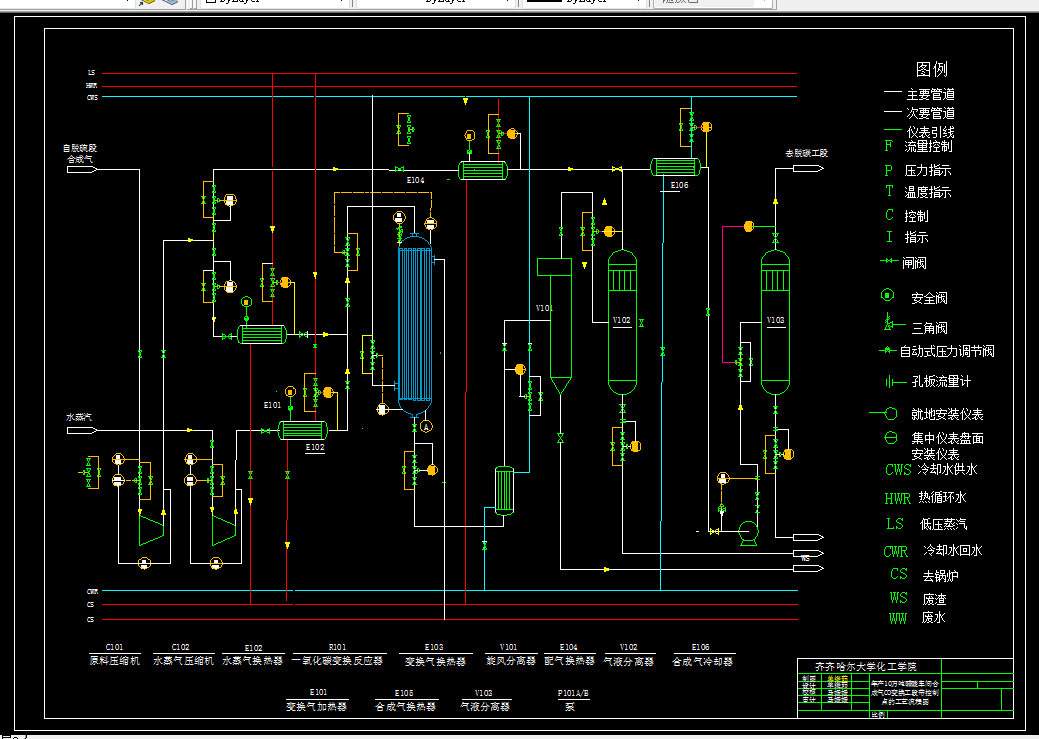
本设计是年产10万吨煤制醋酸车间合成气一氧化碳变换工段初步设计。首先阐述了醋酸的作用、意义和实际应用方面的价值,研究现状以及发展前景。其次根据选题的设计依据对厂址的选择、设计规模与生产制度、原料与产品规格进行了介绍。通过对多种工艺路线的比较确定了工艺流程,从工艺计算、关键设备选型计算、车间布置、安全生产、环境保护等多方面论证了该工艺的可行性,并用Aspen模拟全流程进行验证。物料衡算及热量衡算的工艺计算结果对设备进行设备选型,并对该工段的工艺控制、安全、三废处理给予说明。最后根据工艺条件手绘带控制点的工艺流程图和利用Auto CAD绘制了车间平立面布置图及主体设备装配图,并且完成了20000字的设计说明书。

关键词:变换反应;一氧化碳;流程模拟;初步设计

目 录

摘 要 I

Abstract II

第1章 总 论 1

1.1 概述 1

1.1.1 选题的意义及作用 1

1.1.2 国内外研究现状及发展前景 1

1.2 设计依据 2

1.3 厂址选择 2

1.4 设计规模与生产制度 3

1.4.1设计规模 3

1.4.2 生产制度 3

1.5 原料与产品规格 3

1.5.1 主要原料规格 3

1.5.2 产品规格 4

第2章 工艺设计与计算 5

2.1 CO变换工艺原理 5

2.2 变换工艺路线的选择 5

2.3 工艺流程概述 5

2.4工艺流程示意图 6

2.4 工艺参数 6

2.5 物料衡算 7

2.5.1 一氧化碳变换反应器物料衡算 7

2.5.2 气液分离器物料衡算 10

2.6 热量衡算 11

2.6.1 变换反应器热量衡算 11

2.6.2 气液分离器热量衡算 13

2.6.3 换热器热量衡算 14

第3章 设备计算与选型 18

3.1固定床反应器的选型设计计算 18

3.1.1 催化剂填充量的计算 18

3.1.2 床层高度的计算 18

3.1.3 管束的数目与排列 19

3.1.4 换热介质的选择与换热温度的计算 19

3.1.5 机械强度和校核 21

3.1.6 管口设计 24

3.2 换热器的选型计算 25

3.2.1 配气加热器 25

3.2.2 反应气换热器 27

3.2.3 合成气冷却器 28

3.2.4 水蒸汽冷却器 28

3.2.5 变换气冷却器 29

3.2.6 旋风分离器 30

3.2.7 压缩机 31

3.2.8 气液分离器 32

第4章 设备选型一览表 34

第5章 车间设备布置设计 35

5.1 平面布置 35

5.1.1 第一层平面布置 35

5.1.2 第二层平面布置 36

5.2 立面布置 36

第6章 自动控制 37

6.1 反应器控制 37

6.2 换热器控制 37

6.3 泵控制 38

6.4 压缩机控制 38

第7章 安全防火与环境保护 39

7.1 防火防爆 39

7.1.1 火灾于爆炸发生的主要原因 39

7.1.2 火灾与爆炸的预防措施 39

7.2 三废的产生情况 39

7.3 三废的处理情况 39

7.4噪声 40

第8章 公用工程 41

8.1 供水及排水 41

8.2 供电 41

8.3 供暖 41

8.4 供汽 41

结束语 42

致 谢 43

参考文献 44

温馨提示:

1、题目前面的备注【字母数字编号】为本站整理分类的编号,与课题内容无关,请选题时忽视;

2、若题目上备注三维,则表示文件里包含三维源文件,由于三维组成零件数量较多,为保证预览截图的简洁性,本站将三维文件夹进行了打包。三维及CAD预览截图,均为本站电脑打开软件进行截图的,保证能够打开,下载原件超高清,下载后解压即可;

3、本站所有资源如无特殊说明,都需要本地电脑安装Office2007。图纸软件为AutoCAD,PROE,UG,SolidWorks,CATIA等;

4、本站所有图文资料仅供用户学习参考,不作为任何商用或其他用途;
5、本站不保证下载资源的准确性、安全性和完整性, 不包修改,不支持退换,同时也不承担用户因使用这些下载资源对自己和他人造成任何形式的伤害或损失;

6、 下载文件中如有侵权或不适当内容,请与我们联系,我们立即纠正。


线