欢迎来到龙图网在线图文分享平台-CAD图纸,设计说明书,工业设计3D模型,三维软件下载!   客服QQ:2363701252
热搜:

工艺夹具 模具设计 数控编程 土木工程 3D模型

Q765-年产2000t烷醇酰胺生产车间的初步设计 下载积分:50 资料编号: Q765

1.打开支付宝或者微信扫描二维码。
2.填写金额:50 
3.添加备注,填写资料编号:
资料编号: Q765
4.支付成功后,请发资料编号到邮箱:jxsj168@qq.com
会有专人在15分钟内把资料发到您邮箱
备注:如果付款忘记填写资料编号,则发邮件时附带您的交易明细截图即可。
请耐心等待,如超过30分钟还没收到,请联系客服QQ:2363701252
点击分享:

作品描述

作品包括:

Word版说明书1份,共44页,约19000字

PPT答辩一份

外文翻译一份

CAD版本图纸,共3张

TRLFK}`8VROFSA0SQZ1LTBH.png

摘  要

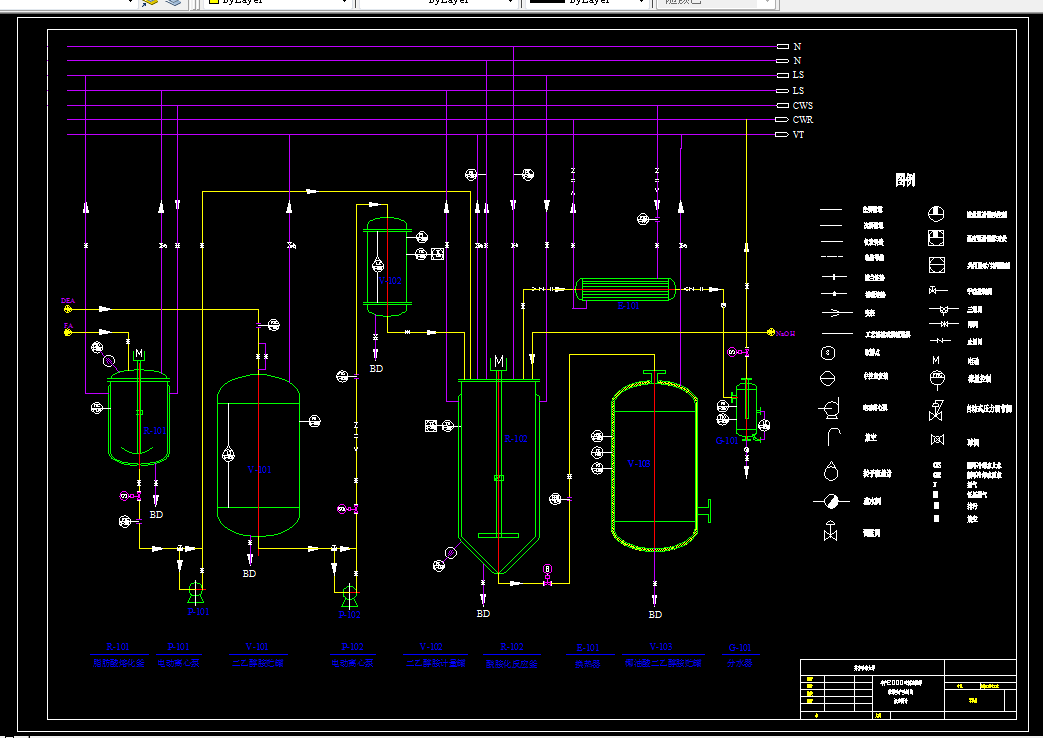
本设计是椰子油酸为原料年产2000吨脂肪酸烷醇酰胺生产车间的初步设计。说明书首先阐述了烷醇酰胺的作用与意义以及实际应用方面的价值、研究现状及发展前景、各种方法生产烷醇酰胺的特点比较;其次介绍了课题的设计依据、厂址的选择、设计规模与生产制度、原料与产品规格;通过工艺原理及多种工艺路线的比较确定了工艺流程,进行了整个生产过程的物料衡算、反应器及换热器等主要设备的热量衡算;通过物料衡算及热量衡算的结果,对酰胺化反应釜等主要设备进行设备选型;并且根据设备布置原则对车间设备进行了布置;对自动控制、安全和环境保护及公用工程进行了合理的设计。完成了20 000字的设计说明书,对生产工艺流程图、车间平立面布置图及主体设备装配图进行了绘制。

关键词:烷醇酰胺;酰胺化反应釜;椰油酸;二乙醇胺;初步设计

目  录

摘  要 I

Abstract II

第1章  总  论 1

1.1  概述 1

1.1.1  椰油烷醇酰胺的作用与意义以及理论或实际应用方面的价值 1

1.1.2  研究现状及发展前景 1

1.2  设计依据 2

1.3  厂址选择 3

1.3.1  厂址选择原则 3

1.3.2  具体方案 3

1.4  设计规模与生产制度 4

1.4.1  设计规模 4

1.4.2  生产制度 4

1.5  原料产品规格 5

1.5.1  原料种类 5

1.5.2  原料规格 5

1.5.3  产品规格 5

第2章  工艺设计和计算 7

2.1  工艺原理 7

2.2 工艺路线的选择 8

2.2.1  工艺路线1 8

2.2.2  工艺路线2 8

2.2.3  工艺路线3 8

2.2.4  工艺路线4 9

2.2.5  工艺路线选择 9

2.3  工艺流程简述 9

2.4 工艺参数 9

2.5  物料衡算 10

2.5.1  物料衡算的意义和作用 10

2.5.2  物料衡算的方法与步骤 10

2.5.3  物料衡算 11

2.5.4 物料衡算表(以小时计) 12

2.6  热量计算 13

2.6.1  热量衡算的意义和作用 13

2.6.2  热量衡算的方法和步骤 13

2.6.3  热量衡算 14

第3章  设备选型 17

3.1  设备选型原则 17

3.2  主要设备工艺计算 17

3.2.1 酰胺化反应釜设备计算 17

3.2.2  换热器计算 22

3.3  其他设备的选择 24

3.3.1  二乙醇胺贮罐的设计选型 24

3.3.2  椰油酸熔化釜的设计 24

3.3.3  分水器的设计 25

3.3.4  计量罐的设计 25

3.3.5  液面计的设计 26

第4章  设备一览表 27

第5章  车间设备布置设计 28

5.1  车间布置设计的原则 28

5.1.1  车间设备布置的原则 28

5.1.2  车间设备平面布置原则 28

5.1.3  车间设备立面布置的原则 28

5.2  车间设备布置 29

5.2.1  车间设备平面布置 29

5.2.2  车间设备立面布置 29

第6章  自动控制 30

6.1  主要的控制原理 30

6.2  控制水平及控制点 30

6.2.1 反应温度控制 30

6.2.2 反应压力控制 30

6.2.3 控制水平 31

第7章  安全及环境保护 32

7.1  三废产生情况 32

7.2  三废处理情况 32

第8章  公用工程 33

8.1  供水 33

8.1.1  设计内容 33

8.1.2  生产用水 33

8.1.3  生活用水及消防用水 34

8.2  供电 34

8.3  通风 34

结束语 35

参考文献 36

致  谢 38

温馨提示:

1、题目前面的备注【字母数字编号】为本站整理分类的编号,与课题内容无关,请选题时忽视;

2、若题目上备注三维,则表示文件里包含三维源文件,由于三维组成零件数量较多,为保证预览截图的简洁性,本站将三维文件夹进行了打包。三维及CAD预览截图,均为本站电脑打开软件进行截图的,保证能够打开,下载原件超高清,下载后解压即可;

3、本站所有资源如无特殊说明,都需要本地电脑安装Office2007。图纸软件为AutoCAD,PROE,UG,SolidWorks,CATIA等;

4、本站所有图文资料仅供用户学习参考,不作为任何商用或其他用途;
5、本站不保证下载资源的准确性、安全性和完整性, 不包修改,不支持退换,同时也不承担用户因使用这些下载资源对自己和他人造成任何形式的伤害或损失;

6、 下载文件中如有侵权或不适当内容,请与我们联系,我们立即纠正。


线