

作品包括:
Word版说明书1份,共22页
工序卡4张
工艺过程卡1张
CAD版本图纸,共5张

摘要
设计是在模具专业理论教学之后进行的实践性教学环节。是对所学知识的一次总检验,是走向工作岗位前的一次实战演习。其目的是,综合运用所学课程的理论和实践知识,设计一副完整的工艺分析与夹具设计训练、培养和提高自己的工作能力。巩固和扩充机械专业课程所学内容,掌握夹具设计与制造的方法、步骤和相关技术规范。熟练查阅相关技术资料。掌握夹具设计与制造的基本技能,如制件工艺性分析、工艺方案论证、工艺计算、加工设备选定、制造工艺、收集和查阅设计资料,绘图及编写设计技术文件等。
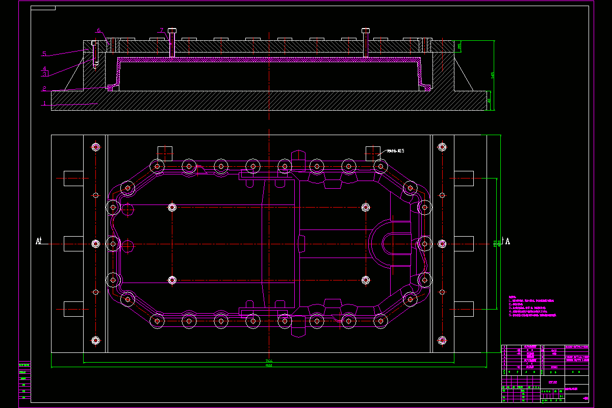
本设计主要对发动机油底壳进行工艺分析和夹具设计。结合公司实际生产要求和产品的特点,在厂原有的设计上,对工装夹具进行了改进设计。本设计对发动机油底壳加工工艺进行了分析,得出了最佳加工方案,在充分保证零件质量与精度的前提下,选择高生产率的加工工艺,降低生产成本,从而有效地节约了材料。本设计中使用计算机软件进了辅助设计,在保证高精度的同时简化了传统的繁琐计算过程,使设计更为便捷。
关键词夹具;加工工艺;辅助设计;CAD
目录
摘要3
一、序言5
二、零件的工艺分析及生产类型的确定8
2.1.零件的作用8
2.2.零件的工艺分析8
2.3.零件的生产类型9
三、选择毛坯,确定毛坯尺寸,设计毛坯图10
3.1.选择毛坯10
3.2.确定机械加工余量及毛坯尺寸公差10
3.3.确定毛坯尺寸及公差等级10
3.4.设计毛坯图10
四、选择加工方法,制定工艺路线12
4.1.定位基准的选择12
4.2.零件加工方法的选择12
4.3.制定工艺路线13
五、工序设计14
5.1.选择加工设备与工艺装备14
5.2.确定工序尺寸15
六、确定切削用量及基本时间(只针对本次设计的钻孔50工序) 16
6.1.工序分析16
6.2.确定切削用量及基本工时16
七、夹具设计18
八、设计小结20
致谢21
参考文献22
温馨提示:
1、题目前面的备注【字母数字编号】为本站整理分类的编号,与课题内容无关,请选题时忽视;
2、若题目上备注三维,则表示文件里包含三维源文件,由于三维组成零件数量较多,为保证预览截图的简洁性,本站将三维文件夹进行了打包。三维及CAD预览截图,均为本站电脑打开软件进行截图的,保证能够打开,下载原件超高清,下载后解压即可;
3、本站所有资源如无特殊说明,都需要本地电脑安装Office2007。图纸软件为AutoCAD,PROE,UG,SolidWorks,CATIA等;
4、本站所有图文资料仅供用户学习参考,不作为任何商用或其他用途;
5、本站不保证下载资源的准确性、安全性和完整性, 不包修改,不支持退换,同时也不承担用户因使用这些下载资源对自己和他人造成任何形式的伤害或损失;
6、 下载文件中如有侵权或不适当内容,请与我们联系,我们立即纠正。