

作品包括:
Word版说明书1份,共20页,约9800字
CAD版本图纸,共3张
UG三维图一套

摘 要
随着科学技术的不断进步和现代医疗服务水平提高,各种自动化药房系统正逐渐走进各大医院,实现对药品的科学化、规范化、自动化管理已成为医药行业发展趋势。用机器人替代传统的人工发药,不仅能提高发药效率、降低药品发错几率、充分利用药房空间等优势,而且是实现药房智能化管理的客观需要。因此,研究取药机器人系统的设计自动化药房的发展趋势。
本文在对国内外自动化药房系统和产品特点进行分析的基础上,根据药房取药的工作特点与技术要求,对取药机器人的结构形式、运动机构、末端执行器及抓取目标定位等进行分析论证。主要研究工作和成果如下:
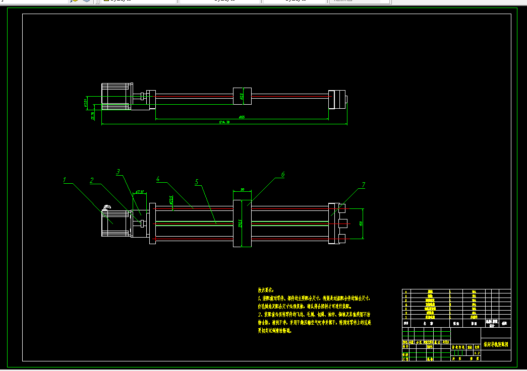
(1)根据取药机器人运动范围大、速度快、负载小的特点,设计直角坐标型取药机器人。对机器人总体机械结构进行建模设计,并对运动机构所承受的载荷、运动特性及参数进行分析与计算,完成了驱动电机选择与校核,验证其强度与刚度满足要求。
(2)针对药品包装形式、尺寸多样,且具有柔性的特点,设计了夹持式末端执行器,包括指向目标药盒的伸缩机构、夹持药盒的夹取机构和落药机构。其夹取机构采用“双向螺纹螺杆”设计,结构紧凑,夹持平稳。对执行器的机构结构、运动机构、承受载荷及驱动电机选择进行分析计算与校核。
关键词:自动化药房;取药机器人;自动取药;机械手
目 录
1 绪 论 1
1.1 研究背景及意义 1
1.2 国内外研究现状 2
1.2.1国外研究状况 2
1.2.2国内研究状况 5
1.2.3发展趋势分析 8
1.3 机器人与自动化药房 8
1.4 本文主要研究内容 10
2 系统整体方案 11
2.1 总体方案设计 11
2.1.1 取药机械手运动方案设计 11
2.1.2 取药机器人设计要求 11
2.1.3 取药机器人总体结构设计 11
2.2取药机器人机械结构设计 11
2.2.1垂直运动机构设计 11
2.2.2水平运动机构设计 11
3 末端执行器结构设计 11
3.1末端执行器机械结构设计 11
3.1.1末端执行器结构形式分析 11
3.1.2末端执行器工作过程 11
3.1.3末端执行器驱动方式 11
4 结论 12
参考文献 13
致 谢 14
温馨提示:
1、题目前面的备注【字母数字编号】为本站整理分类的编号,与课题内容无关,请选题时忽视;
2、若题目上备注三维,则表示文件里包含三维源文件,由于三维组成零件数量较多,为保证预览截图的简洁性,本站将三维文件夹进行了打包。三维及CAD预览截图,均为本站电脑打开软件进行截图的,保证能够打开,下载原件超高清,下载后解压即可;
3、本站所有资源如无特殊说明,都需要本地电脑安装Office2007。图纸软件为AutoCAD,PROE,UG,SolidWorks,CATIA等;
4、本站所有图文资料仅供用户学习参考,不作为任何商用或其他用途;
5、本站不保证下载资源的准确性、安全性和完整性, 不包修改,不支持退换,同时也不承担用户因使用这些下载资源对自己和他人造成任何形式的伤害或损失;
6、 下载文件中如有侵权或不适当内容,请与我们联系,我们立即纠正。