

作品包括:
Word版说明书1份,共29页,约12000字
开题报告一份
PPT答辩一份
CAD版本图纸,共4张
![1735479871918071.png T}OXESF72`Z]}G3W_K32H_G.png](/uploadfiles/20241229/1735479871918071.png)
摘要
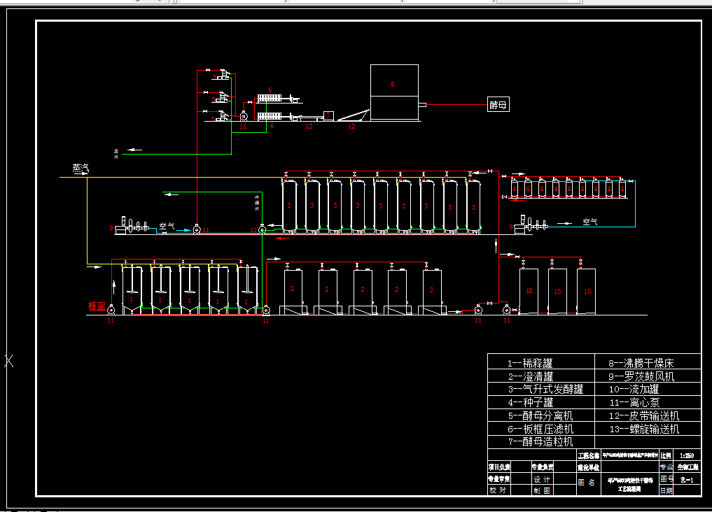
活性干酵母与人类日常生活和工业应用有着广泛密切的联系,活性干酵母具有含水量低、复水快、贮藏时间长、使用和运输方便等优点,被广泛应用于发酵面食加工和酿酒领域。随着发酵行业的发展,对于活性干酵母的需求量将会越来越大,因此利用糖蜜生产活性干酵母不仅使资源得到有效利用,而且还增加了企业经济收入。本次设计是利用糖蜜生产活性干酵母的车间设计,首先是要明确活性干酵母生产过程中所需哪些设备,再根据物料处理的先后顺序对设备进行排序,从而得到糖蜜发酵生产活性干酵母的工艺流程。然后根据活性干酵母的产量以及物料先后经过设备的顺序,进行物料衡算、热量衡算。并利用计算所得到的数据,对设备进行选型,从而选择到技术上先进、经济上合理、适合此流程的设备。再根据设备的规格以及工艺流程的特点,进行车间布置与管道布置。
关键词:活性干酵母 发酵 工艺流程 车间布置 管道布置
目 录
摘 要 1
Abstract 2
第一章 绪论 3
1.1引言 3
1.2设计内容 3
第二章 活性干酵母的生产工艺、流程图 4
2.1活性干酵母的生产工艺 4
2.2工艺流程图设计 4
2.2.1工艺流程设计原则 4
2.2.2带控制点的工艺流程图 4
2.2.3带控制点的工艺流程图视图内容 4
2.2.4带控制点的工艺流程图表示方法 4
2.2.5带控制点的工艺流程图设备画法 5
2.3活性干酵母生产工艺流程图 5
2.4物料处理工序 6
第三章 物料衡算与热量衡算 7
3.1物料衡算与热量衡算意义 7
3.2物料衡算与热量衡算计算 7
3.2.1 生产技术指标及基础数据 7
3.2.2原辅材料计算 7
3.2.3酵母生产过程计算 8
3.2.4工艺用水概算 8
3.2.5蒸汽用量计算 9
第四章 生产设备的选型 12
4.1生产设备选型依据 12
4. 2设备汇总 12
第五章 厂房选址与布局 14
5.1厂址的选择 14
5.1.1厂址选择的重要性 14
5.1.2厂址选择的原则 14
5.1.3厂址选择的条件 14
第六章 车间平面布置 16
6.1车间平面布置原则 16
6.2车间平面布置方法 16
6.2.1车间组成 16
6.2.2车间布置设计的内容 17
第七章 管道布置 18
7.1车间管道布置设计的任务 18
7.2车间管道布置原则 18
第八章 安全生产 19
8.1安全生产 19
8.2防火防爆 19
8.3防暑 19
第九章 环境保护与噪声防治 21
9.1活性干酵母生产与环境保护 21
9. 2环境保护的重要性 21
9. 3 活性干酵母生产对环境的污染 21
9.4“三废”的处理 21
9.4.1废水的处理 21
9.4.2废气的处理 22
9.4.3废渣的处理 22
9. 5噪 声的处理 22
参考文献 23
致 谢 23
附 录 23
温馨提示:
1、题目前面的备注【字母数字编号】为本站整理分类的编号,与课题内容无关,请选题时忽视;
2、若题目上备注三维,则表示文件里包含三维源文件,由于三维组成零件数量较多,为保证预览截图的简洁性,本站将三维文件夹进行了打包。三维及CAD预览截图,均为本站电脑打开软件进行截图的,保证能够打开,下载原件超高清,下载后解压即可;
3、本站所有资源如无特殊说明,都需要本地电脑安装Office2007。图纸软件为AutoCAD,PROE,UG,SolidWorks,CATIA等;
4、本站所有图文资料仅供用户学习参考,不作为任何商用或其他用途;
5、本站不保证下载资源的准确性、安全性和完整性, 不包修改,不支持退换,同时也不承担用户因使用这些下载资源对自己和他人造成任何形式的伤害或损失;
6、 下载文件中如有侵权或不适当内容,请与我们联系,我们立即纠正。