

作品包括:
Word版设计说明书1份
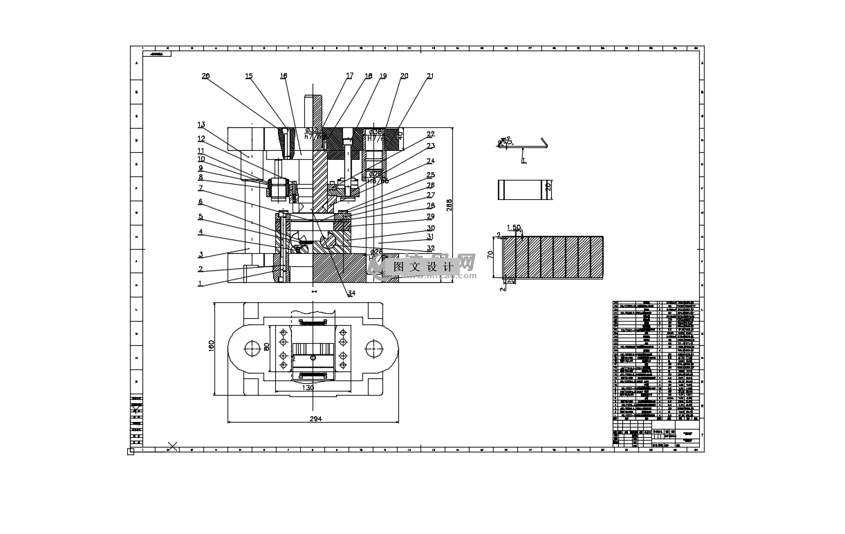
CAD版本图纸,共7张
UG三维图一份
摘要
模具制造水平可以代表一个国家生产力的发展水平,是促进国家经济发展的中坚力量。而冲压模具占模具工业相当大的比重,是模具设计中我们机械专业大学生应该掌握的部分。本文按照模具设计的一般顺序和方法,完成了小于90度弯曲件工艺分析及模具设计的设计目标,对目标制件进行工艺分析以后,设计了一套落料弯曲复合模具。在设计该一次性冲压成型模具的过程中,使用三维建模软件对零部件进行辅助设计,可对零件的尺寸有一个直观的感受,最终使用三维建模软件SolidWorks完成零部件和模具装配体三维模型的建立,并完成二维出图。
温馨提示:
1、题目前面的备注【字母数字编号】为本站整理分类的编号,与课题内容无关,请选题时忽视;
2、若题目上备注三维,则表示文件里包含三维源文件,由于三维组成零件数量较多,为保证预览截图的简洁性,本站将三维文件夹进行了打包。三维及CAD预览截图,均为本站电脑打开软件进行截图的,保证能够打开,下载原件超高清,下载后解压即可;
3、本站所有资源如无特殊说明,都需要本地电脑安装Office2007。图纸软件为AutoCAD,PROE,UG,SolidWorks,CATIA等;
4、本站所有图文资料仅供用户学习参考,不作为任何商用或其他用途;
5、本站不保证下载资源的准确性、安全性和完整性, 不包修改,不支持退换,同时也不承担用户因使用这些下载资源对自己和他人造成任何形式的伤害或损失;
6、 下载文件中如有侵权或不适当内容,请与我们联系,我们立即纠正。