欢迎来到龙图网在线图文分享平台-CAD图纸,设计说明书,工业设计3D模型,三维软件下载!   客服QQ:2363701252
热搜:

工艺夹具 模具设计 数控编程 土木工程 3D模型

Z1375-电池充电器外壳注塑模具设计【含UG三维图】 下载积分:100 资料编号: Z1375

1.打开支付宝或者微信扫描二维码。
2.填写金额:100 
3.添加备注,填写资料编号:
资料编号: Z1375
4.支付成功后,请发资料编号到邮箱:jxsj168@qq.com
会有专人在15分钟内把资料发到您邮箱
备注:如果付款忘记填写资料编号,则发邮件时附带您的交易明细截图即可。
请耐心等待,如超过30分钟还没收到,请联系客服QQ:2363701252
点击分享:

作品描述

作品包括:

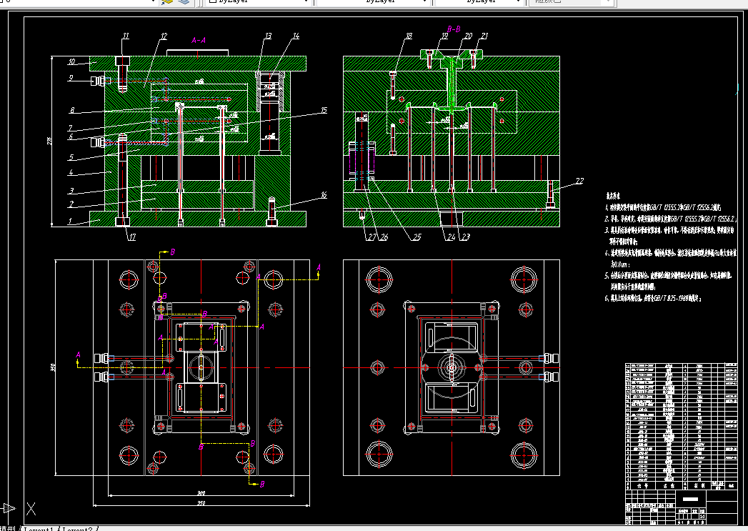
Word版设计说明书1份,共39页,约12000字

CAD版本图纸,共9张

UG三维图一份

7_]JA(25F2UY{%WO]@8G3YR.png

摘  要

随着社会经济的发展以及科技水平不断的进步,模具设计以及加工水平也得到了长足的进步,其中注塑模具的发展是有目共睹的,越来越多的塑料产品走进了我们的生活,并且深深的融入了日常生活中,使其与人类的关系变得密不可分,给我们生活带来了极大的方便。它们大小不同,精度也会有所差异,注塑模具设计技术也越来越与人们的定制需求相符合。然而本次模具毕业设计主要任务就是生产电子产品充电器外壳在理论层面设计一套注塑模具,在设计开始前先用相关软件对产品进行三维建模,完成充电器外壳塑件的结构分析,然后确定了本次模具设计最佳分型面位置和模具型腔腔数,完成了注塑模具浇注系统、脱模机构的设计,最后对模具的冷却系统等相关结构进行完善,这其中还对型芯型腔的结构尺寸进行了设计计算,确保整个模具设计过程的标准性与合理性。通过对充电器外壳注塑模具的设计,全面完整地了解到一套模具的设计制造原理,过程以及方法。

关键词:充电器外壳;分型面;型腔腔数;

目录

1  绪论 8

1.1 背景 8

1.1  国内塑料模具发展情况 8

1.2  国外塑料模具发展状况 9

1.3  设计意义 9

1.4 主要内容 9

2 充电器外壳工艺及材料分析 11

2.1 充电器外壳的工艺分析 11

2.2材料分析 11

2.2.1 ABS塑料参数 12

2.2.2 ABS材料注射成型工艺参数: 12

2.3注塑模具的注射成型原理 13

2.4 注塑成型工艺原理 13

2.4.1注塑成形前的准备 13

2.4.2 成型零件的后处理 14

3 型腔数目与分型面的设计 15

3.1型腔数目确定及排布 15

3.2分型面的选取 15

4 注射机的选择 17

4.1充电器外壳体积与质量 17

4.2注射成型机的选择 17

5  模架设计选择 19

6 成型零件设计计算 20

6.1成型零件结构的设计 20

6.2模具成型零件尺寸设计计算 22

7  浇注系统设计 23

7.1主流道的设计 24

7.2分流道 25

7.3浇口设计 26

7.4拉料杆设计 27

8  脱模机构设计 29

8.1机构选择 29

8.2脱模力设计计算 30

8.3推杆设计 31

9.冷却系统和排气系统 32

9.1冷却系统设计原则 32

9.2 冷却系统设计计算 32

9.3 排气系统的设计 33

10 注塑机的相关参数校核 35

10.1注射量的校核 35

10.2锁模力的校核 35

10.3模具闭合高度的校核 35

10.4模具开模行程校核 35

11模具装配图及工作原理 37

11.1模具动作过程 37

12总结 39

参考文献 40

致  谢 41

温馨提示:

1、题目前面的备注【字母数字编号】为本站整理分类的编号,与课题内容无关,请选题时忽视;

2、若题目上备注三维,则表示文件里包含三维源文件,由于三维组成零件数量较多,为保证预览截图的简洁性,本站将三维文件夹进行了打包。三维及CAD预览截图,均为本站电脑打开软件进行截图的,保证能够打开,下载原件超高清,下载后解压即可;

3、本站所有资源如无特殊说明,都需要本地电脑安装Office2007。图纸软件为AutoCAD,PROE,UG,SolidWorks,CATIA等;

4、本站所有图文资料仅供用户学习参考,不作为任何商用或其他用途;
5、本站不保证下载资源的准确性、安全性和完整性, 不包修改,不支持退换,同时也不承担用户因使用这些下载资源对自己和他人造成任何形式的伤害或损失;

6、 下载文件中如有侵权或不适当内容,请与我们联系,我们立即纠正。


线