

作品包括:
Word设计说明书1份
开题报告一份
文献综述一份
外文翻译一份
CAD版本图纸,共4张
SW三维图一套
仿真动画视频一份
摘要
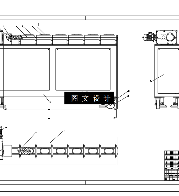
双螺杆挤出是一种高效、连续式的聚合物成型方法。它历来受到聚合物材料、聚合物加工领域的重视。近几十年来,双螺杆挤出在型材挤出、共混改性等方面表现出优异的性能和特点,应用范围愈来愈广.与此相应地,双螺杆挤出过程的研究也逐步展开和深人,国内外聚合物加工领域对双螺杆挤出理论的研究都表现出极大的兴趣,投入了相当的人力与物力,但是在目前,和单螺杆挤出理论相比,双螺杆挤出理论的研究远未成熟。本次课题设计的可视化双螺杆挤出机配有观察舷窗,通过其观察双螺杆挤出机运行规律来分析其物料挤出规律。并通过有限元分析软件对其部件进行仿真分析。通过三维软件对其进行三维数模的建立。希望通过本次课题对可视化双螺杆挤出机的设计,对未来双螺杆挤出机的研究提出可靠设计依据。
温馨提示:
1、题目前面的备注【字母数字编号】为本站整理分类的编号,与课题内容无关,请选题时忽视;
2、若题目上备注三维,则表示文件里包含三维源文件,由于三维组成零件数量较多,为保证预览截图的简洁性,本站将三维文件夹进行了打包。三维及CAD预览截图,均为本站电脑打开软件进行截图的,保证能够打开,下载原件超高清,下载后解压即可;
3、本站所有资源如无特殊说明,都需要本地电脑安装Office2007。图纸软件为AutoCAD,PROE,UG,SolidWorks,CATIA等;
4、本站所有图文资料仅供用户学习参考,不作为任何商用或其他用途;
5、本站不保证下载资源的准确性、安全性和完整性, 不包修改,不支持退换,同时也不承担用户因使用这些下载资源对自己和他人造成任何形式的伤害或损失;
6、 下载文件中如有侵权或不适当内容,请与我们联系,我们立即纠正。