

作品包括:
Word版说明书1份,共68页,约26000字
CAD版本图纸,共9张
摘 要
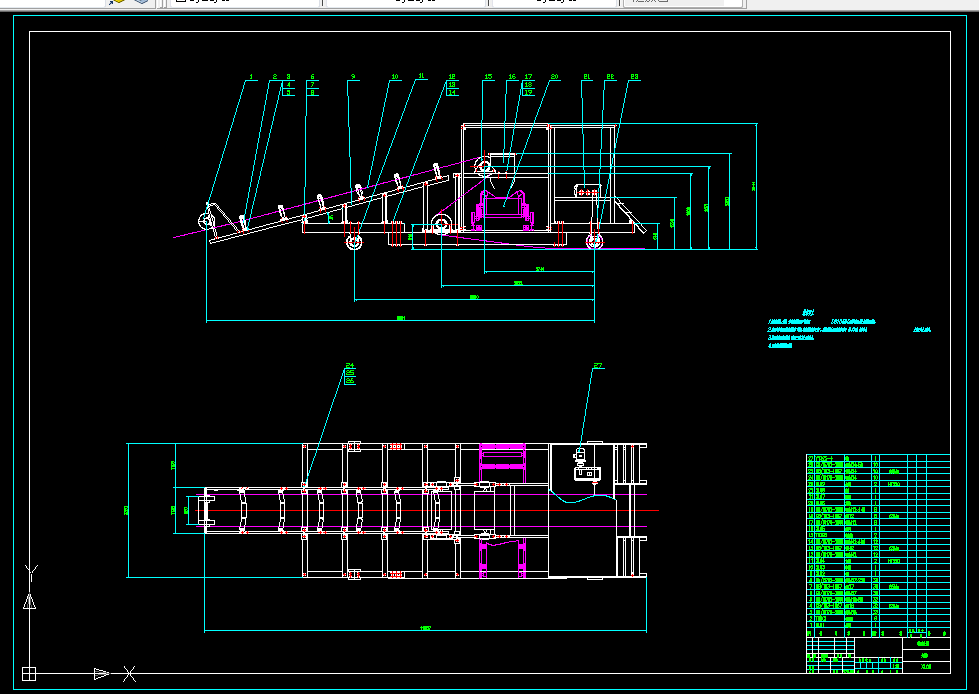
卸料车是自动仓库里皮带输送机重要的辅助工具。卸料车的作用是将输送带上的物料卸到布料车中,布料车再横向布料。系统实现了物料的输送与自动布料。卸料车对仓库的自动化起到了重要作用。
卸料车装有两个改向滚筒,利用车轮可以在输送机机架两边铺设的导轨上行走。输送带的承载段绕过滚筒时,将物料卸到安在小车上的漏斗中。小车的行走是由电动机通过减速器和链轮带动车轮来实现的。
卸料车结构简单,便于装配,性能可靠,运行平稳,操作简单,使用寿命长。适用于自动化仓库。
关键词:自动仓库;卸料车;皮带输送机
目 录
1引言 1
1.1自动化仓库 1
1.2带式输送机应用的卸料装置 1
1.3卸料车简介 2
2总体方案设计 3
3详细设计 4
3.1机架 4
3.1.1.机架设计准则 4
3.1.2 .机架设计的一般要求 4
3.1.3机架材料的选用 4
3.1.4机架基本尺寸 4
3.2输送装置 4
3.2.1输送带 4
3.2.2托辊 9
3.3驱动装置 13
3.3.1工况分析 13
3.3.2电动机的选择 14
3.3.3齿轮传动 15
3.3.4链传动 40
3.4卸料装置 42
改向滚筒 42
3.5行走装置 43
总结 44
参考文献 45
翻译 46
英文原文 46
中文译文 57
. 致谢 64
温馨提示:
1、题目前面的备注【字母数字编号】为本站整理分类的编号,与课题内容无关,请选题时忽视;
2、若题目上备注三维,则表示文件里包含三维源文件,由于三维组成零件数量较多,为保证预览截图的简洁性,本站将三维文件夹进行了打包。三维及CAD预览截图,均为本站电脑打开软件进行截图的,保证能够打开,下载原件超高清,下载后解压即可;
3、本站所有资源如无特殊说明,都需要本地电脑安装Office2007。图纸软件为AutoCAD,PROE,UG,SolidWorks,CATIA等;
4、本站所有图文资料仅供用户学习参考,不作为任何商用或其他用途;
5、本站不保证下载资源的准确性、安全性和完整性, 不包修改,不支持退换,同时也不承担用户因使用这些下载资源对自己和他人造成任何形式的伤害或损失;
6、 下载文件中如有侵权或不适当内容,请与我们联系,我们立即纠正。