

作品包括:
说明书1份,共171页,约46000字左右
CAD版本本图纸,共13张
摘要
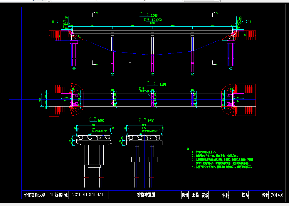
在本次桥梁设计中,根据地形地质条件和现有桥梁实例,依据工程设计规范提出了简支梁桥、连续梁桥、先简支后连续梁桥三种桥型的方案。按照“实用、经济、安全、美观”的桥梁设计原则,经过对优缺点的综合对比,最终选择预应力混凝土先简支后连续梁桥。
当选定桥型后,接下来主要是上部结构设计,包括了桥梁总体布置及细部结构尺寸拟定、桥梁行车道板计算、主梁作用效应计算、主梁作用效应组合、桥梁预应力钢束的估算与布置、横隔梁设计。其中利用了桥梁博士建立简易全桥模型,模拟全桥成桥和施工,完成钢束的估算和布置,并且计算钢束的各项预应力损失。
当上部结构设计完成后,然后对下部结构进行设计。包括盖梁、桥墩等。计算内容包括内力计算、截面配筋设计与承载力的校核。
先简支后连续桥梁的关键在于桥梁体系的转换,它不仅具有连续梁桥的优点,而且在施工上又具有简支梁的施工方法简单可行,便于桥梁的装配式施工。简单的说,就是运用简支梁的施工来建造连续梁桥。
关键字:先简支后连续;预应力;钢筋束的布置;设计;验算;桥梁博士。
目录
摘要 I
Abstract II
目录 III
第1章 桥梁方案比选 1
1.1 桥梁设计工程资料 1
1.1.1 方案比选原则 1
1.1.2 设计资料 1
1.1.3 水文地质条件 1
1.2 桥梁初步拟定 2
1.2.1 总跨径拟定 2
1.2.2 桥梁分孔 2
1.3 桥梁方案拟定 2
1.3.1 方案一 简支梁桥 2
1.3.2 方案二 连续梁桥 4
1.3.3 方案三 先简支后连续箱梁桥 6
1.4 桥型方案综合比较 7
第2章 结构尺寸拟定 8
2.1 横向拟定 8
2.2 纵向拟定 9
第3章 桥面板计算 10
3.1 悬臂板荷载效应计算 10
3.1.1 永久作用 10
3.1.2 可变作用 11
3.1.3 荷载内力组合 12
3.2 相邻两翼缘板计算 12
3.2.1 永久作用 12
3.2.2 可变作用 15
3.2.3 作用效应组合 17
3.3 截面设计、配筋与承载力验算 18
3.3.1 悬臂板支点配筋设计以及验算 18
3.3.2 连续板跨中截面配筋计算以及验算 18
第四章 主梁作用效应计算 21
4.1 施工步骤 21
4.2 桥梁博士参数计算 21
4.2.1 车道荷载计算 21
4.2.2 人群荷载标准值计算 22
4.2.3 横向分布系数的计算 22
4.2.4 冲击系数计算 26
4.2.5 二期恒载 27
4.2.6 施工方法 28
第五章 内力组合 29
5.1 作用组合概况 29
5.2 承载能力极限状态设计组合 29
5.2.1 基本组合 30
5.2.2 偶然组合 31
5.3 正常使用极限状态设计 31
5.3.1 长期效应组合 31
5.3.2 短期效应组合 31
5.4 桥梁博士各组合效应 31
5.4.1 基本组合——桥梁博士组合输出图形 31
5.4.2 长期组合——桥梁博士组合输出图形 32
5.4.3 短期组合——桥梁博士组合输出图形 33
5.4.4 桥梁博士数据导出 33
5.5 手算验算内力组合 33
5.5.1 验算8号截面 34
5.5.2 验算16号截面 35
5.5.3 验算31号截面 36
5.5.4 手算结果和桥梁博士结果对照比较 37
第六章 截面配筋估算 39
6.1 预应力钢筋的计算原则 39
6.2 按照正常使用极限状态下的应力要求计算 39
6.2.1 截面上下缘均配筋时 40
6.2.2 当截面只在下缘布置力筋时 41
6.2.3 当截面中只在上缘布置力筋: 42
6.2.4 下缘预应力配筋的判别条件 42
6.3 按承载能力极限要求计算 43
6.4 手算预应力钢束配筋估算 44
6.4.1 验算8号截面 44
6.4.2 验算16号截面 45
6.4.3 验算31号截面 46
第七章 钢束的配束以及预应力损失计算 48
7.1 钢束的配束原理 48
7.2 预应力钢束参数计算 48
7.3 预应力损失基本理论 50
7.4 预应力损失计算 50
7.4.1 由预应力钢筋与管道之间摩擦引起的应力损失( ) 51
7.4.2 由锚具变形、钢筋回缩和接缝压缩值引起的应力损失( ) 51
7.4.3 由混凝土弹性压缩引起的应力损失( ) 52
7.4.4 由钢筋松弛引起的预应力损失终极值( ) 53
7.4.5 由混凝土收缩、徐变引起的预应力损失( ) 53
7.4.6 截面预应力损失合计和有效预应力 54
第8章 截面强度验算 61
8.1持久状况承载能力极限状态承载力验算 61
8.1.1 一般规定 61
8.1.2 正截面抗弯承载力验算 61
8.1.3 承载能力极限承载力验算结果 63
8.1.4 总结 66
8.2 持久状况正常使用极限状态抗裂验算 66
8.2.1 一般规定 66
8.2.2 正截面抗裂验算 67
8.2.3 正截面抗裂验算结果表 67
8.2.4 斜截面抗裂验算 73
8.2.5 斜截面抗裂验算结果 75
8.2.6 抗裂验算总结 80
8.3 持久状况构件的应力验算 80
8.3.1 一般规定 80
8.3.2 正截面混凝土压应力验算 80
8.3.3 正截面验算结果 81
8.3.4 斜截面混凝土压应力验算 86
8.3.5 斜截面验算结果 87
8.3.6 预应力钢筋验算 93
8.3.7 预应力钢筋验算结果 94
8.3.8 持久状况构件验算总结 94
8.4 短暂状况构件的应力验算 95
8.4.1 预加应力阶段的应力验算 95
8.4.2 施工阶段短暂状况的应力验算 95
8.4.3 关键施工阶段应力验算结果 96
8.4.4 短暂状况下验算总结 117
8.5 主梁挠度验算 117
8.5.1 主梁挠度验算原理 117
8.5.2 主梁挠度位移值 119
8.5.3手算挠度验算 122
第九章 横隔梁内力计算 124
9.1 计算荷载的确定 124
9.2 中横隔梁的影响线 124
9.1.1 弯矩影响线 125
9.1.2 剪力影响线 126
9.3 截面内力计算 127
9.4 内力组合 128
9.5 配筋 128
9.6 配筋后验算 129
9.6.1 正截面抗弯 129
9.6.2 抗剪验算 129
第十章 盖梁设计 131
10.1 拟定盖梁尺寸 131
10.2 计算荷载 131
10.2.1 梁体自重 131
10.2.2 盖梁自重及作用效应计 132
10.2.3 盖梁活载计算 133
10.2.4 双柱反力Gi计算 138
10.3 内力计算 138
10.3.1 弯矩计算 139
10.3.2 剪力计算 139
10.4 截面配筋设计 142
10.5 承载能力验算 142
10.5.1 抗弯承载力验算 142
10.5.2 抗剪验算 143
10.5.3 斜截面抗剪验算 143
第十一章 桥墩设计 145
11.1 水文工程地质情况 145
11.2 桥墩墩柱设计计算 145
11.2.1 恒载计算 145
11.2.2 垂直活载计算 145
11.2.3 水平荷载计算 148
11.2.4 桥墩柱底截面内力组合 152
11.3 桥墩墩柱配筋 152
11.4 配筋后验算 154
11.4.1按最大垂直力时墩柱顶按轴心受压构件验算 154
11.4.2最大弯矩时偏心受压构件验算 154
参考文献 156
致谢 157
实习报告 158
温馨提示:
1、题目前面的备注【字母数字编号】为本站整理分类的编号,与课题内容无关,请选题时忽视;
2、若题目上备注三维,则表示文件里包含三维源文件,由于三维组成零件数量较多,为保证预览截图的简洁性,本站将三维文件夹进行了打包。三维及CAD预览截图,均为本站电脑打开软件进行截图的,保证能够打开,下载原件超高清,下载后解压即可;
3、本站所有资源如无特殊说明,都需要本地电脑安装Office2007。图纸软件为AutoCAD,PROE,UG,SolidWorks,CATIA等;
4、本站所有图文资料仅供用户学习参考,不作为任何商用或其他用途;
5、本站不保证下载资源的准确性、安全性和完整性, 不包修改,不支持退换,同时也不承担用户因使用这些下载资源对自己和他人造成任何形式的伤害或损失;
6、 下载文件中如有侵权或不适当内容,请与我们联系,我们立即纠正。