 
		

作品包括:
说明书1份,共103页,约26000字左右
CAD版本本图纸,共12张
摘要
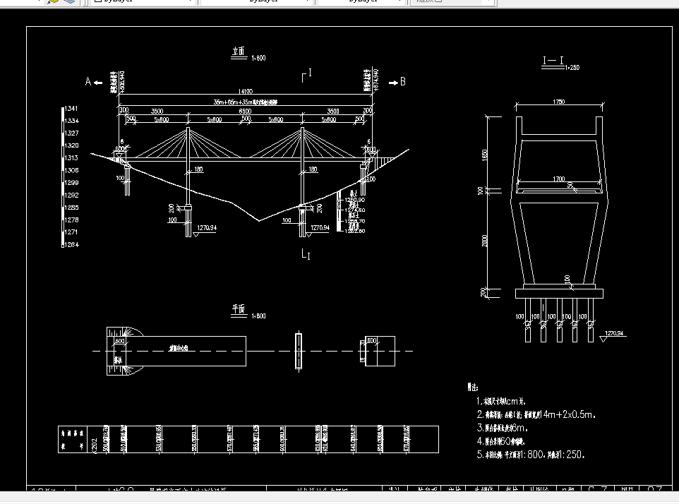
本次毕业设计是一座三跨悬臂现浇预应力钢筋混凝土连续梁桥设计,跨径为37.5m+37.5m+60m,横桥向宽度为17m,横坡为2%,双向四车道,荷载等级为公路I级。主梁采用单箱双室整体现浇箱梁,主梁采用变高度梁,高度曲线为圆曲线,支点处梁高为3.5m,顶板厚0.3m,顶板厚度全桥不变,底板厚为0.5m,腹板厚为0.7m,跨中处梁高为1.9m,底板厚为0.5m,腹板厚为0.7m。悬臂端长度均为0.28m。本桥采用悬臂施工的施工方法,其主要特点是施工方法简单可行,施工质量可靠,施工工艺成熟
本设计的主要目的是让我们熟练掌握桥梁设计的计算,学会桥梁绘图和相关软件桥梁博士和CAD的使用,加深我们对基础理论的理解,扩大专业知识面,培养我们严谨的科学态度和实事求是的作风,提高我们综合分析问题、创新等方面的能力。
关键词:预应力钢筋混凝土;变高度;连续梁桥;桥梁博士;CAD
目录
摘要 I
Abstract II
第一章 设计资料和参数 1
1.1基本设计资料 1
1.2 设计参数 1
1.2.1 混凝土 1
1.2.2预应力筋 1
1.2.3非预应力筋 2
1.2.4 其他参数 2
第二章 桥型方案比选 3
2.1桥型选取的基本原则 3
2.2桥型方案设计 4
2.2.1 预应力混凝土连续梁桥 4
2.2.2 预应力混凝土连续刚构桥 4
2.2.3 预应力混凝土斜拉桥 5
第三章 截面尺寸的拟定及截面几何特性 8
3.1 拟定截面尺寸 8
3.1.1 梁高 8
3.1.2 横截面形式 8
3.1.3 箱梁细部尺寸 8
3.2 截面几何特性 10
第四章 横向分布系数及冲击系数的计算 11
4.1 横向分布系数 11
4.2 冲击系数 12
第五章 桥博建模 13
5.1 总体信息 13
5.2 单元信息 13
5.3 施工信息 14
5.4 使用信息 15
第六章 荷载效应和内力组合 18
6.1 永久作用效应 18
6.1.1 一期恒载 18
6.1.2 二期恒载 18
6.2 可变作用效应 18
6.3 内力组合 19
6.3.1 承载能力极限状态设计组合 19
6.3.2 正常使用极限状态设计组合 20
第七章 预应力筋束的计算及布置 37
7.1 预应力钢束的估算 37
7.1.1 按正常使用极限状态的应力要求计算 37
7.1.2 按承载能力极限状态的强度要求计算 41
7.1.3 手算估算典型截面配筋 42
7.2 预应力钢束的布置 45
第八章 主梁验算 46
8.1 按持久状况承载能力极限状态验算 46
8.1.1 正截面抗弯承载力验算 46
8.2 按持久状况正常使用极限状态验算 48
8.2.1 正截面抗裂验算 48
8.2.2 斜截面抗裂验算 49
8.3 持久状况构件应力验算 54
8.3.1 正截面应力验算 54
8.3.2 斜截面主压应力验算 54
8.3.3 预应力筋拉应力 55
8.4 短暂状况构件应力验算 59
第九章 桥面板计算 76
9.1 箱梁单向板 76
9.2 箱梁悬臂板 79
9.3 桥面板配筋 80
第十章 桥面板验算 83
10.1 箱梁单向板验算 83
10.2 悬臂板验算 85
第十一章 设计总结 86
致 谢 87
参考文献 88
温馨提示:
1、题目前面的备注【字母数字编号】为本站整理分类的编号,与课题内容无关,请选题时忽视;
2、若题目上备注三维,则表示文件里包含三维源文件,由于三维组成零件数量较多,为保证预览截图的简洁性,本站将三维文件夹进行了打包。三维及CAD预览截图,均为本站电脑打开软件进行截图的,保证能够打开,下载原件超高清,下载后解压即可;
3、本站所有资源如无特殊说明,都需要本地电脑安装Office2007。图纸软件为AutoCAD,PROE,UG,SolidWorks,CATIA等;
4、本站所有图文资料仅供用户学习参考,不作为任何商用或其他用途;
5、本站不保证下载资源的准确性、安全性和完整性, 不包修改,不支持退换,同时也不承担用户因使用这些下载资源对自己和他人造成任何形式的伤害或损失;
6、 下载文件中如有侵权或不适当内容,请与我们联系,我们立即纠正。