

作品包括:
说明书1份,共36页,约7500字左右
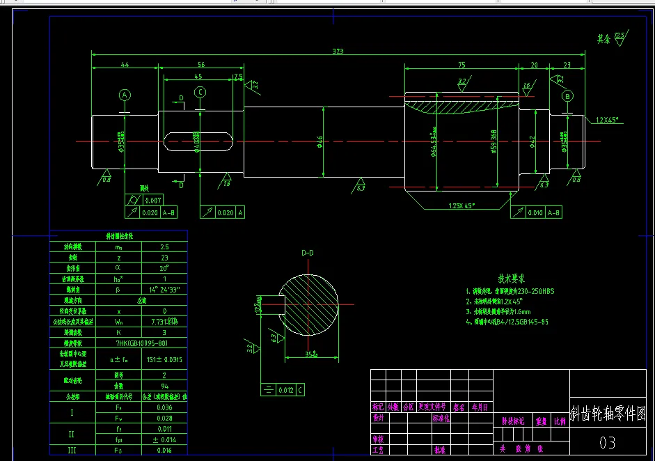
CAD图版本图纸,共3张
目 录
一、 设计任务书…………………………………………. 1
二、 传动方案的拟定及说明……………………………. 2
三、 电动机的选择………………………………………. 2
四、 传动装置的总传动比及其分配……………………. 3
五、 计算传动装置的运动和动力参数…………………. 4
六、 传动件的设计计算…………………………………. 5
(一)、V带传动设计计算………………………………………………….5
(二)、齿轮传动设计计算………………………………………………….7
(三)、总结…………………………………………………………………16
七、 轴的设计计算……………………………………….16
(一)、高速齿轮轴…………………………………………………………16
(二)、低速轴………………………………………………………………20
(三)、中速齿轮轴…………………………………………………………26
八、 滚动轴承的选择及计算…………………………….32
(一)、低速轴的轴承……………………………………………………...32
(二)、中速轴的轴承……………………..……………………………… 33
(三)、高速轴的轴承……...........................................................................34
九、 键联结的选择及校核计算………………………….35
十、 联轴器的选择……………………………………….36
十一、 减速器附件的选择………………………………36
十二、 润滑与密封………………………………………36
十三、 设计小结…………………………………………36
十四、 参考资料目录……………………………………….36
温馨提示:
1、题目前面的备注【字母数字编号】为本站整理分类的编号,与课题内容无关,请选题时忽视;
2、若题目上备注三维,则表示文件里包含三维源文件,由于三维组成零件数量较多,为保证预览截图的简洁性,本站将三维文件夹进行了打包。三维及CAD预览截图,均为本站电脑打开软件进行截图的,保证能够打开,下载原件超高清,下载后解压即可;
3、本站所有资源如无特殊说明,都需要本地电脑安装Office2007。图纸软件为AutoCAD,PROE,UG,SolidWorks,CATIA等;
4、本站所有图文资料仅供用户学习参考,不作为任何商用或其他用途;
5、本站不保证下载资源的准确性、安全性和完整性, 不包修改,不支持退换,同时也不承担用户因使用这些下载资源对自己和他人造成任何形式的伤害或损失;
6、 下载文件中如有侵权或不适当内容,请与我们联系,我们立即纠正。