

作品包括:
Word说明书1份,共33页,约18000字
CAD版本图纸,共13张
目 录
1 前言 1
2 组合机床总体设计 3
2.1 总体方案论证 3
2.1.1 工艺路线的确立 3
2.1.2 机床配置型式的选择 3
2.1.3 定位基准的选择 4
2.1.4 滑台型式的选择 4
2.2 切削用量的确定及刀具选择 4
2.2.1 选择切削用量 4
2.2.2切削力、切削扭矩及切削功率的计算 6
2.3 组合机床总体设计—三图一卡 8
2.3.1 被加工零件工序图 8
2.3.2 加工示意图 8
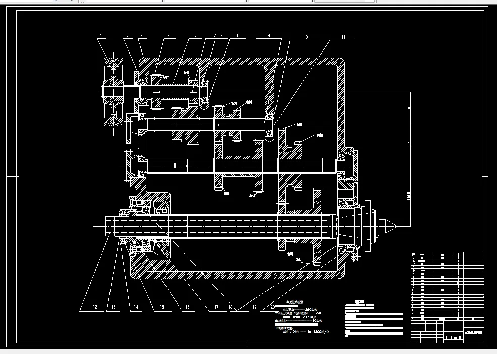
2.3.3机床尺寸联系总图 12
2.3.4 机床生产率计算卡 14
3 夹具设计 17
3.1 概述 17
3.1.1 零件的工艺性分析 17
3.1.2 夹具设计的基本要求 17
3.1.3 夹具总体结构构思 18
3.2 定位方案的确定 18
3.2.1 定位方案论证 18
3.2.2 定位基准的选择 18
3.3 误差分析 19
3.3.1 影响加工精度的因素 19
3.3.2 保证加工精度的条件 20
3.4.1夹紧装置的确定 21
3.4.2夹紧力的确定 22
3.4.3夹紧液压缸的选择 23
3.5 导向装置的选择 24
3.5.1钻套型式的选择和设计 24
3.5.2 钻模板的类型和设计 25
3.6 夹具体的确定 25
4 结论 27
参考文献 28
致 谢 29
附 录 30
ZS175柴油机机体三面钻削组合机床总体及夹具设计
摘 要:柴油机机体是大批量生产的零件,为了提高加工精度和生产效率,需要设计一种组合机床来改善柴油机机体的加工情况。
本课题设计了一台用于ZS175柴油机机体三面钻孔的组合机床。全文共有两部分,组合机床的总体设计和夹具设计。首先是总体设计,采用单工位三面钻孔组合机床,其中有加工对象工艺性的分析,机床总体布局的确定,定位基准的选择,滑台型式的选择,切削用量和刀具的选择,机床的总体设计。其次是夹具设计,通过对被加工零件的全面分析,在夹具设计过程中,采用后面、左面、下面三面定位, 左面和后面用定位销定位,下面用定位条定位。上面用液压缸夹紧,右面用液压缸辅助夹紧;夹具体为框架式结构,有良好的刚性,使夹具能长期保持可靠的精度和稳定性。
该组合机床不仅能保证加工精度,还能提高加工效率。整个机床布局合理,夹紧可靠,精度较高,使用操作方便,提高了工作效率,达到了设计要求。
关键词:组合机床;夹具;钻削
温馨提示:
1、题目前面的备注【字母数字编号】为本站整理分类的编号,与课题内容无关,请选题时忽视;
2、若题目上备注三维,则表示文件里包含三维源文件,由于三维组成零件数量较多,为保证预览截图的简洁性,本站将三维文件夹进行了打包。三维及CAD预览截图,均为本站电脑打开软件进行截图的,保证能够打开,下载原件超高清,下载后解压即可;
3、本站所有资源如无特殊说明,都需要本地电脑安装Office2007。图纸软件为AutoCAD,PROE,UG,SolidWorks,CATIA等;
4、本站所有图文资料仅供用户学习参考,不作为任何商用或其他用途;
5、本站不保证下载资源的准确性、安全性和完整性, 不包修改,不支持退换,同时也不承担用户因使用这些下载资源对自己和他人造成任何形式的伤害或损失;
6、 下载文件中如有侵权或不适当内容,请与我们联系,我们立即纠正。