

作品包括:
说明书1份,共41页,约12000字左右
CAD版本本图纸,共4张
摘 要
镗床是一种在工件上加工孔为主的机床,通常用于加工尺寸较大、精度要求较高的孔。本文主要针对卧式专用镗床的主轴箱进行设计,以便达到提高生产效率,降低成本等功效。卧式镗床是应用最多、性能最广的一种镗床,适用于单件小批生产,而专用镗床更是针对特定的零件而进行设计的机床,它有利于减少成本、提高生产效率。
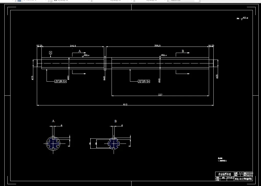
本文设计的专用镗床主轴箱一共拥有五级转速,采用滑移齿轮组实现变速。利用拨杆来推动滑移齿轮进行变速,从而使输入轴的转速能够进行合理变速满足输出轴要求的转速。本文主要进行了主轴箱的传动方案设计,其次进行了齿轮参数的计算以及轴类的参数设计。并完成装配图以清楚表示镗床主轴箱的参数以及零件布局。
此次所设计的简易镗床,具有结构简单、变速可靠、生产效率高等优点,它适用于加工孔距误差较小的孔系。
关键词:镗床,五级变速滑移齿轮,主轴箱。
第一章 绪论 1
1.1镗床概述 1
1.1.1. 镗床的概念 1
1.1.2. 镗削加工的特点 1
1.1.3. 镗床的分类 2
1.2主轴箱的概念 2
1.3专用镗床 2
1.3.1专用镗床的概念 2
1.3.2专用机床的基本要求 3
第二章 镗床传动方案的确定 5
第三章 主传动系统的总体设计 7
3.1电动机的选择 7
3.2机械传动装置运动和动力参数的计算 10
3.2.1. 各轴的转速、输入功率及扭矩 10
3.2.2. 齿轮的设计 11
第四章 轴的设计 23
4.1从动轴的设计计算 23
4.2主轴的设计计算 27
4.3键连接的选择与计算 29
第五章 全文总结 31
致谢 32
毕业设计小结 33
附录 35
温馨提示:
1、题目前面的备注【字母数字编号】为本站整理分类的编号,与课题内容无关,请选题时忽视;
2、若题目上备注三维,则表示文件里包含三维源文件,由于三维组成零件数量较多,为保证预览截图的简洁性,本站将三维文件夹进行了打包。三维及CAD预览截图,均为本站电脑打开软件进行截图的,保证能够打开,下载原件超高清,下载后解压即可;
3、本站所有资源如无特殊说明,都需要本地电脑安装Office2007。图纸软件为AutoCAD,PROE,UG,SolidWorks,CATIA等;
4、本站所有图文资料仅供用户学习参考,不作为任何商用或其他用途;
5、本站不保证下载资源的准确性、安全性和完整性, 不包修改,不支持退换,同时也不承担用户因使用这些下载资源对自己和他人造成任何形式的伤害或损失;
6、 下载文件中如有侵权或不适当内容,请与我们联系,我们立即纠正。