

作品包括:
Word设计说明书1份,共32页,约12000字
CAD版本图纸,共7张

摘 要
为了改变生产条件,提高生产效率,改善产品的质量等方面的技术,以达到预计的生产水平为目的,并能够与该厂其它产品轮番生产,需要设计一个合理的组合机床设计方案。如果用普通机床来进行加工,那样所花的时间、工序、精力会比较多,比较烦琐,同时不能够保证零件的加工精度,也不能提高生产率。而现在要设计的钻扩组合机床,绝大部分是由通用零、部件组合而成,大大缩短了设计制造周期,也简化了机床的维护和修理。同时它能够采用多刀、多面对工件进行加工,实现了工序集中原则。而工件的一次装夹下多面加工,又有利于保证各面或孔之间的精度要求,提高了质量,并减少了工序间的搬运所花的时间。
关键词 组合机床 工序集中 钻扩组合机床设计
目 录
1 前言…………………………………………………………………………… 1
1.1 课题的意义………………………………………………………………… 1
1.2 国内外发展现状…………………………………………………………… 1
1.3 课题设计内容……………………………………………………………… 3
1.4 课题设计思路……………………………………………………………… 3
2 总体设计……………………………………………………………………… 4
2.1 工艺方案的拟订…………………………………………………………… 4
2.2 切削用量的确定…………………………………………………………… 6
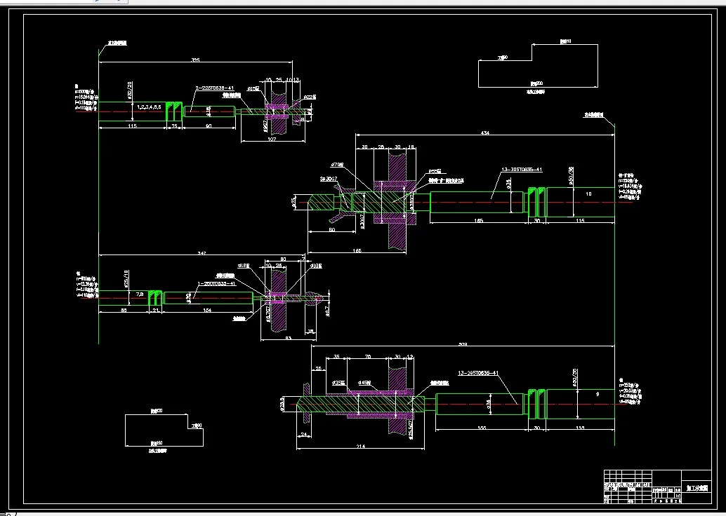
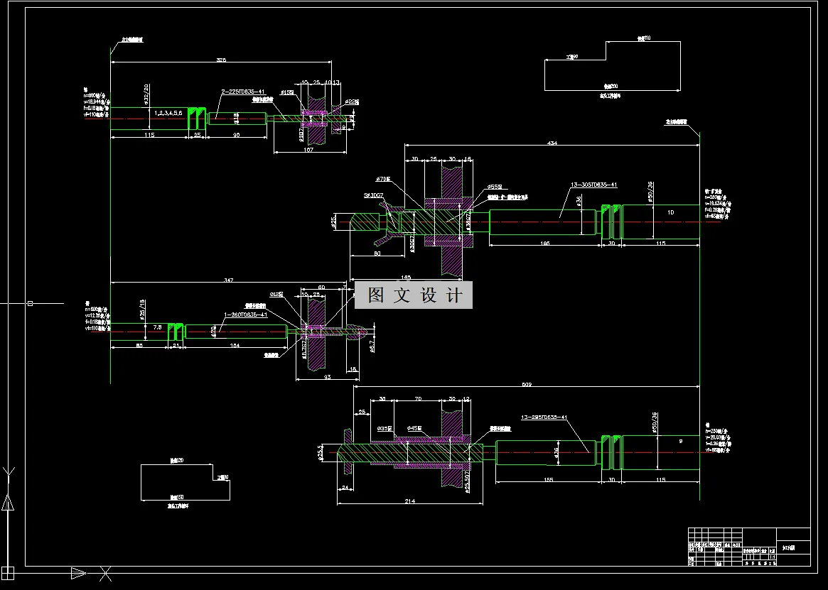
2.3 组合机床总体设计“三图一卡”…………………………………………… 8
3 组合机床夹具设计…………………………………………………………… 19
3.1 夹具设计的基本要求……………………………………………………… 19
3.2 定位方案的确定…………………………………………………………… 20
3.3 定位元件的确定…………………………………………………………… 20
3.4 导向装置的确定…………………………………………………………… 22
3.5 夹具误差分析……………………………………………………………… 23
3.6 夹紧力的确定……………………………………………………………… 25
3.7 夹紧机构的确定…………………………………………………………… 26
3.8 夹具体的确定……………………………………………………………… 27
3.9 夹具总装图、零件图的绘制……………………………………………… 28
结束语 ………………………………………………………………………………… 29
致谢……………………………………………………………………………… 30
参考文献………………………………………………………………………… 31
温馨提示:
1、题目前面的备注【字母数字编号】为本站整理分类的编号,与课题内容无关,请选题时忽视;
2、若题目上备注三维,则表示文件里包含三维源文件,由于三维组成零件数量较多,为保证预览截图的简洁性,本站将三维文件夹进行了打包。三维及CAD预览截图,均为本站电脑打开软件进行截图的,保证能够打开,下载原件超高清,下载后解压即可;
3、本站所有资源如无特殊说明,都需要本地电脑安装Office2007。图纸软件为AutoCAD,PROE,UG,SolidWorks,CATIA等;
4、本站所有图文资料仅供用户学习参考,不作为任何商用或其他用途;
5、本站不保证下载资源的准确性、安全性和完整性, 不包修改,不支持退换,同时也不承担用户因使用这些下载资源对自己和他人造成任何形式的伤害或损失;
6、 下载文件中如有侵权或不适当内容,请与我们联系,我们立即纠正。