

作品包括:
说明书一份,21页,9200字左右.
CAD版本图纸,共3张:
一. 设计任务书
设计题目:热处理车间零件清洗用传送设备
的传动装置
(一)方案设计要求:
具有过载保护性能(有带传动)
含有二级展开式圆柱齿轮减速器
传送带鼓轮方向与减速器输出轴方向平行
(二)工作机原始数据:
传送带鼓轮直径278mm,
传送带带速0.98m/s,
传送带主动轴所需扭距T为248N.m
使用年限9年,2班制
工作载荷微振
目 录
一¸ 设计任务书••••••••••••••••••••••••••••••••••••••••••••••••••••••••••••••••••••••••••••••••••••••••2
二¸ 电机的选择计算
1. 择电机的转速•••••••••••••••••••••••••••••••••••••••••••••••••••••••••••••••••••••••••••••••••2
2. 工作机的有效功率•••••••••••••••••••••••••••••••••••••••••••••••••••••••••••••••••••••••••••2
3. 选择电动机的型号•••••••••••••••••••••••••••••••••••••••••••••••••••••••••••••••••••••••••••3
三¸ 传动和动力参数的计算
1. 分配传动比••••••••••••••••••••••••••••••••••••••••••••••••••••••••••••••••••••••••••••••••••••3
2. 各轴的转速••••••••••••••••••••••••••••••••••••••••••••••••••••••••••••••••••••••••••••••••••••3
3. 各轴的功率••••••••••••••••••••••••••••••••••••••••••••••••••••••••••••••••••••••••••••••••••••4
4. 各轴的转矩•••••••••••••••••••••••••••••••••••••••••••••••••••••••••••••••••••••••••••••••••••••4
四¸ 传动零件的设计计算
1. 闭式直齿轮圆锥齿轮传动的设计计算•••••••••••••••••••••••••••••••••••••••••••••••••4
2. 闭式直齿轮圆柱齿轮传动的设计计算•••••••••••••••••••••••••••••••••••••••••••••••••6
五¸ 轴的设计计算
4. 减速器高速轴I的设计•••••••••••••••••••••••••••••••••••••••••••••••••••••••••••••••••••••9
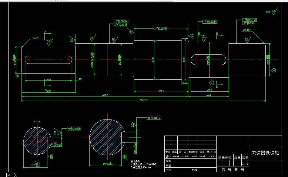
5. 减速器低速轴II的设计••••••••••••••••••••••••••••••••••••••••••••••••••••••••••••••••••11
3. 减速器低速轴III的设计••••••••••••••••••••••••••••••••••••••••••••••••••••••••••••••••••14
六¸ 滚动轴承的选择与寿命计算
1.减速器高速I轴滚动轴承的选择与寿命计算•••••••••••••••••••••••••••••••••••••••••16
2.减速器低速II轴滚动轴承的选择与寿命计算••••••••••••••••••••••••••••••••••••••••17
3. 减速器低速III轴滚动轴承的选择与寿命计算•••••••••••••••••••••••••••••••••••••18
七¸ 键联接的选择和验算
1. 联轴器与高速轴轴伸的键联接••••••••••••••••••••••••••••••••••••••••••••••••••••••••••19
2. 大圆锥齿轮与低速轴II的的键联接••••••••••••••••••••••••••••••••••••••••••••••••••••19
3. 大圆柱齿轮与低速轴III的的键联接••••••••••••••••••••••••••••••••••••••••••••••••••20
八¸ 润滑油的选择与热平衡计算
1. 减速器的热平衡计算•••••••••••••••••••••••••••••••••••••••••••••••••••••••••••••••••••••••••21
2. 润滑油的选择•••••••••••••••••••••••••••••••••••••••••••••••••••••••••••••••••••••••••••••••••22
九¸ 参考文献••••••••••••••••••••••••••••••••••••••••••••••••••••••••••••••••••••••••••••••••••••••••23
温馨提示:
1、题目前面的备注【字母数字编号】为本站整理分类的编号,与课题内容无关,请选题时忽视;
2、若题目上备注三维,则表示文件里包含三维源文件,由于三维组成零件数量较多,为保证预览截图的简洁性,本站将三维文件夹进行了打包。三维及CAD预览截图,均为本站电脑打开软件进行截图的,保证能够打开,下载原件超高清,下载后解压即可;
3、本站所有资源如无特殊说明,都需要本地电脑安装Office2007。图纸软件为AutoCAD,PROE,UG,SolidWorks,CATIA等;
4、本站所有图文资料仅供用户学习参考,不作为任何商用或其他用途;
5、本站不保证下载资源的准确性、安全性和完整性, 不包修改,不支持退换,同时也不承担用户因使用这些下载资源对自己和他人造成任何形式的伤害或损失;
6、 下载文件中如有侵权或不适当内容,请与我们联系,我们立即纠正。