

作品包括:
Word版说明书1份,共44页,约9100字
CAD版本图纸,共3张
目 录
一 设计任务书 1
1.1设计题目 1
1.2设计步骤 1
二 传动装置总体设计方案 1
2.1传动方案 1
2.2该方案的优缺点 1
三 选择电动机 2
3.1电动机类型的选择 2
3.2确定传动装置的效率 2
3.3选择电动机容量 2
3.4确定传动装置的总传动比和分配传动比 3
四 计算传动装置运动学和动力学参数 4
4.1电动机输出参数 4
4.2高速轴的参数 4
4.3低速轴的参数 4
4.4工作机的参数 4
五 普通V带设计计算 5
六 减速器齿轮传动设计计算 8
6.1选定齿轮类型、精度等级、材料及齿数 8
6.2按齿面接触疲劳强度设计 9
6.3按齿根弯曲疲劳强度设计 11
6.4确定传动尺寸 13
6.5校核齿面接触疲劳强度 13
6.6校核齿根弯曲疲劳强度 14
6.7计算齿轮传动其它几何尺寸 16
6.8齿轮参数和几何尺寸总结 16
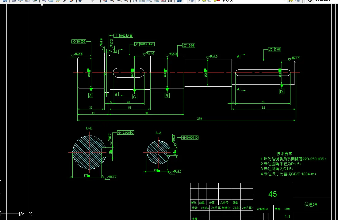
七 轴的设计 17
7.1高速轴设计计算 17
7.2低速轴设计计算 23
八 滚动轴承寿命校核 29
8.1高速轴上的轴承校核 29
8.2低速轴上的轴承校核 30
九 键联接设计计算 31
9.1高速轴与大带轮键连接校核 31
9.2低速轴与大齿轮键连接校核 31
9.3低速轴与联轴器键连接校核 31
十 联轴器的选择 32
10.1低速轴上联轴器 32
十一 减速器的密封与润滑 32
11.1减速器的密封 32
11.2齿轮的润滑 32
11.3轴承的润滑 33
十二 减速器附件 33
12.1油面指示器 33
12.2通气器 33
12.3六角螺塞 33
12.4窥视孔盖 34
12.5定位销 35
12.6启盖螺钉 35
十三 减速器箱体主要结构尺寸 35
十四 设计小结 36
参考文献 36
温馨提示:
1、题目前面的备注【字母数字编号】为本站整理分类的编号,与课题内容无关,请选题时忽视;
2、若题目上备注三维,则表示文件里包含三维源文件,由于三维组成零件数量较多,为保证预览截图的简洁性,本站将三维文件夹进行了打包。三维及CAD预览截图,均为本站电脑打开软件进行截图的,保证能够打开,下载原件超高清,下载后解压即可;
3、本站所有资源如无特殊说明,都需要本地电脑安装Office2007。图纸软件为AutoCAD,PROE,UG,SolidWorks,CATIA等;
4、本站所有图文资料仅供用户学习参考,不作为任何商用或其他用途;
5、本站不保证下载资源的准确性、安全性和完整性, 不包修改,不支持退换,同时也不承担用户因使用这些下载资源对自己和他人造成任何形式的伤害或损失;
6、 下载文件中如有侵权或不适当内容,请与我们联系,我们立即纠正。