

作品包括:
word版本说明书一份,共39页,约15000字
CAD版本图纸,共5张
汽缸体立式钻孔组合机床设计
摘 要
组合机床是根据工件加工需要,以大量通用部件为基础。配以少量专用部件组成的一种高效率专用机床。
本次设计的是汽缸体双面钻孔组合机床,汽缸体是发动机的主要部件,属于大批大量生产的零件,从经济性上考虑,为适应生产需求采用组合机床较为合理。根据组合机床的特点,设计步骤主要包括:调查研究、总体方案设计、技术设计、工作设计。
调查研究:根据被加工零件图样,研究其尺寸、形状、材料、硬度、重量、加工部位的结构及加工精度和表面粗糙度要求等内容。同时深入调查了解生产现场状况。总之,通过调查研究应为组合机床总体设计提供必要的大量的数据、资料,做好充分的、全面的技术准备。
总体方案设计:组要包括制定工艺方案、确定机床配置形式、制定影响机床总体布局和技术性能的主要部件的结构方案。总体设计的具体工作是编制“三图一卡”,即绘制被加工零件工序图、加工示意图、机床尺寸联系图,编制生产效率计算卡。
技术设计:根据总体设计已经确定的“三图一卡”,设计机床个专用部件正式总图,如设计夹具、多轴箱等装配图以及根据运动部件有关参数和机床循环要求,设计液压和电气控制原理图。
工作设计:当技术设计通过审后即可展开工作设计,即绘制各个专用部件的施工图样、编制各个部件零件明细表。
通过以上设计步骤,本次设计的汽缸体双面钻孔组合机床充份满足了生产需求,达到了预期的设计目标。
关键词:组合机床,三图一卡,多轴箱,夹具
目 录
前 言 1
第1章 组合机床总体设计 3
1.1 工艺方案拟定 3
1.1.1 确定组合机床工艺方案的基本原则及注意问题 3
1.1.2 组合机床工艺方案的拟定 3
1.1.3 确定组合机床配置型式及结构方案应考虑的问题 5
1.2 切削用量的确定 5
1.2.1 组合机床切削用量选择的特点、方法及注意问题 6
1.2.2 确定切削力、切削转矩、切削功率及刀具耐用度 6
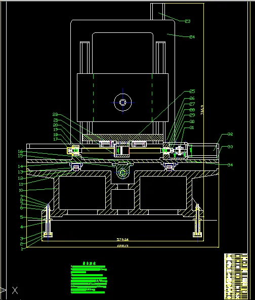
1.3 组合机床总体设计—“三图一卡” 7
1.3.1 被加工零件工序图 7
1.3.2 加工示意图 8
1.3.3 机床联系尺寸总图 10
1.3.4 机床生产率计算卡 13
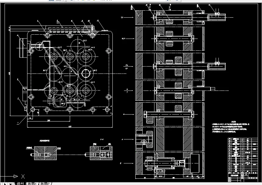
第2章 组合机床多轴箱设计 16
2.1 组合机床右多轴箱设计 16
2.1.1 绘制多轴箱设计原始依据图 16
2.1.2主轴、齿轮的确定及动力计算 17
2.1.3多轴箱传动设计 18
2.2 组合机床左多轴箱设计 20
2.2.1 绘制多轴箱设计原始依据图 20
2.2.2主轴、齿轮的确定及动力计算 21
2.2.3多轴箱传动设计 22
结 论 24
谢 辞 25
参考文献 26
外文资料翻译 27
温馨提示:
1、题目前面的备注【字母数字编号】为本站整理分类的编号,与课题内容无关,请选题时忽视;
2、若题目上备注三维,则表示文件里包含三维源文件,由于三维组成零件数量较多,为保证预览截图的简洁性,本站将三维文件夹进行了打包。三维及CAD预览截图,均为本站电脑打开软件进行截图的,保证能够打开,下载原件超高清,下载后解压即可;
3、本站所有资源如无特殊说明,都需要本地电脑安装Office2007。图纸软件为AutoCAD,PROE,UG,SolidWorks,CATIA等;
4、本站所有图文资料仅供用户学习参考,不作为任何商用或其他用途;
5、本站不保证下载资源的准确性、安全性和完整性, 不包修改,不支持退换,同时也不承担用户因使用这些下载资源对自己和他人造成任何形式的伤害或损失;
6、 下载文件中如有侵权或不适当内容,请与我们联系,我们立即纠正。