JJ9589-卷筒纸胶印机离合压机构设计【含SW三维图】
JJ9588-平板流延机设计【含UG三维图】
JJ9586-食用菌生产棒料打孔机具设计
Q794-秸秆压块机设计
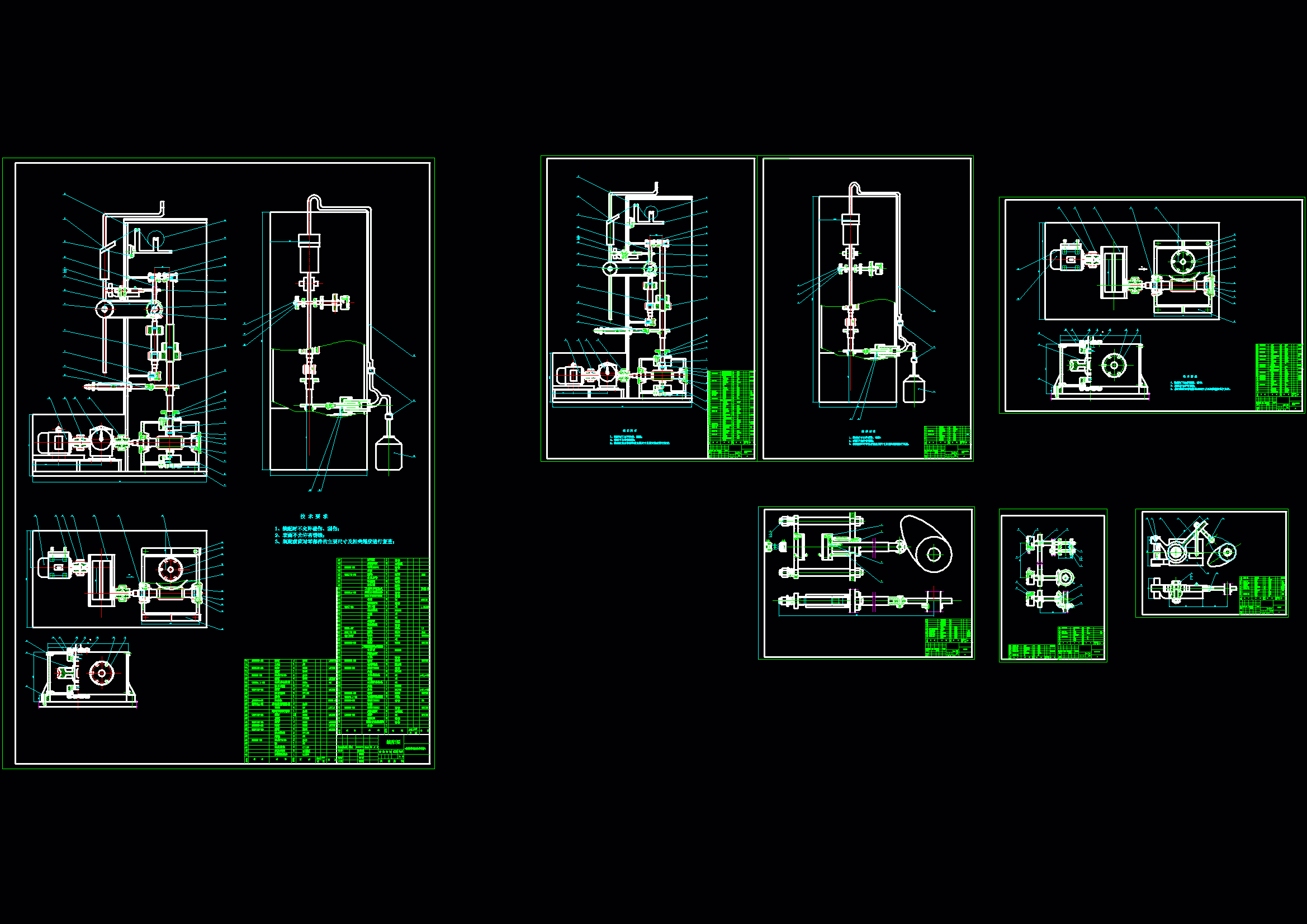
Q793-油气水三相分离器的设计
Q790-小型双螺旋辊馒头机设计【含SW三维图】
Q788-新型玉米脱粒机的设计【含SW三维图】
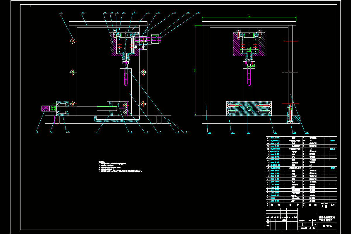
Q787-脉冲电解射流加工喷射装置设计
Q786-飞秒激光深孔加工理论与系统设计【含SW三维图】
Q784-节能燃气全自动可倾式夹层炉的研究与设计【含SW三维图】
Q783-自动涂布机设计
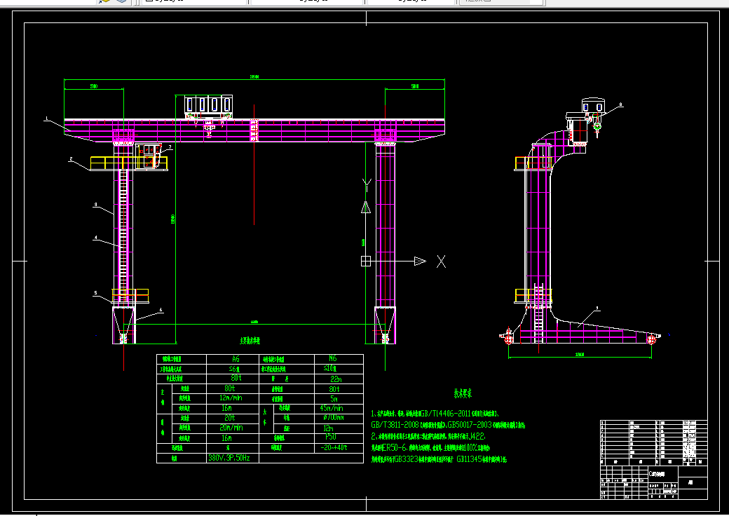
Q782-C型单梁门式起重机结构设计
Q779-石油精密深孔钻防震装置设计
Q778-铁路煤炭传送机疏通机构设计
Q777-XKA5032AC数控立式升降台铣床自动换刀装置的设计
Q776-真空粉料混合机设备设计
Q775-阿道夫洗发水瓶头盖系统设计
Q781-举重叉车拨叉铣特种设备设计
Q557-新版刨床机械机构设计
JJ9583-液体袋自动灌装机设计