Z235-一种新型的自动售货机用取物箱的设计
Z234-箱式电炉进出料机设计
Z233-风笼式选粉机总体及其传动设计[含UG三维图]
Z230-公路铣刨机沥青输送部分装置的设计[含UG三维图]
Z229-定量给料机控制系统设计
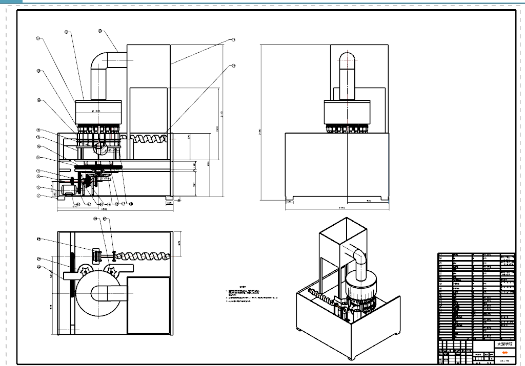
Z228-定梁式数控雕铣机结构设计
Z227-定梁式数控雕刻机机械结构设计
Z226-公路铣刨机整机的设计[含UG三维图]
Z224-可四轮定位四柱式汽车举升机设计
Z223-液体灌装生产线上灌装阀的设计
Z222-包装机推包机构设计
Z221-AHHC520制粒机设计[含UG三维图]
Z220-轴承内外圈加工专用机床车架与主轴箱设计
Z219-轴轴承内外圈加工专用机床横向机构设计[含UG三维图]
Z218-轴承内外圈加工专用机床上料机构设计
Z217-轴承内外圈加工专用机床纵向机构设计[含UG三维图]
Z216-10T桥式起重机小车运行机构设计
Z215-10吨位桥式起重机总体设计[机+电]
Z214-4S店汽车维修专用升降机设计
Z189-青贮饲料切碎压实机的设计[含SW三维图]