L903-高压水射流装备结构设计[含SW三维图]
L902-单柱液压剪板机结构及液压系统设计
L901-ZL120装载机工作装置设计[含UG三维图]查重版
L900-复摆颚式破碎机机械结构设计[含三维图]
L899-自动马铃薯去皮机设计【含SW三维图】(土豆去皮机)
L898-载人电梯曳引装置的设计
L897-斜轴式轴向柱塞泵结构设计[含SW三维图]
L896-小型电动清扫车设计
L895-朗逸轿车前麦弗逊悬架设计
L894-快递自动分拣机器人设计
L893-快递包裹分拣装置设计-单片机控制
L892-四驱越野车转向驱动桥设计
L876-基于框架式三自由度机械手设计及控制-单片机
L855-电动汽车车架及电池箱轻量化设计[含SW三维图]
L854-纯电动汽车动力电池匹配和电池箱设计
L853-建筑用卷筒提升机(卷扬机)设计
L852-手持式高枝锯设计[含UG三维图]
L851-240ktaPVC氯乙烯合成工段工艺设计-Aspen模拟
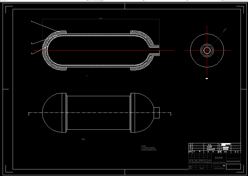
L850-碳纤维汽车复合材料汽车储氢罐结构设计
L849-双端面铣床的改进设计[双面卧式铣床]