C496-基于PLC的游乐设备大摆锤的控制系统设计
C495-滚针轴承自动装针机设计
C494-钢筋切断机设计
C493-钢管水压试验机预密封系统设计
C492-福特轿车雨刮系统质量控制方法与应用研究
C491-多功能跑步机设计[含三维图]
C489-单相交直交逆变电源的设计
C488-单片机实现的步进电机控制系统设计
C486-卧式加工中心换刀机械手的设计
C482-行李包安检门设计[含Proe三维图]
C481-滚筒式输送机的设计--辊子输送机[含Proe三维图]
C480-高压水切机设计[含Proe三维图]
C476-人体除湿系统设计[含Proe三维图]
C475-大直径辊筒双头镗孔专机承载装置及自定心装置的设计
C473-船载卫星TV天线座设计
C470-冲击回转钻进技术-液动锤
C468-将旧车床改造成拉削齿轮内花键的拉床及主体部分设计
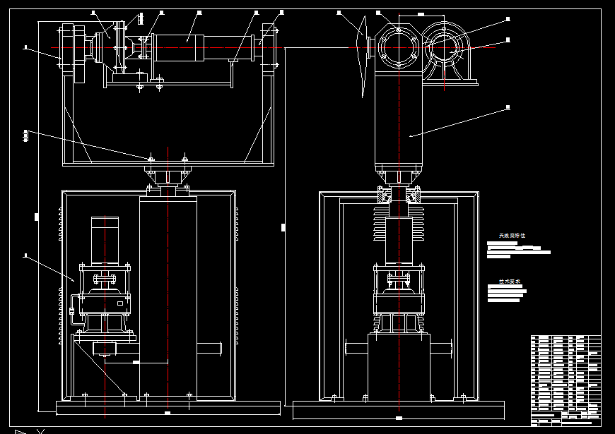
C463-Ф3000干燥机设计
C461-网带式茶叶烘干机设计[含UG三维图]
C460-托森差速器的设计与仿真[含SW三维图]