

作品包括:
设计word版本说明书一份,共29页,约14000字
任务书一份
开题报告一份
PPT答辩一份
CAD版本图纸,共6张
摘 要
碳纤维的品质在很大程度上取决于原丝。制造品质优异的原丝的主要制约因素有聚合体中共聚单体类型、纺丝方法及工艺、拉伸工艺、干燥致密化程度、上油工艺及油剂类型。
干燥致密化一般在上油后用热辊或热风进行干燥致密化。干燥致密化温度越低越好,但过低,油剂不能浸入,孔隙不能削减,长时间进行干燥致密化也不好,实质上干燥致密化温度在 110-190℃ 的温度范围较好。
本干燥机(组)采用逐步升温的分段致密化工艺,先将水的ω为 100%-150% 的溶胀态纤维在 100-300℃ 的热辊上干燥到水ω 30% 以下,然后再用 110-140℃ 的热辊将纤维干燥至水ω 2% 以下,这样对纤维进行缓慢的致密化,可防止产生皮芯结构,并可防止单丝间并丝。
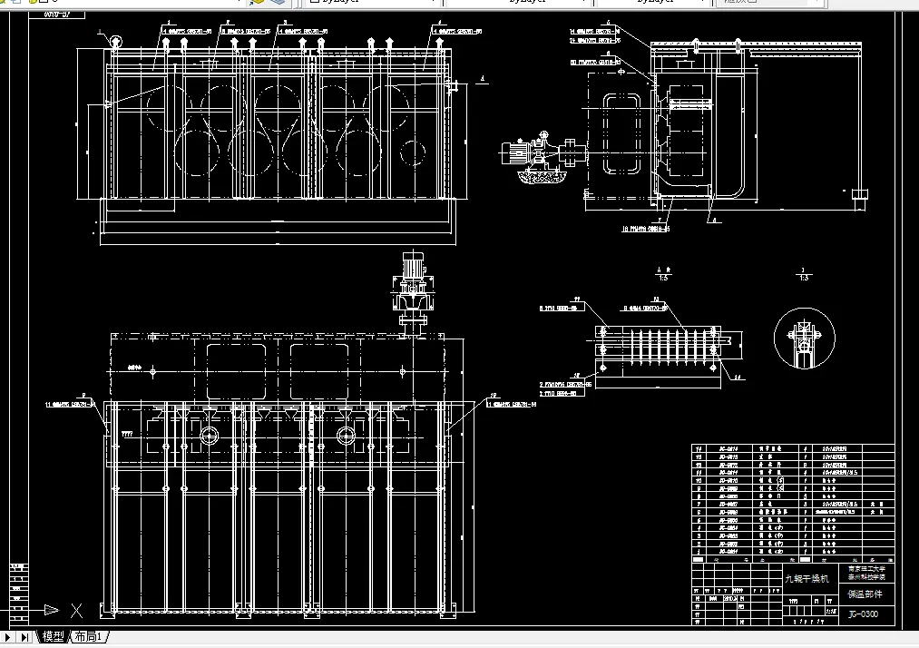
本文介绍了制取高性能碳纤维原丝的关键设备之一——干燥机(组)的结构组成及研究概况,对主机主要零部件:辊筒轴部件、传动齿轮受力情况进行了分析研究;对辊筒轴及齿轮进行了强度校核;对轴承寿命进行了计算;对保温部件进行了方案比较和结构设计;对润滑部件进行了润滑方式的选择和润滑装置设计及计算。
本文完成了干燥机(组)的设计和计算的整个过程,对碳纤维干燥致密化设备有了进一步的了解和一些创新。
关键词:碳纤维;干燥致密化;热辊,干燥机(组)
目 录
1、绪论………………………………………………………………………5
1.1碳纤维应用现状及其发展前景…………………………………………5
1.2碳纤维后处理设备市场背景……………………………………………5
1.3本课题研究的主要内容…………………………………………………6
2、干燥机总体设计…………………………………………………………7
2.1拟订设计方案……………………………………………………………7
2.1.1根据设计任务书及工艺要求简图尺寸确定设计方案………………7
2.1.2确定干燥机结构形式及传动方式……………………………………8
2.2技术设计和工作设计……………………………………………………9
2.2.1根据拟定方案绘制总装图和各部件图………………………………9
2.2.2主要零部件的设计及校核……………………………………………9
2.2.2.1主机部件……………………………………………………………9
(1)传动箱体………………………………………………………………9
(2)传动轴 ………………………………………………………………10
(3)干燥辊部件设计及校核 ……………………………………………10
(4)齿轮设计和强度校核 ………………………………………………17
(5)轴承型号选择及寿命校核 …………………………………………18
2.2.2.2 保温部件…………………………………………………………18
(1)框架 …………………………………………………………………18
(2)保温壁结构 …………………………………………………………18
(3)保温门 ………………………………………………………………19
(4)导轨 …………………………………………………………………19
2.2.2.3 润滑部件…………………………………………………………19
(1)润滑方式及润滑装置的选择 ………………………………………19
(2)稀油集中润滑系统的设计计算 ……………………………………20
(3)油泵选择 ……………………………………………………………21
(4)油箱设计 ……………………………………………………………21
(5)过滤装置形式、选择及计算 ………………………………………22
2.2.3电气控制 ……………………………………………………………23
3、总结和展望 ……………………………………………………………26
4、致谢 ……………………………………………………………………27
5、参考文献 ………………………………………………………………28
温馨提示:
1、题目前面的备注【字母数字编号】为本站整理分类的编号,与课题内容无关,请选题时忽视;
2、若题目上备注三维,则表示文件里包含三维源文件,由于三维组成零件数量较多,为保证预览截图的简洁性,本站将三维文件夹进行了打包。三维及CAD预览截图,均为本站电脑打开软件进行截图的,保证能够打开,下载原件超高清,下载后解压即可;
3、本站所有资源如无特殊说明,都需要本地电脑安装Office2007。图纸软件为AutoCAD,PROE,UG,SolidWorks,CATIA等;
4、本站所有图文资料仅供用户学习参考,不作为任何商用或其他用途;
5、本站不保证下载资源的准确性、安全性和完整性, 不包修改,不支持退换,同时也不承担用户因使用这些下载资源对自己和他人造成任何形式的伤害或损失;
6、 下载文件中如有侵权或不适当内容,请与我们联系,我们立即纠正。