欢迎来到龙图网在线图文分享平台-CAD图纸,设计说明书,工业设计3D模型,三维软件下载! 客服QQ:2363701252
热搜: 工艺夹具 模具设计 数控编程 土木工程 3D模型

N093-去毛刺专用机床电气控制系统设计- 下载积分:50 资料编号: N093

1.打开支付宝或者微信扫描二维码。
2.填写金额:50 
3.添加备注,填写资料编号:
资料编号: N093
4.支付成功后,请发资料编号到邮箱:jxsj168@qq.com
会有专人在15分钟内把资料发到您邮箱
备注:如果付款忘记填写资料编号,则发邮件时附带您的交易明细截图即可。
请耐心等待,如超过30分钟还没收到,请联系客服QQ:2363701252

作品描述

作品包括:

word版本说明书一份,共31页,约12000字

CAD版本图纸,共7张

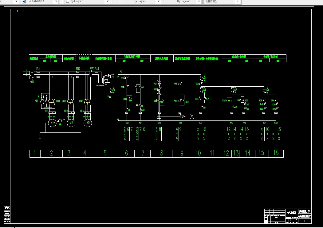
A0-电气原理图.dwg

A1-PLC外部接线图.dwg

A1-电气接线图.dwg

A1-梯形图.dwg

A1-液压系统图.dwg

A2-操纵面板.dwg

A2-控制柜.dwg


去毛刺专用机床电气控制系统设计


摘 要

本次设计的去毛刺专用机床是适用于生产进行加工过程中零件产生的毛刺去除。由于该机控制系统采用了先进的电气、液压与机械紧密结合,动作程序互锁、监控严格的程序控制系统,所以具有自动化程度高、生产能力强、操作简单可靠和维修方便等特点。主要进行了对电气控制系统的改进,在以前继电器控制系统产品的基础上,采用了工业控制专用计算机——可编程控制器控制系统。在PLC及外部电气系统控制下,通过控制进给油泵电机、主轴电机、冷却电机、等三个电磁阀的逻辑程序动作,完成去除各类零件的毛刺任务。

此次毕业设计,是根据生产机械的控制要求,去毛刺专用机床电气控制系统的设计和完成电控装置在制造、使用和维护过程中所需的图样和资料,要求利用功能和优点较为齐全的可编程控制器(PLC)来对去毛刺电气控制系统进行控制及运行,以及机床电气控制对系统液压回路的控制来完成整个零件加工过程的动作要求,从而来完成整个操作过程中的各项任务。


关键词:主轴电机、去毛刺电气控制系统、机床电气控制、PLC 

目 录

摘要--------------------------------------------------------------------3

一、概述---------------------------------------------------------------4

(一)电气控制系统-------------------------------------------------4

(二)可编程序控制器-----------------------------------------------4

(三)设计任务及要求-----------------------------------------------6

二、机床电气控制流程的设计---------------------------------------------7

(一)设备名称、用途、工艺过程及技术性能---------------------------7

(二)电源---------------------------------------------------------8

(三)对电气控制特性要求-------------------------------------------8

(四)电气传动-----------------------------------------------------8

(五)有关操作功能及控制系统选择-----------------------------------9

三、机床电气控制系统的设计--------------------------------------------10

(一)主电路控制设计---------------------------------------------10

1.主电路设计--------------------------------------------------10

2.中间继电器--------------------------------------------------10

(二)执行电路控制设计--------------------------------------------10

1.机床电气传动的特点及控制要求--------------------------------10

2.控制电路电源------------------------------------------------11

(三)辅助电路设计-----------------------------------------------11

1.信号指示与照明电路------------------------------------------11

2.控制箱------------------------------------------------------12

3.操纵箱------------------------------------------------------12

4.面板设计----------------------------------------------------12

(四)绘制电气原理图---------------------------------------------12

四、电气元器件型号的选择----------------------------------------------13

五、编程的调试与PLC的选用--------------------------------------------16

(一)调试与运行--------------------------------------------------16

(二)可编程控制器(PLC)的选用------------------------------------17

1.控制要求---------------------------------------------------17

2.输入输出配置-----------------------------------------------17

3.工作方式与梯形图-------------------------------------------18

六、结论与体会-------------------------------------------------------23

1.结论----------------------------------------------------------23

2.体会----------------------------------------------------------23

谢辞-----------------------------------------------------------------25

参考文献-------------------------------------------------------------26

附图-----------------------------------------------------------------27


温馨提示:

1、题目前面的备注【字母数字编号】为本站整理分类的编号,与课题内容无关,请选题时忽视;

2、若题目上备注三维,则表示文件里包含三维源文件,由于三维组成零件数量较多,为保证预览截图的简洁性,本站将三维文件夹进行了打包。三维及CAD预览截图,均为本站电脑打开软件进行截图的,保证能够打开,下载原件超高清,下载后解压即可;

3、本站所有资源如无特殊说明,都需要本地电脑安装Office2007。图纸软件为AutoCAD,PROE,UG,SolidWorks,CATIA等;

4、本站所有图文资料仅供用户学习参考,不作为任何商用或其他用途;
5、本站不保证下载资源的准确性、安全性和完整性, 不包修改,不支持退换,同时也不承担用户因使用这些下载资源对自己和他人造成任何形式的伤害或损失;

6、 下载文件中如有侵权或不适当内容,请与我们联系,我们立即纠正。


线

N093-去毛刺专用机床电气控制系统设计- 下载积分:50 资料编号:N093

作品描述

作品包括:

word版本说明书一份,共31页,约12000字

CAD版本图纸,共7张

A0-电气原理图.dwg

A1-PLC外部接线图.dwg

A1-电气接线图.dwg

A1-梯形图.dwg

A1-液压系统图.dwg

A2-操纵面板.dwg

A2-控制柜.dwg


去毛刺专用机床电气控制系统设计


摘 要

本次设计的去毛刺专用机床是适用于生产进行加工过程中零件产生的毛刺去除。由于该机控制系统采用了先进的电气、液压与机械紧密结合,动作程序互锁、监控严格的程序控制系统,所以具有自动化程度高、生产能力强、操作简单可靠和维修方便等特点。主要进行了对电气控制系统的改进,在以前继电器控制系统产品的基础上,采用了工业控制专用计算机——可编程控制器控制系统。在PLC及外部电气系统控制下,通过控制进给油泵电机、主轴电机、冷却电机、等三个电磁阀的逻辑程序动作,完成去除各类零件的毛刺任务。

此次毕业设计,是根据生产机械的控制要求,去毛刺专用机床电气控制系统的设计和完成电控装置在制造、使用和维护过程中所需的图样和资料,要求利用功能和优点较为齐全的可编程控制器(PLC)来对去毛刺电气控制系统进行控制及运行,以及机床电气控制对系统液压回路的控制来完成整个零件加工过程的动作要求,从而来完成整个操作过程中的各项任务。


关键词:主轴电机、去毛刺电气控制系统、机床电气控制、PLC 

目 录

摘要--------------------------------------------------------------------3

一、概述---------------------------------------------------------------4

(一)电气控制系统-------------------------------------------------4

(二)可编程序控制器-----------------------------------------------4

(三)设计任务及要求-----------------------------------------------6

二、机床电气控制流程的设计---------------------------------------------7

(一)设备名称、用途、工艺过程及技术性能---------------------------7

(二)电源---------------------------------------------------------8

(三)对电气控制特性要求-------------------------------------------8

(四)电气传动-----------------------------------------------------8

(五)有关操作功能及控制系统选择-----------------------------------9

三、机床电气控制系统的设计--------------------------------------------10

(一)主电路控制设计---------------------------------------------10

1.主电路设计--------------------------------------------------10

2.中间继电器--------------------------------------------------10

(二)执行电路控制设计--------------------------------------------10

1.机床电气传动的特点及控制要求--------------------------------10

2.控制电路电源------------------------------------------------11

(三)辅助电路设计-----------------------------------------------11

1.信号指示与照明电路------------------------------------------11

2.控制箱------------------------------------------------------12

3.操纵箱------------------------------------------------------12

4.面板设计----------------------------------------------------12

(四)绘制电气原理图---------------------------------------------12

四、电气元器件型号的选择----------------------------------------------13

五、编程的调试与PLC的选用--------------------------------------------16

(一)调试与运行--------------------------------------------------16

(二)可编程控制器(PLC)的选用------------------------------------17

1.控制要求---------------------------------------------------17

2.输入输出配置-----------------------------------------------17

3.工作方式与梯形图-------------------------------------------18

六、结论与体会-------------------------------------------------------23

1.结论----------------------------------------------------------23

2.体会----------------------------------------------------------23

谢辞-----------------------------------------------------------------25

参考文献-------------------------------------------------------------26

附图-----------------------------------------------------------------27


温馨提示:

1、题目前面的备注【字母数字编号】为本站整理分类的编号,与课题内容无关,请选题时忽视;

2、若题目上备注三维,则表示文件里包含三维源文件,由于三维组成零件数量较多,为保证预览截图的简洁性,本站将三维文件夹进行了打包。三维及CAD预览截图,均为本站电脑打开软件进行截图的,保证能够打开,下载原件超高清,下载后解压即可;

3、本站所有资源如无特殊说明,都需要本地电脑安装Office2007。图纸软件为AutoCAD,PROE,UG,SolidWorks,CATIA等;

4、本站所有图文资料仅供用户学习参考,不作为任何商用或其他用途;
5、本站不保证下载资源的准确性、安全性和完整性, 不包修改,不支持退换,同时也不承担用户因使用这些下载资源对自己和他人造成任何形式的伤害或损失;

6、 下载文件中如有侵权或不适当内容,请与我们联系,我们立即纠正。

关于我们 网站申明 友情链接 联系我们

扫一扫,联系微信客服


Copyright @ 龙图网版权所有  网站客服QQ:2363701252  微信客服:a58cad

皖ICP备2021006205号-2