

作品包括:
word说明书一份,82页,约19000字左右
开题报告一份
CAD版本图纸,共9张
摘要
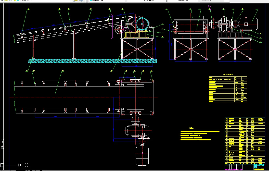
带式输送机驱动装置是输送机的动力的来源,主要由电动机通过联轴器、减速器、带动传动滚筒转动。
本驱动装置设计中,首先根据输送机的工作要求确定传动方案,然后确定电动机,由电机及工作机进行减速器设计, 驱动装置,驱动装置架,传动滚筒,滚筒头架设计。
关键词: 带式输送机 驱动装置 减速器 滚筒
1概述 1
1.1带式输送机的发展历程及发展方向 1
1.2 输送机的分类 2
1.3 驱动装置 4
2运动方案的拟订 6
3减速器设计 9
3.1 选择电动机 9
3.1.2 选择电动机的容量 9
3.1.3 确定电动机的转速 10
3.2 计算总传动比并分配各级传动比 11
3.3 运动参数的计算 11
3.3.1 计算各轴转速: 11
3.3.2 各轴的功率和转矩 11
3.4 传动零件(齿轮)的设计 13
3.4.1 高速级齿轮传动的设计计算 13
3.4.1.1 选择材料、齿轮精度等级、类型及齿数 13
3.4.1.2 按齿面接触强度设计 14
3.4.1.3 按齿根弯曲强度设计 16
3.4.1.4几何尺寸计算 18
3.4.2 低带级齿轮传动的设计计算 19
3.4.2.1 选择材料、齿轮精度等级、类型及齿数 19
3.4.2.2 按齿面接触强度设计 19
3.4.2.3 按齿根弯曲强度设计 22
3.4.2.4 几何尺寸计算 23
3.5 轴的设计 24
3.5.1 轴的材料 24
3.5.2轴径的初步估算 24
3.5.3 轴的结构设计 25
3.5.4 按弯扭合成进行轴的强度校核 27
3.6.1 轴I上的轴承的选择 37
3.6.3 轴III(输出轴)上的轴承的选择 42
3.7.1 高速级大齿轮与轴的联接 44
3.7.2 低速级大齿轮与轴的联接 45
3.9.1 联轴器的选择设计 48
3.9.1.1 高速轴联轴器 48
3.9.1.2 低速级联轴器的选择设计 50
3.9.3 密封 53
3.9.4 公差与配合 54
3.9.5 其他附件的设计 54
4 驱动滚筒设计 58
4.2.2 滚筒轴的校核 65
4.2.3 滚筒的周向定位 65
5 托辊的设计 67
5.1.1 作用 67
5.1.2 托辊的类型 67
5.3.1槽形托辊 69
5.3.2 缓冲托辊 70
5.3.3 回程托辊 71
5.3.4 调心托辊 72
6.机架 75
7.拉紧装置 76
致谢................................................77
参考文献............................................78
温馨提示:
1、题目前面的备注【字母数字编号】为本站整理分类的编号,与课题内容无关,请选题时忽视;
2、若题目上备注三维,则表示文件里包含三维源文件,由于三维组成零件数量较多,为保证预览截图的简洁性,本站将三维文件夹进行了打包。三维及CAD预览截图,均为本站电脑打开软件进行截图的,保证能够打开,下载原件超高清,下载后解压即可;
3、本站所有资源如无特殊说明,都需要本地电脑安装Office2007。图纸软件为AutoCAD,PROE,UG,SolidWorks,CATIA等;
4、本站所有图文资料仅供用户学习参考,不作为任何商用或其他用途;
5、本站不保证下载资源的准确性、安全性和完整性, 不包修改,不支持退换,同时也不承担用户因使用这些下载资源对自己和他人造成任何形式的伤害或损失;
6、 下载文件中如有侵权或不适当内容,请与我们联系,我们立即纠正。