

作品包括:
Word版设计说明书1份,共47页,约18000字
翻译一份
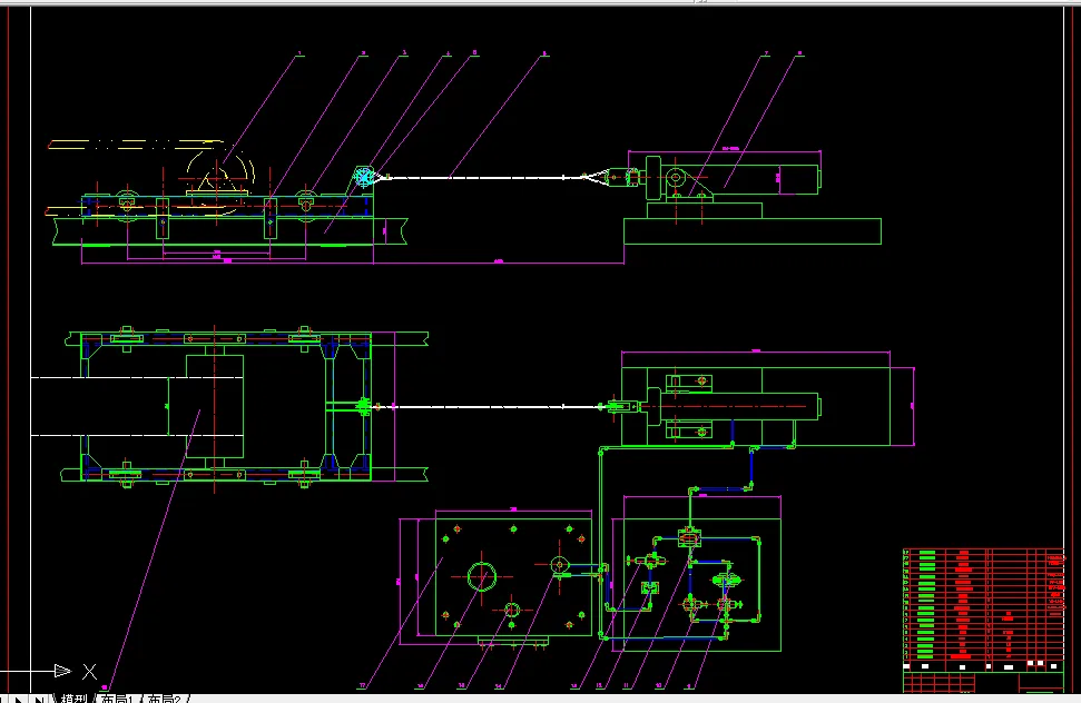
CAD版本图纸,共4张
目 录
摘要 Ⅰ
Abstract Ⅱ
第1章 绪论 1
1.1 输送机自动张紧装置的一般概念 1
1.2 输送机张紧装置的分类 1
1.3 液压自动张紧装置与其它张紧装置的类比 2
第2章 总体设计 3
2.1 设计任务 3
2.2 设计方案的确定 3
2.2.1 液压自动张紧装置的特点 3
2.2.2 液压张紧系统工作原理 3
2.2.3 总体设计方案的确定 5
第3章 各元件的确定 6
3.1 油缸的选择和计算 6
3.2 液压油液的功能和基本要求 7
3.3 液压泵的选择及计算 9
3.4 电动机的确定 9
3.5 各种阀类的选择 10
3.5.1 电磁换向阀的选择 10
3.5.2 溢流阀的选择 11
3.5.3 压力继电器的选择 12
3.5.4 压力表的选择 13
3.5.5 滤油器的选择 14
3.5.6 蓄能器的选择 15
3.5.7 伺服阀的选择 16
3.5.8 液控单向阀的选择 18
3.6 其它元件的选择 20
3.6.1 滑轮的选择 20
3.6.2 钢丝绳的选取 20
3.6.3 液压泵站的选择与安装 20
第4章 管路的设计 22
4.1 管路的确定 22
4.2 吸油管的设计 22
4.3 压油管的设计 23
4.4 液压系统中的压力损失验算 23
第5章 主要部件的设计计算及强度校核 26
5.1 油缸后的支座的设计及强度校核 26
5.2 液压缸活塞杆上的耳环的设计及强度设计 27
第6章 设计分析 29
结论 31
致谢 32
参考文献 33
专题 34
摘要
输送机时橡胶和纤维织品两者复合而成的制品,在应用中的重锤张进装置,在运行一段时间后,重锤会自动下降一段距离,使输送带变长。这说明输送带发生了蠕变,在启动、制动过程中也会产生蠕变现象。此时张紧装置就必须进一步收缩才不会发生打滑现象。
由此可见,张紧装置是保证带式输送机正常运转必不可少的重要部件。该论文主要介绍了带式输送机的自动张紧装置的设计过程,详细的介绍了各个液压元件的选取。自动张紧装置的设计是张紧装置的设计的一个重大变革。
关键词:自动张紧装置 带式输送机 液压张紧系统
温馨提示:
1、题目前面的备注【字母数字编号】为本站整理分类的编号,与课题内容无关,请选题时忽视;
2、若题目上备注三维,则表示文件里包含三维源文件,由于三维组成零件数量较多,为保证预览截图的简洁性,本站将三维文件夹进行了打包。三维及CAD预览截图,均为本站电脑打开软件进行截图的,保证能够打开,下载原件超高清,下载后解压即可;
3、本站所有资源如无特殊说明,都需要本地电脑安装Office2007。图纸软件为AutoCAD,PROE,UG,SolidWorks,CATIA等;
4、本站所有图文资料仅供用户学习参考,不作为任何商用或其他用途;
5、本站不保证下载资源的准确性、安全性和完整性, 不包修改,不支持退换,同时也不承担用户因使用这些下载资源对自己和他人造成任何形式的伤害或损失;
6、 下载文件中如有侵权或不适当内容,请与我们联系,我们立即纠正。