

作品包括:
Word版设计说明书1份,共38页,约15000字
外文翻译一份
开题报告一份
CAD版本图纸,共16张
型砂处理机筛分机构设计
摘要
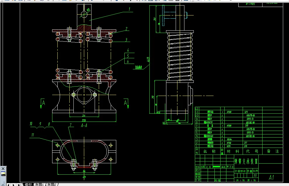
本设计为型砂处理机筛分机构的设计,主要研究内容:激振器的机构设计;筛箱的结构设计;筛网的结构设计。
本设计是由激振器,参考圆振动筛的相关参数,初步确定凸轮轴的转速,从而确定线速度、筛箱的大小、筛网的孔径等相关数据。在保证生产率和筛分粒度的前提下完成总体结构的设计,然后根据总体结构,从而确定本设计的筛分机各个主要零部件的设计。
在主要零部件的设计中,主要包括运动参数的选择、振动工艺参数的计算、动力学分析和参数计算、电动机的选择、筛箱的设计、 激振器轴承的选用及校核等,其中最重要的就是动力学分析和参数计算。凸轮轴采用铸钢做成,并使用新型材质以提高其的耐磨性和利用率。
本设计整体圆振动筛基础上更进一步提高了其筛分性能,结构简单、重量轻、外形尺寸小、设备费用低、运转安全、操作方便、便于维修和管理。
关键词:振动筛 ; 激振器;筛面 ;筛分
目 录
1绪论 1
1.1背景介绍 1
1.2筛分机构研究内容 3
1.3具体方案与措施 4
1.4设计方案综述 5
2 运动学参数的选择 6
2.1筛面的倾角 6
2.2振动方向角 7
2.3振幅 7
2.4 振动次数n 7
2.5 物料的运送速度 8
3 振动筛工艺参数的计算 9
3.1 生产率的计算 9
3.2 筛面的长和宽的确定 9
3.3 筛面设计 10
3.4 筛面开孔率的计算 11
3.5 筛分效率 11
4 动力学分析及参数计算 12
4.1振动筛的动力学分析 12
4.2单轴振动筛的工作状态 14
4.3 隔振弹簧的确定 16
4.4 激振器偏心质量偏心距 17
5 电动机的选择 18
6 筛箱的设计 21
6.1侧板和横梁 21
6.2筛箱结构的焊接 21
6.3筛面的固定方法 21
7 V型带的设计 23
8 激振器轴承的选用及校核 26
8.1振动筛轴承的选择 26
8.2轴承的校核 26
8.2.1寿命校核 27
8.2.3结论 28
9 总结 29
参考文献 30
致谢 31
温馨提示:
1、题目前面的备注【字母数字编号】为本站整理分类的编号,与课题内容无关,请选题时忽视;
2、若题目上备注三维,则表示文件里包含三维源文件,由于三维组成零件数量较多,为保证预览截图的简洁性,本站将三维文件夹进行了打包。三维及CAD预览截图,均为本站电脑打开软件进行截图的,保证能够打开,下载原件超高清,下载后解压即可;
3、本站所有资源如无特殊说明,都需要本地电脑安装Office2007。图纸软件为AutoCAD,PROE,UG,SolidWorks,CATIA等;
4、本站所有图文资料仅供用户学习参考,不作为任何商用或其他用途;
5、本站不保证下载资源的准确性、安全性和完整性, 不包修改,不支持退换,同时也不承担用户因使用这些下载资源对自己和他人造成任何形式的伤害或损失;
6、 下载文件中如有侵权或不适当内容,请与我们联系,我们立即纠正。