

作品包括:
说明书一份,共22页,约7500字
PPT答辩一份
CAD版本图纸,共10张
摘要
为了适应农业机械化的要求,减轻农民的劳动强度,我设计了一种田间拾包机,本文主要叙述了田间拾包机的设计及计算过程。是根据挖掘机和随车吊的结合应用,进行设计的一种机器。
首先,本文介绍的这种田间拾包机的作用,及其工作原理。应用Pro/Engineer软件进行三维造型。然后是其主要的零件的设计及材料的选用,拾包机安装在一种轻型专用汽车上,主要用于田间水稻收割时使用, 是将田间收割好的谷包拾捡到汽车车箱上,实现了只需操作拾包机即可将谷包有序的放置在车箱中。
文章详细介绍了各零件之间的装配方式,最后就是叙述拾包机怎样通过汽车上的液压动力驱动它工作的。
关键字:拾包机 液压传动 装配
目 录
第一章 绪论………………………………………………………………………………1
1.1 现代农业机械的发展现状……………………………………………………1
1.2 田间拾包机工作装置简介……………………………………………………1
1.3 田间拾包机拟达到的工作要求………………………………………………2
第二章 总体方案设计……………………………………………………………………3
2.1 工作装置构成及工作原理 ……………………………………………………3
2.2 工作装置各部分方案选择 ……………………………………………………4
2.3.1 动臂种类选择 …………………………………………………………5
2.3.2 动臂油缸布置方案选择 ………………………………………………5
2.3.3 卡爪的组成及装配方式 ………………………………………………6
2.3.4 回转装置的选择 ………………………………………………………6
2.3 设计基本参数以及设计作业范围 …………………………………………7
第三章 工作装置基本尺寸计算 ………………………………………………………8
3.1卡爪参数的确定 ………………………………………………………………8
3.1.1 卡爪基本尺寸的选择 …………………………………………………8
3. 1.2 卡爪主轴尺寸选择及校核 ……………………………………………9
3.2 动臂和斗杆参数确定 ………………………………………………………9
3.2.1 动臂和斗杆基本尺寸的选择 ……………………………………………9
3.2.2斗杆宽度、钢板厚度、许用应力的选取 ………………………………10
3.2.3动臂宽度、钢板厚度、许用应力的选取 ………………………………12
第四章 液压驱动装置设计 ……………………………………………………………15
4.1 回转机构液压缸的选取……………………………………………………15
4.2 工作机构液压缸的选取……………………………………………………15
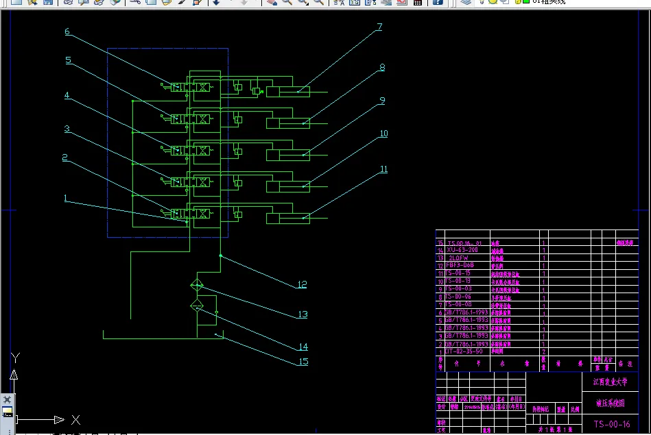
4.3 液压回路与控制系统………………………………………………………15
总结 ……………………………………………………………………16
参考文献……………………………………………………………………………17
致谢 …………………………………………………………………………………18
温馨提示:
1、题目前面的备注【字母数字编号】为本站整理分类的编号,与课题内容无关,请选题时忽视;
2、若题目上备注三维,则表示文件里包含三维源文件,由于三维组成零件数量较多,为保证预览截图的简洁性,本站将三维文件夹进行了打包。三维及CAD预览截图,均为本站电脑打开软件进行截图的,保证能够打开,下载原件超高清,下载后解压即可;
3、本站所有资源如无特殊说明,都需要本地电脑安装Office2007。图纸软件为AutoCAD,PROE,UG,SolidWorks,CATIA等;
4、本站所有图文资料仅供用户学习参考,不作为任何商用或其他用途;
5、本站不保证下载资源的准确性、安全性和完整性, 不包修改,不支持退换,同时也不承担用户因使用这些下载资源对自己和他人造成任何形式的伤害或损失;
6、 下载文件中如有侵权或不适当内容,请与我们联系,我们立即纠正。