

作品包括:
说明书1份,共15页,约6700字左右
CAD版本本图纸,共3张
摘 要
电气工程是电气工业的产物,本课题研究了可编程控制器(PLC)在塑料注塑成型生产线控制系统中的应用。在全球经济发展的大环境下,中国各个行业被其他国家的先进技术影响的同时,越来越多的外国企业和品牌传播到中国已经成为现实。基于PLC的塑料注塑成型生产线控制系统的发展与人类社会的进步和科学技术的水平密切相关,所以本次的设计对于注塑成型生产线控制系统的研究和发展来说具有现实意义。
本文采用PLC控制系统设计注塑成型生产线的控制系统,因为采用PLC控制系统对注塑成型生产线的操控很简单,从而使注塑成型生产线的经济发展的需要和社会发展。此外,该注塑成型生产线具有高可靠性,低功耗,长寿命,良好的环境适应性,适用于注塑成型生产线的开发,以及注塑成型生产线利润也很高,从而使PLC的机可以得到更好的发展,因此,本次的基于PLC的注塑成型生产线控制系统的设计在某种程度上面来说具有重大的经济和社会意义。
关键词: PLC,塑料注塑成型生产线,控制系统,意义
目 录
摘要 I
Abstract II
1 绪论 1
1.1 本课题研究的目的、意义 1
1.2 国内外发展现状 3
1.3 应用PLC控制系统的优点 5
2 系统总体设计 11
2.1 注塑机控制系统概述 12
2.2 温度传感器 13
2.3 调功器 13
3 系统硬件的设计 14
3.1 器件的选型 12
3.1.1 PLC的选型 12
3.1.2 电动机的选型 12
3.2 I/O输入输出点的分配 16
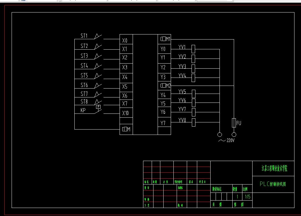
3.3 塑料注塑成型生产线控制接线图的确定 18
4 系统软件设计 24
4.1 软件组成 25
4.2 系统控制流程图 25
4.3 设计PLC控制梯形图程序 30
结 论 31
致 谢 32
参考文献 33
附 录 34
温馨提示:
1、题目前面的备注【字母数字编号】为本站整理分类的编号,与课题内容无关,请选题时忽视;
2、若题目上备注三维,则表示文件里包含三维源文件,由于三维组成零件数量较多,为保证预览截图的简洁性,本站将三维文件夹进行了打包。三维及CAD预览截图,均为本站电脑打开软件进行截图的,保证能够打开,下载原件超高清,下载后解压即可;
3、本站所有资源如无特殊说明,都需要本地电脑安装Office2007。图纸软件为AutoCAD,PROE,UG,SolidWorks,CATIA等;
4、本站所有图文资料仅供用户学习参考,不作为任何商用或其他用途;
5、本站不保证下载资源的准确性、安全性和完整性, 不包修改,不支持退换,同时也不承担用户因使用这些下载资源对自己和他人造成任何形式的伤害或损失;
6、 下载文件中如有侵权或不适当内容,请与我们联系,我们立即纠正。