欢迎来到龙图网在线图文分享平台-CAD图纸,设计说明书,工业设计3D模型,三维软件下载! 客服QQ:2363701252
热搜: 工艺夹具 模具设计 数控编程 土木工程 3D模型

A461-基于PLC的液体混合控制系统的设计 下载积分:50 资料编号: A461

1.打开支付宝或者微信扫描二维码。
2.填写金额:50 
3.添加备注,填写资料编号:
资料编号: A461
4.支付成功后,请发资料编号到邮箱:jxsj168@qq.com
会有专人在15分钟内把资料发到您邮箱
备注:如果付款忘记填写资料编号,则发邮件时附带您的交易明细截图即可。
请耐心等待,如超过30分钟还没收到,请联系客服QQ:2363701252

作品描述

作品包括:

说明书1份,共25页,约12000字左右

CAD版本本图纸,共3张


基于PLC的液体混合控制系统的设计


摘  要

     可编程序控制器(PLC)是一种新型的通用的自动控制装置,它将传统的继电器控制技术、计算机技术和通讯技术融为一体,是功能加强、编程简单、使用方便以及体积小、重量轻、功耗低等一系列优点。PLC的应用领域已经拓宽到了各个领域,PLC的发展历程在工业生产过程中,大量的开关量顺序控制,它按照逻辑条件进行顺序动作,并按照逻辑关系进行连锁保护动作的控制,及大量离散量的数据采集。在传统上,这些功能是通过气动或电气控制系统来实现的。PLC最基本最广泛的用于开关量的逻辑控制,它取代传统的继电器电路,实现逻辑控制,顺序控制,既可用于单台设备的控制,也可用于多机群控及自动化流水线。如注塑机,印刷机,订书机,组合智能窗帘,磨床,包装等。目前,PLC在国内外已广泛应用于钢铁,石油,化工,电力,建材,机械制造,汽车,轻纺,交通运输,环保及文化娱乐等各个行业,使用广泛。

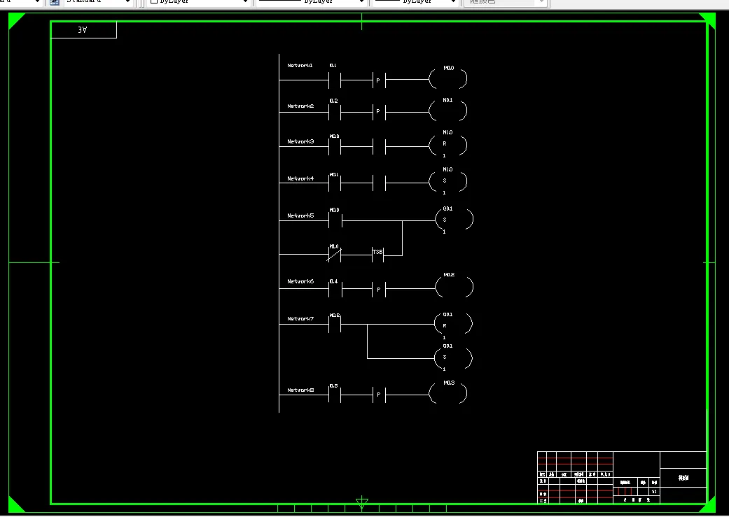
     本文以三种液体的混合灌装控制为例,将三种液体按一定比例混合,在电动机搅拌后要达到控制要求才能将混合的液体输出容器,并形成循环状态。液体混合系 统的控制设计考虑到其动作的连续性以及各个被控设备动作之间的相互关联性,针对不同的工作状态,进行相应的动作控制输出,从而实现液体混合系统从第一种液体加入到混合完成输出的这样一个周期控制工作的程序实现。设计以液体混 合控制系统为中心,从控制系统的硬件系统组成、软件选用到系统的设计过程(包括设计方案、设计流程、设计要求、梯形图设计、外部连接通信等),旨在对其中的设计及制作过程做简单的介绍和说明。

    关键词  PLC  控制  液体混合  说明 


目录

第一章 绪论 1

  1.1 课题的研究背景和历史意义 3

  1.2 选题的目的和意义 4

第二章 液体混合控制系统PLC控制系统的设计 5

  2.1 PLC简介 6

      2.1.1 PLC的定义 8

      2.1.2 PLC的用途 9

  2.2 PLC的组成 11

      2.2.1中央处理单元 13

      2.2.2存储器 14

      2.2.3输入输出单元 16

      2.2.4通讯接口 17

      2.2.5智能接口模块 18

      2.2.6编程装置 19

      2.2.7电源 19

 第三章 控制系统设计 20

   3.1 硬件设计 20

   3.2 混合装置的基本组成 20

   3.3 液体混合装置电气原理图的绘制 21

   3.4 PLCI/O点分配及外部硬件接线图 22

   3.5液体混合系统运行流程图 22

结论 23

致谢 24

参考文献 25

温馨提示:

1、题目前面的备注【字母数字编号】为本站整理分类的编号,与课题内容无关,请选题时忽视;

2、若题目上备注三维,则表示文件里包含三维源文件,由于三维组成零件数量较多,为保证预览截图的简洁性,本站将三维文件夹进行了打包。三维及CAD预览截图,均为本站电脑打开软件进行截图的,保证能够打开,下载原件超高清,下载后解压即可;

3、本站所有资源如无特殊说明,都需要本地电脑安装Office2007。图纸软件为AutoCAD,PROE,UG,SolidWorks,CATIA等;

4、本站所有图文资料仅供用户学习参考,不作为任何商用或其他用途;
5、本站不保证下载资源的准确性、安全性和完整性, 不包修改,不支持退换,同时也不承担用户因使用这些下载资源对自己和他人造成任何形式的伤害或损失;

6、 下载文件中如有侵权或不适当内容,请与我们联系,我们立即纠正。


线

A461-基于PLC的液体混合控制系统的设计 下载积分:50 资料编号:A461

作品描述

作品包括:

说明书1份,共25页,约12000字左右

CAD版本本图纸,共3张


基于PLC的液体混合控制系统的设计


摘  要

     可编程序控制器(PLC)是一种新型的通用的自动控制装置,它将传统的继电器控制技术、计算机技术和通讯技术融为一体,是功能加强、编程简单、使用方便以及体积小、重量轻、功耗低等一系列优点。PLC的应用领域已经拓宽到了各个领域,PLC的发展历程在工业生产过程中,大量的开关量顺序控制,它按照逻辑条件进行顺序动作,并按照逻辑关系进行连锁保护动作的控制,及大量离散量的数据采集。在传统上,这些功能是通过气动或电气控制系统来实现的。PLC最基本最广泛的用于开关量的逻辑控制,它取代传统的继电器电路,实现逻辑控制,顺序控制,既可用于单台设备的控制,也可用于多机群控及自动化流水线。如注塑机,印刷机,订书机,组合智能窗帘,磨床,包装等。目前,PLC在国内外已广泛应用于钢铁,石油,化工,电力,建材,机械制造,汽车,轻纺,交通运输,环保及文化娱乐等各个行业,使用广泛。

     本文以三种液体的混合灌装控制为例,将三种液体按一定比例混合,在电动机搅拌后要达到控制要求才能将混合的液体输出容器,并形成循环状态。液体混合系 统的控制设计考虑到其动作的连续性以及各个被控设备动作之间的相互关联性,针对不同的工作状态,进行相应的动作控制输出,从而实现液体混合系统从第一种液体加入到混合完成输出的这样一个周期控制工作的程序实现。设计以液体混 合控制系统为中心,从控制系统的硬件系统组成、软件选用到系统的设计过程(包括设计方案、设计流程、设计要求、梯形图设计、外部连接通信等),旨在对其中的设计及制作过程做简单的介绍和说明。

    关键词  PLC  控制  液体混合  说明 


目录

第一章 绪论 1

  1.1 课题的研究背景和历史意义 3

  1.2 选题的目的和意义 4

第二章 液体混合控制系统PLC控制系统的设计 5

  2.1 PLC简介 6

      2.1.1 PLC的定义 8

      2.1.2 PLC的用途 9

  2.2 PLC的组成 11

      2.2.1中央处理单元 13

      2.2.2存储器 14

      2.2.3输入输出单元 16

      2.2.4通讯接口 17

      2.2.5智能接口模块 18

      2.2.6编程装置 19

      2.2.7电源 19

 第三章 控制系统设计 20

   3.1 硬件设计 20

   3.2 混合装置的基本组成 20

   3.3 液体混合装置电气原理图的绘制 21

   3.4 PLCI/O点分配及外部硬件接线图 22

   3.5液体混合系统运行流程图 22

结论 23

致谢 24

参考文献 25

温馨提示:

1、题目前面的备注【字母数字编号】为本站整理分类的编号,与课题内容无关,请选题时忽视;

2、若题目上备注三维,则表示文件里包含三维源文件,由于三维组成零件数量较多,为保证预览截图的简洁性,本站将三维文件夹进行了打包。三维及CAD预览截图,均为本站电脑打开软件进行截图的,保证能够打开,下载原件超高清,下载后解压即可;

3、本站所有资源如无特殊说明,都需要本地电脑安装Office2007。图纸软件为AutoCAD,PROE,UG,SolidWorks,CATIA等;

4、本站所有图文资料仅供用户学习参考,不作为任何商用或其他用途;
5、本站不保证下载资源的准确性、安全性和完整性, 不包修改,不支持退换,同时也不承担用户因使用这些下载资源对自己和他人造成任何形式的伤害或损失;

6、 下载文件中如有侵权或不适当内容,请与我们联系,我们立即纠正。

关于我们 网站申明 友情链接 联系我们

扫一扫,联系微信客服


Copyright @ 龙图网版权所有  网站客服QQ:2363701252  微信客服:a58cad

皖ICP备2021006205号-2