

作品包括:
Word版说明书1份,共21页,约9700字
CAD版本图纸,共5张

摘要
此毕设的任务为研究策划名为N500提升机的工作机架结构。当前,提升机为在各样工业部门中被极其普遍的使用的一类运送装备,此类机械可将物料连续、均匀的提升到一定的高度,且运输量较大,工作平稳性亦较好,拥有较久的使用寿命。
此毕设基本选择理论和实际相结合的方式,了解可对该机器产生影响的一些因素,从而对该机器进行工作机架结构设计。主要步骤有:首先,要对斗式提升机的工作方式及原理有一个比较具体的了解,初步选择NE100立式提升机为参考学习对象,依据其工作方式以及一些性能,初步确立毕设的结构框架;其次,提升机工作机架结构的确立以及所采用的材料须合理,以确保该机器工作的稳定性;最后,完善整个设计,以确保该机器的工作性能符合要求。
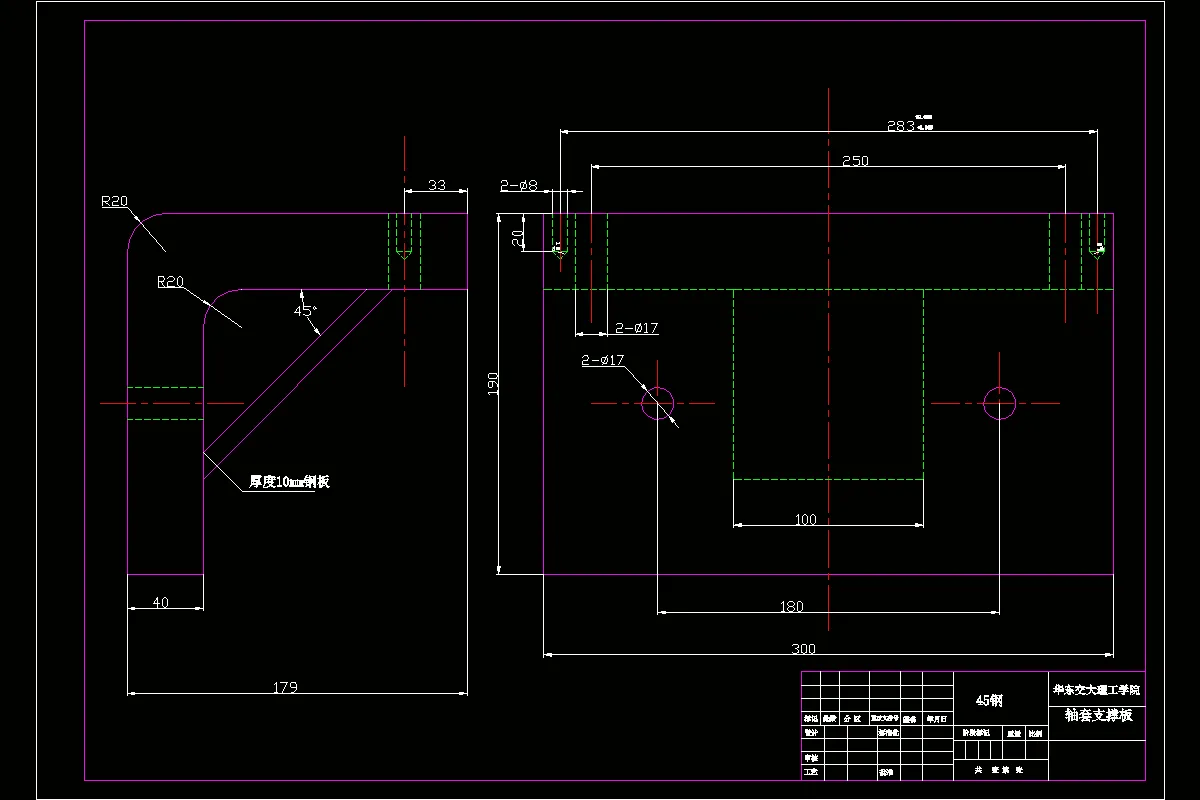
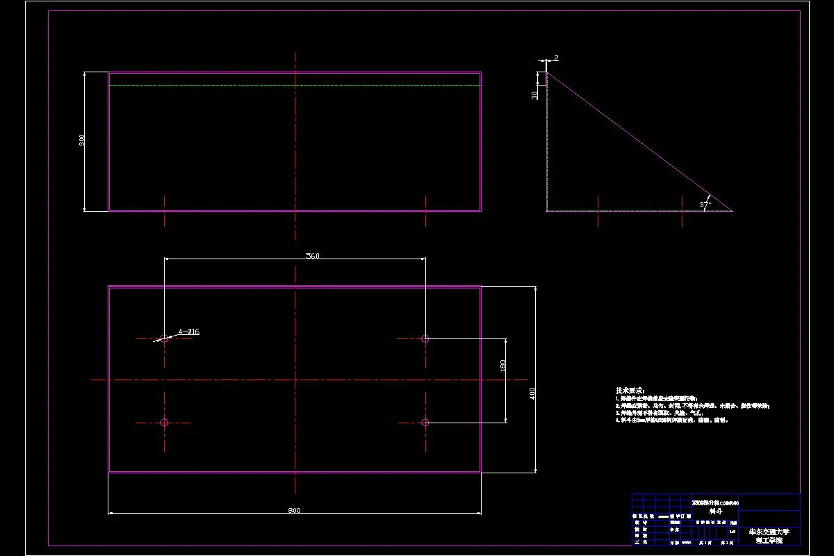
N500提升机为一台斗式提升机,主要是输送一些粉状、粒状、小块状类型的低磨琢性物料,例如:石块、水泥、粮食等谷物、煤、矿石、木屑、沙、粘土等等,并且物料的温度不得超过60度。本机的进料方式为流入式,即物料流入料斗内依靠牵引机构板链将其提升至机器顶端,之后在物料的自身重力作用下自行卸料。而工作机架结构的设计主要包括主体机构、输送方式、料斗结构等等。
温馨提示:
1、题目前面的备注【字母数字编号】为本站整理分类的编号,与课题内容无关,请选题时忽视;
2、若题目上备注三维,则表示文件里包含三维源文件,由于三维组成零件数量较多,为保证预览截图的简洁性,本站将三维文件夹进行了打包。三维及CAD预览截图,均为本站电脑打开软件进行截图的,保证能够打开,下载原件超高清,下载后解压即可;
3、本站所有资源如无特殊说明,都需要本地电脑安装Office2007。图纸软件为AutoCAD,PROE,UG,SolidWorks,CATIA等;
4、本站所有图文资料仅供用户学习参考,不作为任何商用或其他用途;
5、本站不保证下载资源的准确性、安全性和完整性, 不包修改,不支持退换,同时也不承担用户因使用这些下载资源对自己和他人造成任何形式的伤害或损失;
6、 下载文件中如有侵权或不适当内容,请与我们联系,我们立即纠正。