

作品包括:
Word版设计说明书1份,共36页,约12000字
SW三维图一套
二维工程图9张

摘要
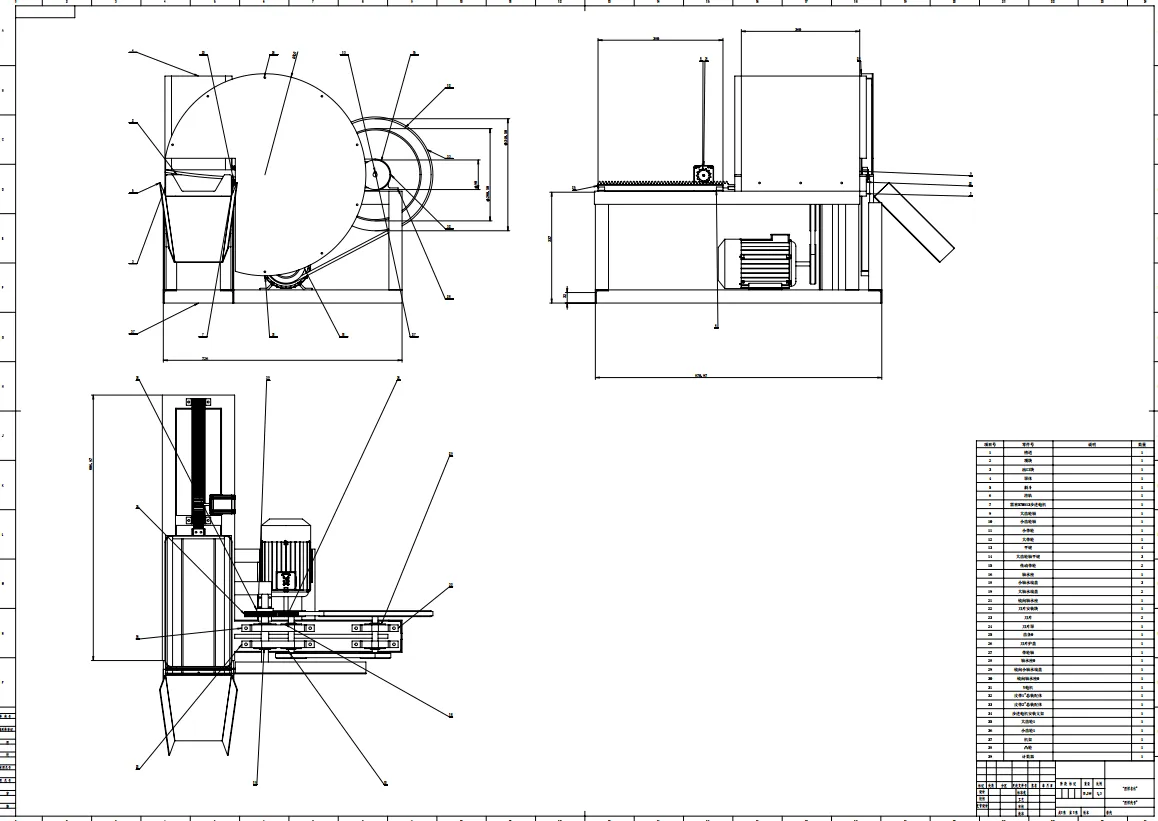
文中研制了一种机械式肉类切片机,能够实现对肉类的分离,切片和切丝,冻肉效果更为明显。肉类切片机,属于食品加工机械技术领域,该机由机架、减速机、偏心轮传动机构、切片厚度调整机构,V形托板槽自动送料夹紧机构、齿轮齿条切分结构、压料装置、快退机构及电气控制系统等构成,针对所设计功能结构采用运动仿真和有限元分析方法对其机构及关键零部件进行验证分析,以确保切片机传动结构的可靠性和稳定性。该机结构紧凑合理,切削与送料的动作同步性好,厚薄均匀可调,切削速度快,工作效率高,该切片机能够大幅度降低厨房劳动强度,显着提高厨房的工作效率和机械化程度,适用于广大肉食品加工厂及饭店,饮食行业。
关键词:电动肉类切割设备,联轴器,传动轴,V带
目 录
摘 要 II
ABSTRACT III
第1章 绪论 1
1.1 国外发展情况 1
1.2国内切片机技术的发展概况 1
第2章 系统总体方案的确定 2
2.1 结构特点及工作原理 2
2.2 工作原理 2
2.3 工作原理简图 3
2.4 系统总体方案设计 3
第3章 主要部件的设计计算及校核 4
3.1 电动机的选择 4
3.2 确定传动装置的总传动比和分配传动比 5
3.3 传动装置的运动和动力参数计算 5
3.4 V带及V带轮的选择计算 6
3.4.1 V带的选择 6
3.4.2 带轮的设计计算 7
3.5 传动轴的结构设计 9
3.5.1 传动轴的设计计算 9
3.5.2 按弯曲扭转合成应力校核轴的强度 14
3.5.3 精确校核轴的疲劳强度 14
3.6 轴承的选择及校核 16
3.7 圆柱筒的设计计算 17
3.8 键的选择与强度校核 19
3.8.1 键的选择 19
3.8.2 键的强度校核 19
第4章 齿轮的选择 21
4.1齿轮中所有内容确定 21
4.2选择齿轮的材料及齿数 21
第5章 其他部件的设计 24
5.1 入料斗设计 24
5.2 出料斗设计 24
5.3 冻肉模的设计 25
5.4 机架底座 25
第6章 装配体的视图和部分零件图 26
总 结 28
参考文献 29
致 谢 30
温馨提示:
1、题目前面的备注【字母数字编号】为本站整理分类的编号,与课题内容无关,请选题时忽视;
2、若题目上备注三维,则表示文件里包含三维源文件,由于三维组成零件数量较多,为保证预览截图的简洁性,本站将三维文件夹进行了打包。三维及CAD预览截图,均为本站电脑打开软件进行截图的,保证能够打开,下载原件超高清,下载后解压即可;
3、本站所有资源如无特殊说明,都需要本地电脑安装Office2007。图纸软件为AutoCAD,PROE,UG,SolidWorks,CATIA等;
4、本站所有图文资料仅供用户学习参考,不作为任何商用或其他用途;
5、本站不保证下载资源的准确性、安全性和完整性, 不包修改,不支持退换,同时也不承担用户因使用这些下载资源对自己和他人造成任何形式的伤害或损失;
6、 下载文件中如有侵权或不适当内容,请与我们联系,我们立即纠正。