

作品包括:
Word版设计说明书1份
任务书一份
开题报告一份
外文翻译一份
CAD版本图纸,共4张
摘要
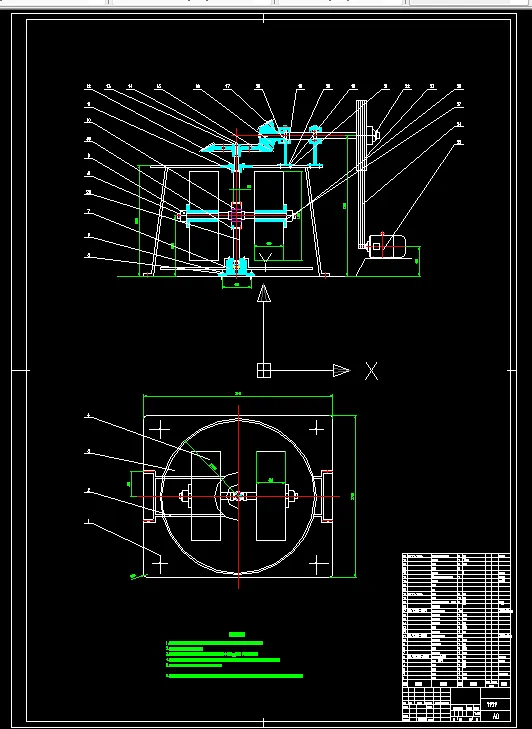
插电式混合动力客车底架及地板设计。介绍了我国客车行业的发展情况和国内外插电式混合动力客车的发展历史和发展现状,国内外插电式混合动力客车底架的发展趋势与研究意义。阐述了底架的设计原则,设计步骤,设计思路,设计依据与各部分设计的难易程度,同时介绍了国外同类型车型的设计思路。详细分析了底架结构与车身结构的特点。对底架各个梁位置进行了具体的布置,对外伸梁总成,以及它的安装固定方法进行了详细的说明,对底架前后踏步参照车门所定尺寸进行了详细的设计和布置,对前后车轮轮罩按照总布置进行的跳动校核进行了一定的修改和创新。具体介绍了底架设计的步骤,底架零件的选材、焊接工艺、装配方式、尺寸参数的确定。并且详细介绍了底架的三种防腐蚀处理方法。详细阐述了地板的选材依据与设计步骤,地板尺寸的确定与固定方式,以及对地板的隔热减噪的方式进行了详细的说明。
温馨提示:
1、题目前面的备注【字母数字编号】为本站整理分类的编号,与课题内容无关,请选题时忽视;
2、若题目上备注三维,则表示文件里包含三维源文件,由于三维组成零件数量较多,为保证预览截图的简洁性,本站将三维文件夹进行了打包。三维及CAD预览截图,均为本站电脑打开软件进行截图的,保证能够打开,下载原件超高清,下载后解压即可;
3、本站所有资源如无特殊说明,都需要本地电脑安装Office2007。图纸软件为AutoCAD,PROE,UG,SolidWorks,CATIA等;
4、本站所有图文资料仅供用户学习参考,不作为任何商用或其他用途;
5、本站不保证下载资源的准确性、安全性和完整性, 不包修改,不支持退换,同时也不承担用户因使用这些下载资源对自己和他人造成任何形式的伤害或损失;
6、 下载文件中如有侵权或不适当内容,请与我们联系,我们立即纠正。