

作品包括:
Word版说明书1份,共37页,约13000字
任务书一份
开题报告一份
外文翻译一份
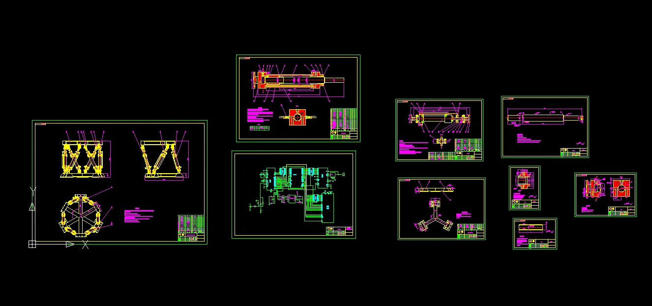
CAD版本图纸,共9张
![1749602444926913.webp 4AV8M{F@P)3OERVCDH[0]]C.webp](/static/upload/image/20250611/1749602444926913.webp)
摘要
六自由度摇动试验台即广泛用于汽车装在载、船舶装载、飞机装载设备的平稳瞄准系统实验,又用于车辆、舰船、飞行人员进行训练模拟训练。六自由度振动利用斯图尔特平行的空间结构和变化六到六度的自由伸缩杆长度的平台运动测试表(x,y,z,α,β,γ)的操作,就可以实现各种运动的空间形式。本文主要对六自由度摇动试验台本体结构设计、液压缸设计、控制系统(单片机)电气原理设计和液压油路及电液伺服阀运用四方面进行说明。
首先分析六自由度摇动试验平台的机构运动特点,设计基本参数并计算取得符合要求的尺寸数据。
其次根据数据设计液压缸部分的硬件系统,传感器选择和安装。
然后设计油路系统和伺服阀选择和安装。
最后完成以单片机为核心的控制系统电气原理设计。将控制系统应用于六自由度摇动试验台,六自由度摇动试验台运行平稳。
关键词:六自由度摇动试验台;液压缸;单片机控制
目 录
第1章 绪论 1
1.1课题背景及意义 1
1.2 六自由度摇动试验台简介 1
1.3六自由度平台国内外研究状况 2
1.3.1 国外研究历史 2
1.3.2 国内研究历史 3
1.4 课题主要研究内容 4
第2章 六自由度运动平台本体结构设计 5
2.1 平台主要参数及运动要求 5
2.2 平台结构组成方式 5
2.3 计算平台在六个自由度运动时支腿伸缩变化范围 7
2.4计算各支腿负载 9
2.5六自由度摇动试验台驱动方式的选择 10
第3章 液压缸及其零部件设计 12
3.1液压缸的简单介绍 12
3.2 液压缸的设计 12
3.2.1液压缸缸筒内径D的计算 12
3.2.2液压缸活塞杆直径d的选择 13
3.2.3液压缸壁厚的计算 13
3.2.4缸体外径尺寸的计算 13
3.2.5最小导向长度的确定 13
3.2.6活塞宽度的确定 14
3.2.7缸体长度的确定 14
3.2.8液压缸流量Q计算 14
3.2.9液压缸进、出油口尺寸的确定 14
3.3 液压缸的密封设计 15
3.4 支承导向的设计 16
3.5 液压缸材料的选用 16
第四章 主要元器件的选择 17
4.1传感器的选择与安装 17
4.2伺服阀的选择 20
4.3万向节的选择与装配 21
第5章 液压油路设计 22
设计原理图如下: 22
第6章控制系统电气原理图设计 23
6.1程序框图如下 23
6.2选型与计算 24
6.2.1单片机选型(AT89C51) 24
6.2.2模数转换器选型ADC809 25
6.2.3稳压电源设计 25
6.2.4地址锁存器和数据存储器扩展的选择 26
6.2.5键盘与显示方案的确定 27
6.2.6上下机连接芯片选择 27
第7章 用三维工具建立模型 28
结论 29
致谢 30
参考文献 31
温馨提示:
1、题目前面的备注【字母数字编号】为本站整理分类的编号,与课题内容无关,请选题时忽视;
2、若题目上备注三维,则表示文件里包含三维源文件,由于三维组成零件数量较多,为保证预览截图的简洁性,本站将三维文件夹进行了打包。三维及CAD预览截图,均为本站电脑打开软件进行截图的,保证能够打开,下载原件超高清,下载后解压即可;
3、本站所有资源如无特殊说明,都需要本地电脑安装Office2007。图纸软件为AutoCAD,PROE,UG,SolidWorks,CATIA等;
4、本站所有图文资料仅供用户学习参考,不作为任何商用或其他用途;
5、本站不保证下载资源的准确性、安全性和完整性, 不包修改,不支持退换,同时也不承担用户因使用这些下载资源对自己和他人造成任何形式的伤害或损失;
6、 下载文件中如有侵权或不适当内容,请与我们联系,我们立即纠正。