

作品包括:
Word版设计说明书1份,共37页,约20000字
任务书一份
CAD版本图纸,共4张

摘 要
机械式汽车库近年来也在我国一些大城市中兴起,虽然尚存在各种各样的问题,但经验也正在积累中它具有高效、安全、节省空间等优势,机械式汽车库的发展将会有广阔的前途。城市化进程的加速,日益增多的汽车带来了城市停车场不足以及由此引发的一系列问题,已经成为困扰我们的一个社会问题,迫使我们在城市中紧凑的地域内对停车空间,停车方式进行新的探索。停车库也由地面向地下,由单层向多高层发展,停车方式亦由坡道式向机械式发展。本文是使用机械设备作为运送或既运送且停放车辆的汽车库,在一个建筑层里叠置3-4层存放车辆的汽车库,根据国家相关规定,在确保安全的情况下,使车库切合实际,并且安全稳定。
【关键词】 升降横移式,立体车库,车库布局
目 录
第1章 绪论 1
1.1 机械式停车库的优点及其特点 1
1.2 研究现状 1
1.2.1 国外研究现状 1
1.2.2 国内研究现状 1
1.2.3 主要发展趋势 2
1.3 立体车库的分类及特点 3
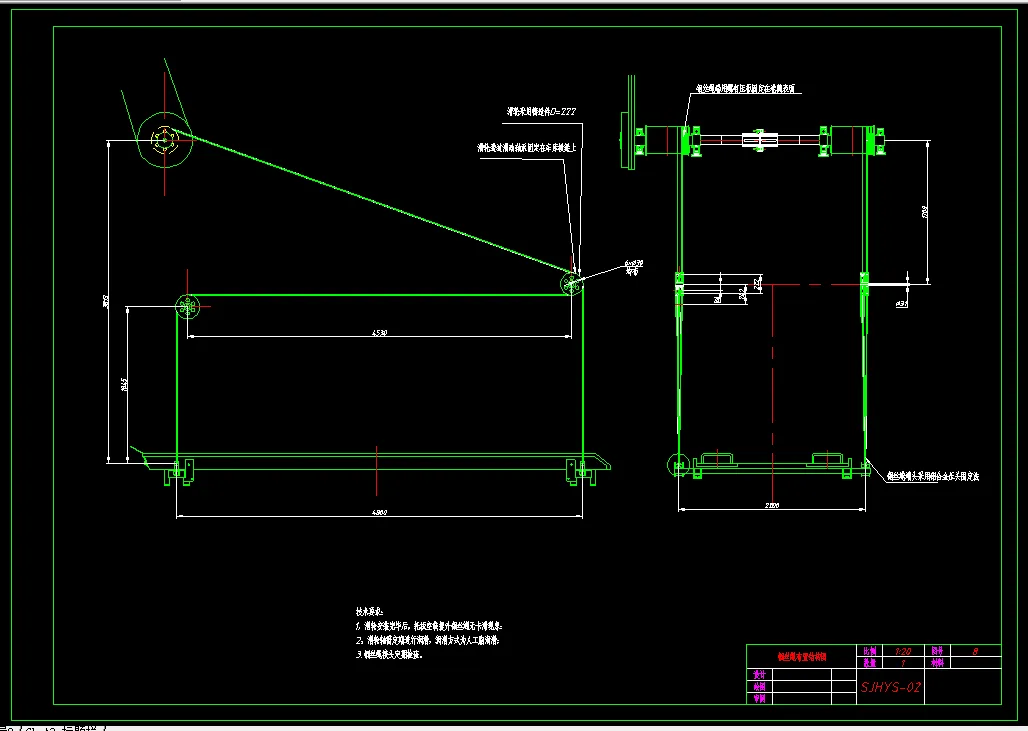
1.4 升降横移式立体车库简介 4
1.4.1 立体车库工作原理 4
1.4.2 立体车库机械部分部件结构和功能 4
1.5 升降横移式立体停车库的优越性 6
1.6 设计原始资料 7
第2章 传动系统设计 8
2.1电动机的选择 8
2.1.1升降运动电机的选择 8
2.1.2横移运动电机的选择 9
2.1.3钢丝绳的选取 11
2.2减速器的选择 11
2.2.1升降系统减速器的选择及计算 11
2.2.2横移系统减速器的选择及计算 12
2.3其他传动部件的计算 18
2.3.1载车板提升链校核 18
2.3.2键的选择和校核: 19
2.3.3联轴器的选择 20
第3章 立体车库结构设计 22
3.1结构设计总论 22
3.1.1结构设计的重要性 22
3.1.2机构体系选择 22
3.1.3结构尺寸确定 22
3.1.4立体车库受力情况分析 22
3.2立体车库钢结构分析设计与校核 23
3.2.1导轨支撑梁的设计与校核 23
3.2.2立柱的设计与校核 24
3.2.3托架横梁设计与校核 25
3.2.4托架纵梁设计与校核 26
3.3安全防护机构的设计 26
第4章 结论与展望 28
6.1结论 28
6.2展望 28
致谢 29
参考文献 30
温馨提示:
1、题目前面的备注【字母数字编号】为本站整理分类的编号,与课题内容无关,请选题时忽视;
2、若题目上备注三维,则表示文件里包含三维源文件,由于三维组成零件数量较多,为保证预览截图的简洁性,本站将三维文件夹进行了打包。三维及CAD预览截图,均为本站电脑打开软件进行截图的,保证能够打开,下载原件超高清,下载后解压即可;
3、本站所有资源如无特殊说明,都需要本地电脑安装Office2007。图纸软件为AutoCAD,PROE,UG,SolidWorks,CATIA等;
4、本站所有图文资料仅供用户学习参考,不作为任何商用或其他用途;
5、本站不保证下载资源的准确性、安全性和完整性, 不包修改,不支持退换,同时也不承担用户因使用这些下载资源对自己和他人造成任何形式的伤害或损失;
6、 下载文件中如有侵权或不适当内容,请与我们联系,我们立即纠正。