

作品包括:
Word版设计说明书1份
CAD版本图纸,共7张
摘要
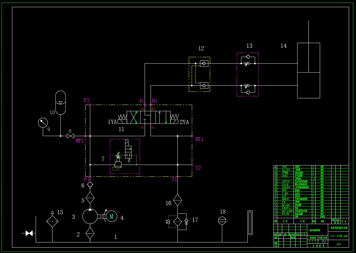
包含二维泵站装配图,液压系统原理图,冷却器支座,油缸装配,油箱焊合,油箱盖和钟罩二维图。 设计要求:额定压力为10-15MPa,液压元件工作温度为50-80℃,噪声不超过80dB。根据设计要求确定泵的型号、电机型号、油箱容积、管路内径等,确定液压站的总体设计方案。
温馨提示:
1、题目前面的备注【字母数字编号】为本站整理分类的编号,与课题内容无关,请选题时忽视;
2、若题目上备注三维,则表示文件里包含三维源文件,由于三维组成零件数量较多,为保证预览截图的简洁性,本站将三维文件夹进行了打包。三维及CAD预览截图,均为本站电脑打开软件进行截图的,保证能够打开,下载原件超高清,下载后解压即可;
3、本站所有资源如无特殊说明,都需要本地电脑安装Office2007。图纸软件为AutoCAD,PROE,UG,SolidWorks,CATIA等;
4、本站所有图文资料仅供用户学习参考,不作为任何商用或其他用途;
5、本站不保证下载资源的准确性、安全性和完整性, 不包修改,不支持退换,同时也不承担用户因使用这些下载资源对自己和他人造成任何形式的伤害或损失;
6、 下载文件中如有侵权或不适当内容,请与我们联系,我们立即纠正。