

作品包括:
word说明书一份,共50页,约19000字
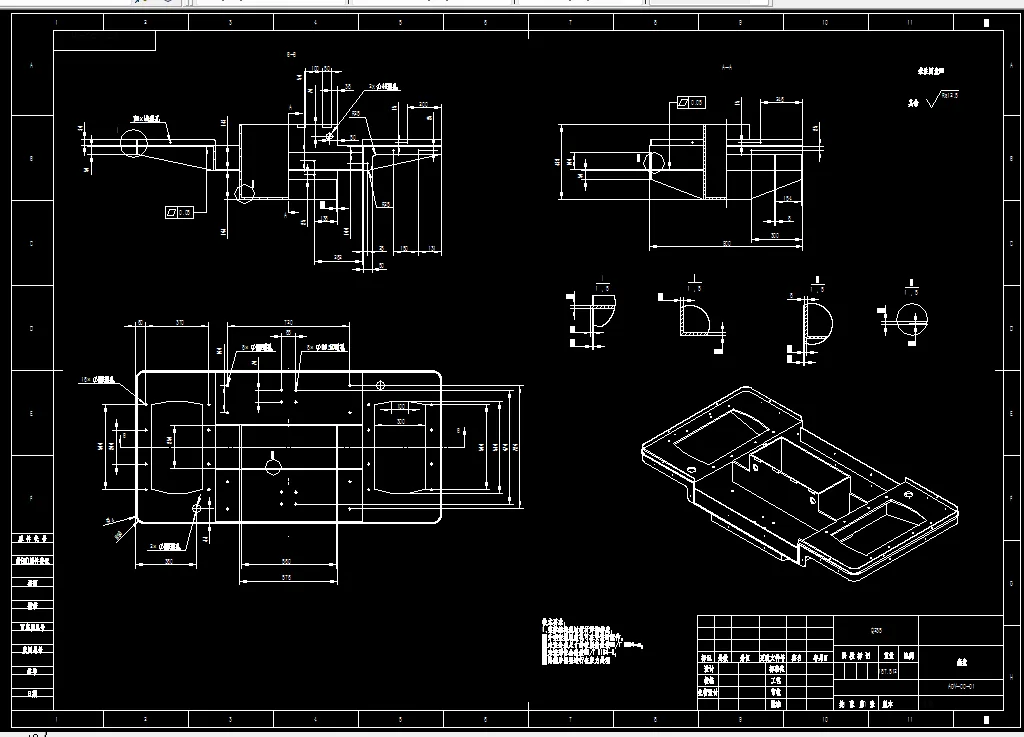
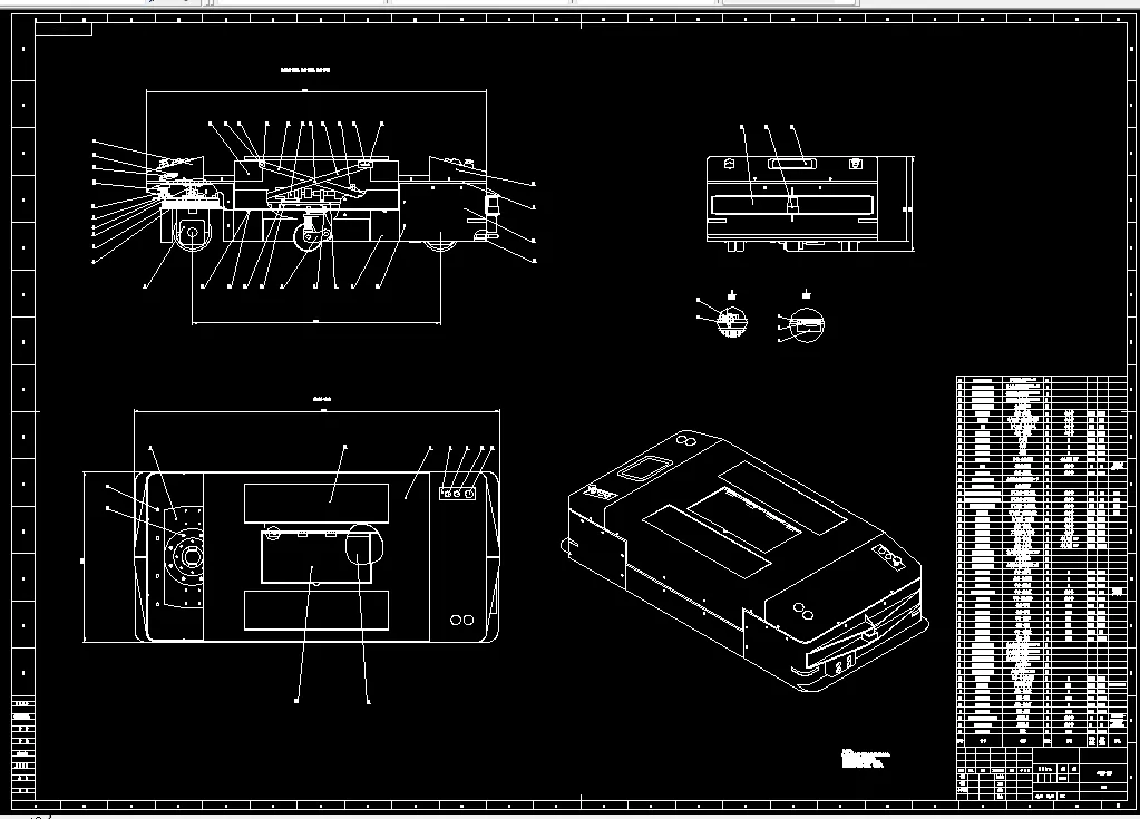
CAD版本图纸,共16张
UG三维图一份

摘要
自动引导车(AGV)是广泛应用于物流仓储与制造行业的运输装备。近年来,随着国内电子商务等行业的快速发展,AGV 在国内得到广泛应用。目前国内的 AGV 厂商数以百计, 设计的车型也是各有千秋。不同类型的 AGV 的使用场合都有所区别。为了更好满足特定工作环境下的搬运需求,本文设计了一种具有举升功能的双舵轮 AGV,能较好地完成重型物料搬运工作,同时为国内 AGV 产业的发展提供绵薄的力量。
本文完成的主要内容是双舵轮 AGV 的结构设计,包括总体设计方案确定、零部件的结构设计、零部件强度刚度校核三项内容。了解各种类型 AGV 的特点以及组成,明确双舵轮AGV 应该具备的功能,同时分析设计要求,根据功能及要求确定该双舵轮 AGV 的整体设计方案。
零部件的结构设计,重点论述驱动转向部件、悬挂系统、举升装置三部分。通过设计要求计算驱动部件的主要参数,依照计算结果选择满足要求的轮系零部件。通过悬挂系统多个常见方案的简单论证,选择最合理的方案,设计悬挂系统的具体结构,同时确定部分标准零部件的参数。至于举升装置,同样进行方案论证,选择合理方案并设计结构,同时完成相关零部件的选型。底盘作为整车装配基体,为设计中最重要的部分,贯穿整个设计过程的零部件,首先确定其整体轮廓,而后根据驱动转向部件、举升部件以及电气部件的尺寸与安装位置确定精确尺寸,该过程需要进行反复斟酌与修改。对于电气零部件及车体外壳等,文中进行了简略的设计叙述。
文中还对部分主要零部件进行强度刚度的仿真校核工作,检验设计的零部件结构能否满足材料性能与工作性能要求。
本文设计的双舵轮驱动 AGV,只是当今时代 AGV 设计中的一个小例子,但明确的设计思路、独特的设计想法以及其展现的功能特点,相信会对国内 AGV 事业的发展提供绵薄而坚实的一步。
关键词:结构设计;双舵轮 AGV;底盘;悬挂系统;举升装置
目录
第 1 章 绪论 1
• AGV 的发展 1
• AGV 在当今实际生产中的作用与意义 2
• 研究(设计)的目的与意义 2
第 2 章 总体方案选择与确定 4
• AGV 的分类、组成与设计条件的分析 4
• AGV 的分类与组成 4
• 设计条件及分析 5
• 总体方案的确定 6
• 驱动转向部件的分布形式确定 6
• 车体类型的整体方案确定 7
• 本章小结 8
第 3 章 AGV 整车结构设计 10
• 驱动与转向部件的参数计算与选型 10
• 主要参数计算 10
• 舵轮与万向脚轮的选型 11
• 舵轮悬挂系统结构设计 13
• 方案确定与参数计算 13
• 悬挂系统的结构设计 15
• 举升机构的计算与设计 16
• 举升方式的确定 16
• 举升机构的结构设计 16
• 举升电机与丝杠的选型 17
• AGV 底盘结构设计 19
• 底盘结构的初步设计 19
• 底盘结构的详细设计 20
• 其余主要零部件的设计与选型 21
• AGV 电源的计算选型 21
• 主要电气元件的选型 22
• 车体外壳的设计 23
• 本章小结 25
第 4 章 主要零部件的强度与刚度校核 28
5.1 AGV 底盘的强度与刚度校核 28
• 模型简化 28
• 静力学仿真分析 29
5.2 本章小结 31
第 5 章 总结与展望 33
5.1 设计总结 33
5.2 展望 34
参考文献 35
致谢 37
温馨提示:
1、题目前面的备注【字母数字编号】为本站整理分类的编号,与课题内容无关,请选题时忽视;
2、若题目上备注三维,则表示文件里包含三维源文件,由于三维组成零件数量较多,为保证预览截图的简洁性,本站将三维文件夹进行了打包。三维及CAD预览截图,均为本站电脑打开软件进行截图的,保证能够打开,下载原件超高清,下载后解压即可;
3、本站所有资源如无特殊说明,都需要本地电脑安装Office2007。图纸软件为AutoCAD,PROE,UG,SolidWorks,CATIA等;
4、本站所有图文资料仅供用户学习参考,不作为任何商用或其他用途;
5、本站不保证下载资源的准确性、安全性和完整性, 不包修改,不支持退换,同时也不承担用户因使用这些下载资源对自己和他人造成任何形式的伤害或损失;
6、 下载文件中如有侵权或不适当内容,请与我们联系,我们立即纠正。