

作品包括:
Word版设计说明书1份,共36页
CAD版本图纸,共10张
SW三维图一套
摘要
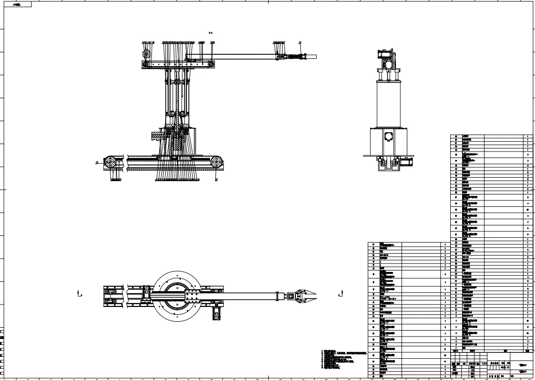
本设计研究的是一种应用于药房发药环境的发药机器人,它由三个关节、末端执行器和地面直线移动系统组成。机器人的第一轴是底座的旋转轴,第二轴是上下运行的升降轴,采用丝杆控制,具有高精度和稳定性。第三轴是水平方向移动轴,采用同步带和滑块控制,具有较大的移动范围和快速的响应能力。整个机器人的底座安装在直线导轨系统上,在直线导轨和同步带的作用下,机器人可以快速的水平直线运动,从而将取到的药送至柜台。 本设计的发药机器人的控制系统采用可编程控制器的控制系统。机器人通过编程实现自动化控制和执行加工任务。通过计算终点位置,调整控制系统的参数和算法,能够实现对机械臂的精准控制和位置定位。 本设计还对机械臂在药房发药环境中的应用进行了研究。机械臂在药房发药中具有高效、精准、稳定的特点,能够自动化完成各种加工任务,提高加工效率和质量,减少工人的劳动强度和人为失误的风险。
温馨提示:
1、题目前面的备注【字母数字编号】为本站整理分类的编号,与课题内容无关,请选题时忽视;
2、若题目上备注三维,则表示文件里包含三维源文件,由于三维组成零件数量较多,为保证预览截图的简洁性,本站将三维文件夹进行了打包。三维及CAD预览截图,均为本站电脑打开软件进行截图的,保证能够打开,下载原件超高清,下载后解压即可;
3、本站所有资源如无特殊说明,都需要本地电脑安装Office2007。图纸软件为AutoCAD,PROE,UG,SolidWorks,CATIA等;
4、本站所有图文资料仅供用户学习参考,不作为任何商用或其他用途;
5、本站不保证下载资源的准确性、安全性和完整性, 不包修改,不支持退换,同时也不承担用户因使用这些下载资源对自己和他人造成任何形式的伤害或损失;
6、 下载文件中如有侵权或不适当内容,请与我们联系,我们立即纠正。