

作品包括:
Word版设计说明书1份
CAD版本图纸,共14张
SW三维图一套
PLC程序一份
摘要
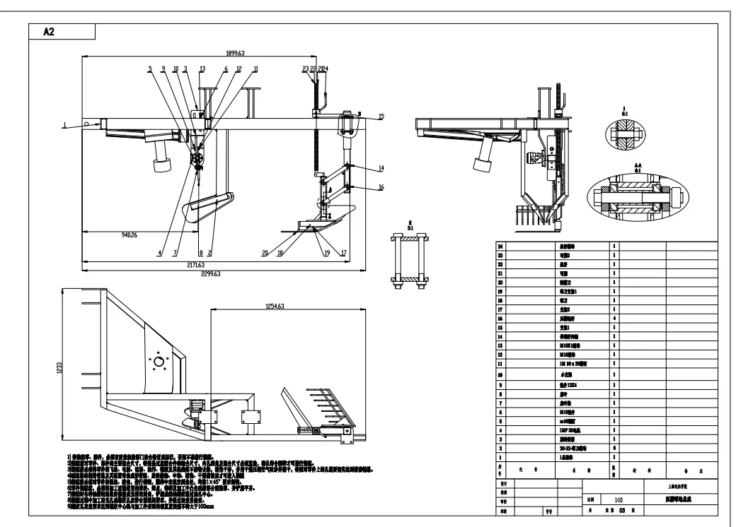
设计了一种采用PLC控制的甜菜收获机,该收获机包括压叶装置、割叶装置、犁地装置、采集装置、运输装置和收集装置。 首先介绍的是压叶装置,该装置可以有效地压实甜菜叶片,使得后续的割叶操作更加顺利。该装置采用了液压系统控制,能够根据需要进行调整。 割叶装置采用的是一个刀片横在前方,机器往前走动自动割叶。刀片的位置可以根据需要进行调整,以适应不同的甜菜生长情况。 犁地装置是用来挖出甜菜茎的,能够有效地提高甜菜的生长质量。该装置采用了电动机和液压系统控制,能够实现自动化操作。 采集装置利用了篱栅转盘装置,能够将甜菜从田间采集到收集装置中。转盘的转速可以根据需要进行调整,以适应不同的采集情况。 运输装置主要采用链条带动载物台实现循环运输,能够将收集好的甜菜快速而方便地运输到指定地点。该装置也采用了电动控制,能够根据需要进行调整转速。 最后是收集装置,该装置用来收集运输过来的甜菜。 整个甜菜收获机采用了PLC控制,能够实现自动化操作,提高了工作效率和收割质量。同时,该收获机具有多种安全保护装置,能够确保工作人员的安全。
温馨提示:
1、题目前面的备注【字母数字编号】为本站整理分类的编号,与课题内容无关,请选题时忽视;
2、若题目上备注三维,则表示文件里包含三维源文件,由于三维组成零件数量较多,为保证预览截图的简洁性,本站将三维文件夹进行了打包。三维及CAD预览截图,均为本站电脑打开软件进行截图的,保证能够打开,下载原件超高清,下载后解压即可;
3、本站所有资源如无特殊说明,都需要本地电脑安装Office2007。图纸软件为AutoCAD,PROE,UG,SolidWorks,CATIA等;
4、本站所有图文资料仅供用户学习参考,不作为任何商用或其他用途;
5、本站不保证下载资源的准确性、安全性和完整性, 不包修改,不支持退换,同时也不承担用户因使用这些下载资源对自己和他人造成任何形式的伤害或损失;
6、 下载文件中如有侵权或不适当内容,请与我们联系,我们立即纠正。