

作品包括:
Word版说明书1份,共35页,约15000字
CAD版本图纸,共5张
Creo三维图一套
![1742254291124383.webp 380{Y$4ZV(S2FF444]J`18L.webp](/static/upload/image/20250318/1742254291124383.webp)
摘要
饺子是我国人民喜爱的食品、可速冻、属方便食品。随着人民生活水平的提高,生活节奏的加快,人们对饺子的需求越来越大,因此市场需求量较大。采用手工制作,生产能力低,工人劳动强度大。设计适合我国国情的饺子机具有实际意义及市场应用前景,具有良好的社会效益,经济效益。该机自动完成供陷、制皮、成型等操作。生产量大,自动化程度高。学生通过对该机的设计,能达到教学基本要求,可在机械的结构设计和控制系统设计两个方面都得到工程师必要的基本训练,提高学生机电一体化的水平。
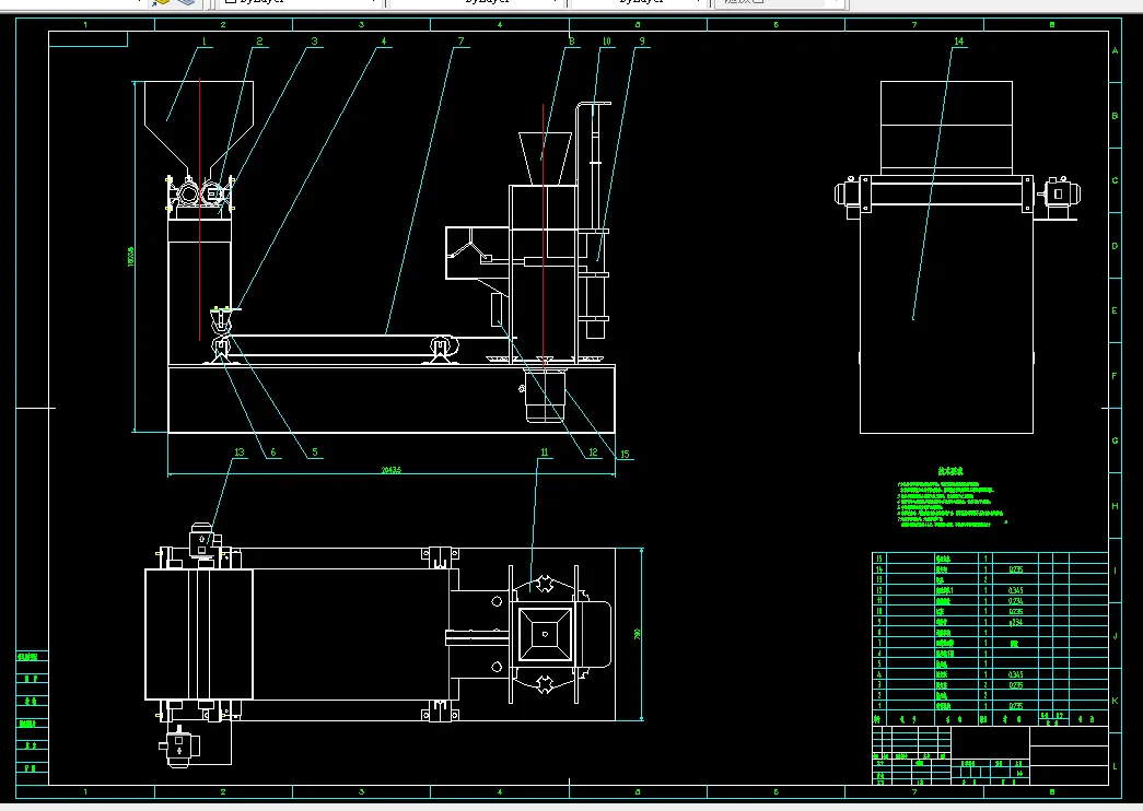
本文结合了手工水饺制作工艺,借鉴国内已有的水饺加工机,设计了适合国内小作坊生产模式的灌肠式水饺加工机。该机器可以完成输馅、输送面管、压制成型和水饺输送等功能.设计的目的是实现了将饺子的生产从手工劳动到机械化生产的转变。通过观察饺子手工生产的过程以及借鉴国内外相关食品的成型机械的结构特点,采用成型盘作为成型元件、面料输送元件作为输送元件设计饺子机。该种成型原理生产的效率高,可以实现连续式生产,也因此在食品机械中得到了广泛应用。本次设计动力源使用电动机、对传动系统中大部分的传动部件进行了设计和校核,同时绘制了饺子机的主要零部件图纸以及总体装配图纸。
关键词:水饺加工机;搅龙;挤压;成型辊
目录
摘要 V
ABSTRACT VI
第一章、 绪论 1
1.1国内外研究动态及意义 1
1.2国内外自动包饺子机的发展现状 1
1.3水饺加工机的分类 3
1.3.1包合式水饺加工机 3
1.3.2灌肠式水饺加工机 3
1.4研究内容及方法 3
1.4.1研究内容 3
1.4.2研究方法 4
第二章、工艺流程及方案确定 5
2.1水饺加工机工艺流程 5
2.2水饺加工机设计的技术路线 6
2.3方案的拟定 6
3.2方案的确定 8
第三章、各部件设计 9
3.1饺子尺寸 9
3.2螺旋压面杆尺寸选取以及压面量计算 9
3.3输面机构的设计 9
3.3.1生产能力 10
3.3.2 螺旋的直径与转速 11
3.3.3功率计算 12
3.3.4叶片泵设计 12
3.4输馅机构的设计 14
3.4.1 输馅机构 14
3.5成型机构的设计 16
3.5.1结构设计与计算 17
3.5.2总体机构设计 17
第四章、设计计算 19
4.1轴的计算 19
4.2竖绞龙的设计计算 20
4.3出面嘴的设计 21
4.4带轮的计算 21
4.4.1V带的设计 21
第五章、校核计算 24
5.1轴的校核 24
5.2轴承的校核 27
第六章、结论与展望 28
6.1 结论 28
6.2 展望 28
致谢 29
参考文献 30
温馨提示:
1、题目前面的备注【字母数字编号】为本站整理分类的编号,与课题内容无关,请选题时忽视;
2、若题目上备注三维,则表示文件里包含三维源文件,由于三维组成零件数量较多,为保证预览截图的简洁性,本站将三维文件夹进行了打包。三维及CAD预览截图,均为本站电脑打开软件进行截图的,保证能够打开,下载原件超高清,下载后解压即可;
3、本站所有资源如无特殊说明,都需要本地电脑安装Office2007。图纸软件为AutoCAD,PROE,UG,SolidWorks,CATIA等;
4、本站所有图文资料仅供用户学习参考,不作为任何商用或其他用途;
5、本站不保证下载资源的准确性、安全性和完整性, 不包修改,不支持退换,同时也不承担用户因使用这些下载资源对自己和他人造成任何形式的伤害或损失;
6、 下载文件中如有侵权或不适当内容,请与我们联系,我们立即纠正。