

作品包括:
Word版说明书1份,共31页,约12000字
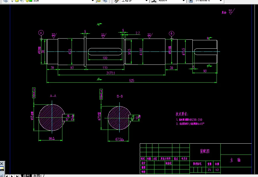
CAD版本图纸,共13张
摘 要
刮板输送机是输送粉尘状、小颗粒及小块等散状物料的连续输送设备,可以水平、倾斜和垂直输送。MC即指垂直型输送机,由于输送时,刮板链条全被埋在物料之中,故称为MC埋刮板输送机;又因为埋刮板机槽宽是200mm所以称为MC20型刮板输送机。输送物料具有内擦力和侧压力等特性。垂直输送时,主要依赖物料所具有的起拱特性。封闭机槽内的物料在受到刮板链条在运动方向的推力,且受到下部不断的给料而阻止上物料下滑的阻力时,产生横向阻力时,产生横向侧压力,从而增加物料的内摩擦力,当物料之间的内摩擦力大于物料和侧壁间的外摩擦力及物料自重时,物料就随刮板链条在运动中有振动,有些物料的料拱会时而形成,因而使物料在输送过程中对于链条产生一种滞后现象,影响输送能力。埋刮板输送机主要由封闭断面的壳体(机槽)、刮板链条、驱动装置及张紧装置等部件组成。其设备结构简单、体积小、密封性能好、安装维修比较方便;能多点加料、多点卸料,工艺选型及布置较为灵活;在输送飞扬性、有毒、高温、易燃易爆的物料时,可改善工作条件,减少环境污染。埋刮板输送机目前已被广泛应用于化工、建材、冶金、电力、粮食、轻工和交通领域。MC型埋刮板输送机是采用倾斜度较大或垂直的布置一中刮板输送机,其倾角一般为30。≤a≤90。。单台设备的输送高度不大于30m。
关键词: 输送 料拱 内摩擦力 外摩擦力 侧压力
目 录
1. 前言……………………………………………………………………………………… 1
1.1. 输送技术和输送设备的概况………………………………………………………… 1
1.2. 埋刮板输送机工作原理的特点……………………………………………………… 3
1.3. 本课题的设计目的和主要设计内容………………………………………………… 4
2.设计进度安排和主要任务………………………………………………………………… 5
3.设计计算书………………………………………………………………………………… 6
3.1.已知参数………………………………………………………………………………… 6
3.2.总体方案制定…………………………………………………………………………… 6
3.2.1. 功率计算和主要尺寸的确定……………………………………………………… 6
3.2.2. 传动设计…………………………………………………………………………… 7
3.2.3. 减速器选型……………………………………………………………………………9
3.2.4. 联轴器的选择…………………………………………………………………………10
3.3. 链传动设计………………………………………………………………………………11
3.4. 轴的设计计算和校核……………………………………………………………………14
3.5. 轴承选择与计算…………………………………………………………………………17
4. 设备的安装和调试…………………………………………………………………………20
5. 设备的维护和保养…………………………………………………………………………23
结束语………………………………………………………………………………………… 24
致谢…………………………………………………………………………………………… 28
参考文献……………………………………………………………………………………… 29
温馨提示:
1、题目前面的备注【字母数字编号】为本站整理分类的编号,与课题内容无关,请选题时忽视;
2、若题目上备注三维,则表示文件里包含三维源文件,由于三维组成零件数量较多,为保证预览截图的简洁性,本站将三维文件夹进行了打包。三维及CAD预览截图,均为本站电脑打开软件进行截图的,保证能够打开,下载原件超高清,下载后解压即可;
3、本站所有资源如无特殊说明,都需要本地电脑安装Office2007。图纸软件为AutoCAD,PROE,UG,SolidWorks,CATIA等;
4、本站所有图文资料仅供用户学习参考,不作为任何商用或其他用途;
5、本站不保证下载资源的准确性、安全性和完整性, 不包修改,不支持退换,同时也不承担用户因使用这些下载资源对自己和他人造成任何形式的伤害或损失;
6、 下载文件中如有侵权或不适当内容,请与我们联系,我们立即纠正。