

作品包括:
Word版说明书1份,共28页,约9500字
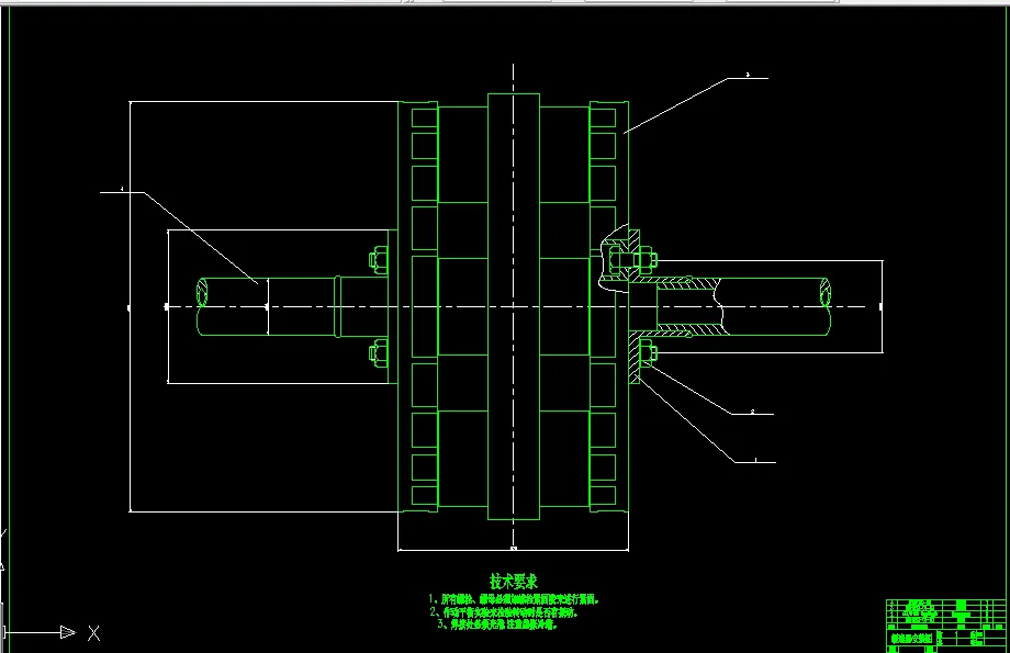
CAD版本图纸,共4张
摘要
安全是现代汽车的发展方向。电涡流缓速器作为辅助制动器的一种,主要安装在车身底盘下面的传动轴上,他是把汽车行驶时的动能通过传动轴上的缓速器转化为热量而散发掉,从而实现汽车的减速和制动。电涡流缓速器主要应用于重型车和大型客车(公交车)的缓速制动、频繁以及长时间制动,他可以使车轮制动器的温度大大降低,保证制动蹄片处于良好的技术状态。电涡流缓速器能够承担50%~90%的制动工作,将会是汽车必不可少的配备装置之一。
本文首先对电涡流缓速器的制动力矩进行推导,给出了具体的计算公式,并计算出所设计的电涡流缓速器的制动力矩和制动功率。其次结合现实生活实际应用和参照相关技术参数,对电涡流缓速器进行了整体装配以及转子、定子、法兰、花键轴、固定架及挡环等主要零部件的设计,包括外型尺寸、结构和材料等。最后对电涡流缓速器的缓速制动效果、热容量和温升进行了校核,通过计算所设计的结构和尺寸能够满足要求,得到一个较合理的结构设计。
关键词:电涡流缓速器;制动;结构设计
目录
摘要
Abstract
第一章 概述 1
1.1 电涡流缓速器概述 1
1.2 电涡流缓速器现状及发展 1
第二章 电涡流缓速器的结构和工作原理 3
2.1 电涡流缓速器的结构 3
2.1.1 电涡流缓速器的机械装置部分 3
2.1.2 电涡流缓速器的电控装置部分 4
2.2 电涡流缓速器的工作原理 5
第三章 电涡流缓速器的制动力矩的计算 7
3.1 制动功率的计算 7
3.2 涡流分布深度和磁路分析 9
3.3 气隙磁场中的磁感应强度分析 11
3.4 制动力矩的计算 13
第四章 电涡流缓速器各主要部件的结构设计 14
4.1 电涡流缓速器的主要参数的确定 14
4.1.1 结构参数 14
4.1.2 励磁线圈参数 16
4.1.3 转子材料 17
4.1.4 转速参数 17
4.1.5 计算结果 17
4.2 缓速器热容量和温升的校核 17
4.3 电涡流缓速器的结构方案 18
5 结论 20
附录 21
参考文献 23
致谢 24
3.2.1数控加工编程 17
3.2.2钻2Xø13孔的数控加工编程 23
3.2.3 其他工序的数控加工编程 24
3.3 本章小结 31
设计总结 32
致谢 34
参考文献 35
温馨提示:
1、题目前面的备注【字母数字编号】为本站整理分类的编号,与课题内容无关,请选题时忽视;
2、若题目上备注三维,则表示文件里包含三维源文件,由于三维组成零件数量较多,为保证预览截图的简洁性,本站将三维文件夹进行了打包。三维及CAD预览截图,均为本站电脑打开软件进行截图的,保证能够打开,下载原件超高清,下载后解压即可;
3、本站所有资源如无特殊说明,都需要本地电脑安装Office2007。图纸软件为AutoCAD,PROE,UG,SolidWorks,CATIA等;
4、本站所有图文资料仅供用户学习参考,不作为任何商用或其他用途;
5、本站不保证下载资源的准确性、安全性和完整性, 不包修改,不支持退换,同时也不承担用户因使用这些下载资源对自己和他人造成任何形式的伤害或损失;
6、 下载文件中如有侵权或不适当内容,请与我们联系,我们立即纠正。