

作品包括:
Word版说明书1份,共54页,约14000字
CAD版本图纸,共14张
摘 要
本次毕业设计课题为移钢车移动机构的设计。 我的设计内容主要是移钢车移动机构的传动方案的选择,相关零部件的选择和校核,非标准件的机构设计以及移钢车上零件的布置。移钢车是棒材车间里的一台重要辅助设备,其作用是将方钢从运送辊道移至炉前辊道,在连铸生产和轧钢生产中起着非常重要的作用。
此移钢车根据现有移钢车图纸进行分析和设计,并在此基础上研究国内外新型移钢车的结构特点,设计并绘制出自己的移钢车的装配图以及相应的零件图。图纸基本采用Autocad2007和Caxa二维软件进行绘图。
本文主要运用材料力学,机械制图,机械设计,机械原理等内容来设计校核相关的零部件,完成了移钢车移动机构设计中的车轮、减速器、联轴器、电机、制动器的选择,确定了端梁、车轮轴、车轮套结构形状尺寸。
本次设计的目的是根据其要完成的功能来设计移钢车移动机构的结构,以使移钢车满足相应的生产要求。通过理论计算,设计出了噪音小、运行平稳、工作安全可靠的移钢车。
关键词: 移钢车;机构设计;制动器
目 录
绪论 1
1 移钢车相关参数的选定 3
1.1移钢车起重量的选定 3
1.2移钢车跨度的选定 3
1.3移钢车运行速度的选定 4
1.4移钢车的工作效率和工作级别 4
1.5移钢车重量估计 4
2 移钢车载荷的计算 5
2.1外载荷确定方法 5
2.1.1起重载荷 5
2.1.2移钢车自重载荷 5
2.1.3动载荷 5
2.1.4移钢车运行在不平道路的冲击载荷 8
2.1.5车轮侧向载荷 8
2.2载荷的组合 10
3 机构的传动方案 11
3.1分别传动的移动机构的布置方式 11
3.2集中传动的移动机构的布置方式 13
3.3其他传动方案 14
4 移钢车的设计计算 15
4.1确定传动机构方案 15
4.2选择车轮与轨道并验算其强度 15
4.3运行阻力计算 17
4.4选择电动机 18
4.5验算电机发热条件 18
4.6选择减速器 19
4.7验算运行速度和实际功率 19
4.8验算启动时间 20
4.9起动工况下校核减速器功率 21
4.10选择联轴器 22
4.10.1机构高速轴上的计算扭矩 23
4.10.2低速轴的计算扭矩 23
4.11低速浮动轴的验算 23
4.11.1疲劳强度验算 23
4.11.2静强度验算 24
5 制动器的选择 25
6 移钢车主动齿轮和齿条的设计 26
6.1主动齿轮和齿条的尺寸设计 26
6.2齿轮传动的强度计算 28
6.2.1基本计算参数 28
6.2.2齿轮受力分析 29
6.2.3齿根弯曲疲劳强度计算 30
6.2.4齿面接触强度的计算 34
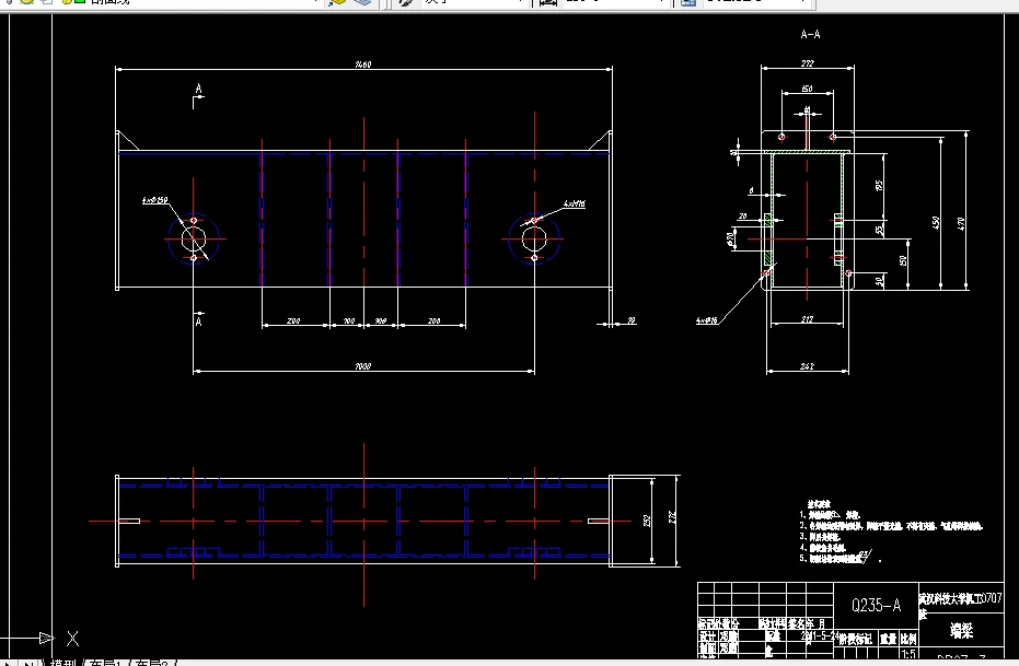
7 端梁的设计 35
7.1计算载荷的确定 35
7.2端梁垂直最大弯矩 35
7.3端梁水平最大弯矩 35
7.4端梁截面尺寸的确定 36
7.5端梁的强度验算 37
8 车轮轴的设计计算 39
9 轴承的校核 43
结论 45
参考文献 46
致谢 47
温馨提示:
1、题目前面的备注【字母数字编号】为本站整理分类的编号,与课题内容无关,请选题时忽视;
2、若题目上备注三维,则表示文件里包含三维源文件,由于三维组成零件数量较多,为保证预览截图的简洁性,本站将三维文件夹进行了打包。三维及CAD预览截图,均为本站电脑打开软件进行截图的,保证能够打开,下载原件超高清,下载后解压即可;
3、本站所有资源如无特殊说明,都需要本地电脑安装Office2007。图纸软件为AutoCAD,PROE,UG,SolidWorks,CATIA等;
4、本站所有图文资料仅供用户学习参考,不作为任何商用或其他用途;
5、本站不保证下载资源的准确性、安全性和完整性, 不包修改,不支持退换,同时也不承担用户因使用这些下载资源对自己和他人造成任何形式的伤害或损失;
6、 下载文件中如有侵权或不适当内容,请与我们联系,我们立即纠正。