

作品包括:
Word版说明书1份,共45页,约18000字
CAD版本图纸,共14张
摘要
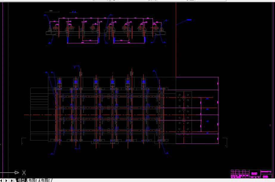
拨钢机是轧钢车间上料区主要设备之一,其作用是将加热炉前辊道上的钢坯或炉前上料台架上的钢坯推入加热炉进行二次加热过程。本设计选用了机械式拨钢机,在拨钢机结构设计上主要采用了齿轮齿条的结构形式。该机构具有结构简单,整体尺寸适中,传动效率高,维修方便,造价较低的优点。在本设计中主要对推钢机进行了结构设计和理论计算,并着重对传动机构做了详细的分析设计。
关键词:拨钢机;结构设计;理论计算
目录
前言 1
第一章 概述 2
1.1轧制工艺过程简介 2
1.1.1轧制工艺过程 2
1.1.2轧制工艺过程的设计与实施 3
1.2拨钢机的简介 3
1.2.1拨钢机的种类 3
1.2.2链式拨钢机的结构 3
1.2.3设计中应注意的几点事项 4
第二章 传动方案的分析与拟定 5
2.1传动方案的分析 5
2.1.1常用的传动类型及其特点 5
2.1.2机械传动系统设计时应注意的事项 5
2.2传动方案的拟订 6
第三章 电动机的选择计算 7
3.1概述 7
3.1.1常用电动机的种类 7
3.1.2电动机选择时的注意事项 8
3.2.1选择电动机的类型和机构型式 8
3.2.2选择电动机的容量 8
3.2.3确定电动机转速 9
3.2.4选定电动机的型号和参数 10
第四章 传动装置的运动及动力参数的选择和计算 11
4.1传动比的计算与分配 11
4.1.1传动装置的总传动比 11
4.1.2分配各级传动比 11
4.2.3各轴参数的计算 12
第五章 减速器的选择计算 13
5.1减速器概述 13
5.1.1减速器的作用 13
5.1.2减速器的分类 13
5.2减速器的选用 14
第六章.传动机构的设计计算 15
6.1齿轮齿条传动设计计算 15
6.1.1齿条传动的特点 15
6.1.2齿轮齿条传动的设计计算 16
6.2齿轮传动的设计计算 21
6.2.1齿轮传动的特点 21
6.2.2齿轮传动的设计计算 21
第七章 轴系零部件 25
7.1轴的设计 25
7.1.1概述 25
7.1.2轴的结构设计 26
7.1.3轴的强度计算 27
7.2轴承的选择与计算 30
7.2.1概述 30
7.2.2滚动轴承的类型和选择 30
7.2.3滚动轴承的受载情况和失效形式 31
7.2.4滚动轴承的寿命计算 31
7.3键的设计与校核 34
.3.1键联接的类型、特点和应用 34
7.3.2平键的选择和强度校核 35
7.4联轴器的设计计算 36
7.4.1联轴器的种类和和特性 36
7.4.2选择联轴器类型 37
7.4.3进行必要的校核 38
结 束 语 39
参考文献 40
致 谢 41
温馨提示:
1、题目前面的备注【字母数字编号】为本站整理分类的编号,与课题内容无关,请选题时忽视;
2、若题目上备注三维,则表示文件里包含三维源文件,由于三维组成零件数量较多,为保证预览截图的简洁性,本站将三维文件夹进行了打包。三维及CAD预览截图,均为本站电脑打开软件进行截图的,保证能够打开,下载原件超高清,下载后解压即可;
3、本站所有资源如无特殊说明,都需要本地电脑安装Office2007。图纸软件为AutoCAD,PROE,UG,SolidWorks,CATIA等;
4、本站所有图文资料仅供用户学习参考,不作为任何商用或其他用途;
5、本站不保证下载资源的准确性、安全性和完整性, 不包修改,不支持退换,同时也不承担用户因使用这些下载资源对自己和他人造成任何形式的伤害或损失;
6、 下载文件中如有侵权或不适当内容,请与我们联系,我们立即纠正。