

作品描述:
Word版说明书一份,39页,16000字左右.
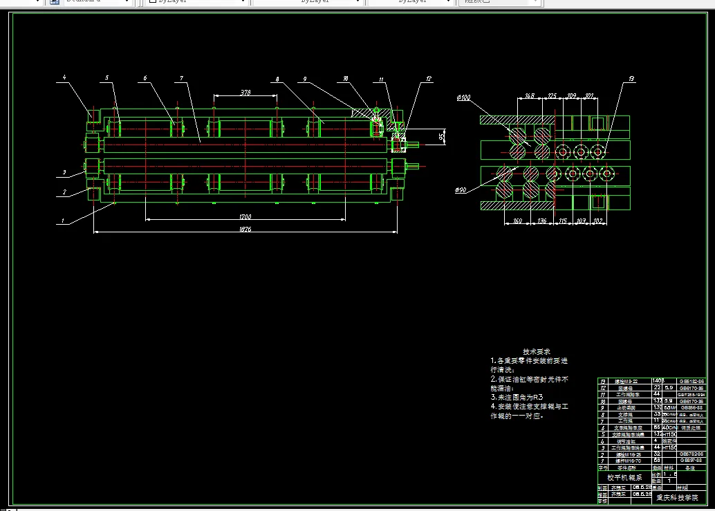
CAD版本图纸,共4张:
摘 要
进入21世纪,我国经济的发展更是突飞猛进。这很大程度上得益于机械、冶金等行业的产品的大量生产和销售。随着科学技术的发展,市场对这类产品的要求不仅在数量上,更是在质量上要求更高了。板材作为其中的一员,质量上的要求也大幅度提高。不良板形的外部表现是板材上常见的中心波浪、边浪、瓢曲、扭曲、镰刀弯或局部‘鼓包’等。板材在轧制、热处理、冷却及运输过程中产生的这些缺陷,在冶金加工厂中常用矫直机加以纠正。
本文就对与本课题的产品——钢板校平机相关的内容进行了说明与论述。首先,论述了钢板校平机研究的现状、意义和具体内容;其次,论述了校平机的工作原理、系统构成及各系统的方案选择与参数计算;最后,对本研究的结果存在的问题和缺陷进行了说明,提出应该往哪个方向继续进行研究。相信我们不懈的努力最终会使我国的板材产品在国际市场上具备很强的竞争力。
关键字: 钢板 校平机 设计
目 录
中文摘要
英文摘要
1.绪论
1.1 为什么要进行钢板矫直﹣﹣﹣﹣﹣﹣﹣﹣﹣﹣﹣﹣﹣﹣﹣﹣﹣﹣1
1.2 平行辊式矫直机的发展趋势﹣﹣﹣﹣﹣﹣﹣﹣﹣﹣﹣﹣﹣﹣﹣﹣2
1.3 本课题研究的内容和意义﹣﹣﹣﹣﹣﹣﹣﹣﹣﹣﹣﹣﹣﹣﹣﹣﹣2
2. 矫直机工作原理和方案选择﹣﹣﹣﹣﹣﹣﹣﹣﹣﹣﹣﹣﹣﹣﹣﹣﹣4
2.1 “矫直”的定义﹣﹣﹣﹣﹣﹣﹣﹣﹣﹣﹣﹣﹣﹣﹣﹣﹣﹣﹣﹣﹣4
2.2 反弯矫直的基本原理﹣﹣﹣﹣﹣﹣﹣﹣﹣﹣﹣﹣﹣﹣﹣﹣﹣﹣﹣4
2.3 本矫直机的工作原理和压下方案选择﹣﹣﹣﹣﹣﹣﹣﹣﹣﹣﹣﹣5
2.4 辊系方案选择﹣﹣﹣﹣﹣﹣﹣﹣﹣﹣﹣﹣﹣﹣﹣﹣﹣﹣﹣﹣﹣﹣6
3 主要系统的设计和参数计算 ﹣﹣﹣﹣﹣﹣﹣﹣﹣﹣﹣﹣﹣﹣﹣﹣﹣9
3.1 主传动系统设计及参数计算﹣﹣﹣﹣﹣﹣﹣﹣﹣﹣﹣﹣﹣﹣﹣﹣9
3.2 液压压下系统设计及计算﹣﹣﹣﹣﹣﹣﹣﹣﹣﹣﹣﹣﹣﹣﹣﹣﹣14
3.3 矫直辊及其轴承的选择和强度校核﹣﹣﹣﹣﹣﹣﹣﹣﹣﹣﹣﹣﹣20
4. 矫直机安装、调试与润滑﹣﹣﹣﹣﹣﹣﹣﹣﹣﹣﹣﹣﹣﹣﹣﹣﹣﹣27
4.1 平行辊矫直机的安装与调试﹣﹣﹣﹣﹣﹣﹣﹣﹣﹣﹣﹣﹣﹣﹣﹣27
4.2 平行辊矫直机的维护与润滑﹣﹣﹣﹣﹣﹣﹣﹣﹣﹣﹣﹣﹣﹣﹣﹣29
结论﹣﹣﹣﹣﹣﹣﹣﹣﹣﹣﹣﹣﹣﹣﹣﹣﹣﹣﹣﹣﹣﹣﹣﹣﹣﹣﹣﹣31
致谢﹣﹣﹣﹣﹣﹣﹣﹣﹣﹣﹣﹣﹣﹣﹣﹣﹣﹣﹣﹣﹣﹣﹣﹣﹣﹣﹣﹣32
参考文献﹣﹣﹣﹣﹣﹣﹣﹣﹣﹣﹣﹣﹣﹣﹣﹣﹣﹣﹣﹣﹣﹣﹣﹣﹣﹣33
温馨提示:
1、题目前面的备注【字母数字编号】为本站整理分类的编号,与课题内容无关,请选题时忽视;
2、若题目上备注三维,则表示文件里包含三维源文件,由于三维组成零件数量较多,为保证预览截图的简洁性,本站将三维文件夹进行了打包。三维及CAD预览截图,均为本站电脑打开软件进行截图的,保证能够打开,下载原件超高清,下载后解压即可;
3、本站所有资源如无特殊说明,都需要本地电脑安装Office2007。图纸软件为AutoCAD,PROE,UG,SolidWorks,CATIA等;
4、本站所有图文资料仅供用户学习参考,不作为任何商用或其他用途;
5、本站不保证下载资源的准确性、安全性和完整性, 不包修改,不支持退换,同时也不承担用户因使用这些下载资源对自己和他人造成任何形式的伤害或损失;
6、 下载文件中如有侵权或不适当内容,请与我们联系,我们立即纠正。