

作品描述:
Word版说明书一份,36页,13000字左右.
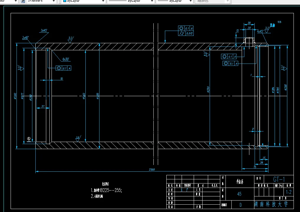
CAD版本图纸,共6张:
车载机械自动调平机械系统设计与开发
摘 要
本论文的题目是车载机械自动调平机械系统设计与开发。论文分为选题背景、方案论证、过程论述、结论总结四大部分。
选题背景部分,我主要讲述了本设计课题的来源、目的、意义、应解决的问题及应该达到的技术要求和介绍系统其它结构。还简述了本课题在国内外的发展概况,为设计提供了指导思想。
方案论证部分,我按照技术要求,对液压系统进行了分析,并设计了一套液压控制系统。
过程论证析部分,我考虑了整个雷达受到本身重力和风力的影响,为了保证力学稳定性,使用了塔架杆来支撑主升油缸。我综合考虑了液压缸举升的高度和缸需要提供的动力,结合工作环境,从而选择了四级液压缸作为主升油缸。液压缸举升1.5吨的雷达和1.5吨的塔架,再加上受风力的影响,这对主升油缸的强度提出了要求,本部分通过计算可以确定满足强度要求的缸的内外径。塔架设计部分,设计了塔架三节每节的尺寸,以及塔架各节的连接。
设计总结部分,我对本次设计过程进行了深刻的总结,为自己所学到了系统的分析问题而高兴,再次感受那些思考问题的过程与方法。
关键词:四级液压缸;雷达;设计;自动调平系统。
目录
1选题背景 1
1.1雷达车的特点 2
1.2 国内外高机动雷达发展状况 3
2 方案论证 4
2.1 主要技术指标 4
2.2 技术可行性 4
2.3 升降天线车的液压系统说明 5
2.4 测试系统的组成及功能 6
2.5 主要技术难点分析 8
2.6 与国内外同类产品技术对比分析 8
2.7 推广应用价值 8
3 过程论述 8
3.1 雷达举升机构的力学分析 8
3.2 缸的设计 12
3.3 缸的连接及材料 16
3.4 塔架的设计 23
3.5 机动式车载雷达稳定性设计分析 24
4 结论总结 31
5 致谢 32
6参考文献 33
温馨提示:
1、题目前面的备注【字母数字编号】为本站整理分类的编号,与课题内容无关,请选题时忽视;
2、若题目上备注三维,则表示文件里包含三维源文件,由于三维组成零件数量较多,为保证预览截图的简洁性,本站将三维文件夹进行了打包。三维及CAD预览截图,均为本站电脑打开软件进行截图的,保证能够打开,下载原件超高清,下载后解压即可;
3、本站所有资源如无特殊说明,都需要本地电脑安装Office2007。图纸软件为AutoCAD,PROE,UG,SolidWorks,CATIA等;
4、本站所有图文资料仅供用户学习参考,不作为任何商用或其他用途;
5、本站不保证下载资源的准确性、安全性和完整性, 不包修改,不支持退换,同时也不承担用户因使用这些下载资源对自己和他人造成任何形式的伤害或损失;
6、 下载文件中如有侵权或不适当内容,请与我们联系,我们立即纠正。