

作品包括:
Word版说明书1份,共37页,约16000字
外文翻译一份
CAD版本图纸,共4张
UG三维图一份
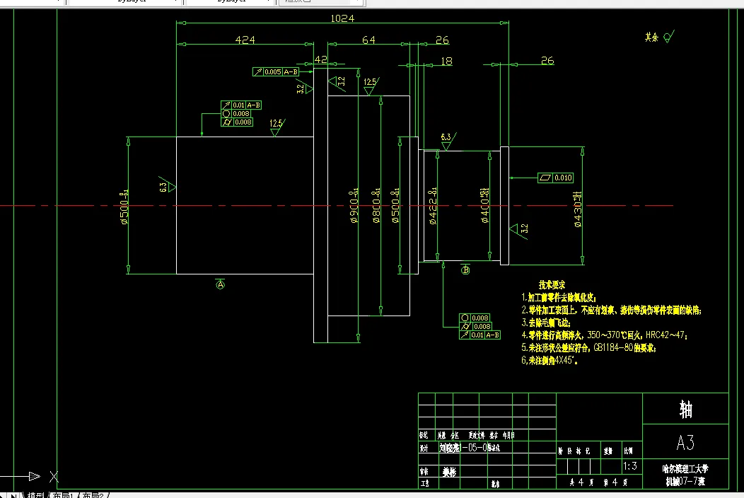
车铣加工中心工作台结构分析及其装配工艺设计
摘要
数控车床今后将向中高挡发展,中档采用普及型数控刀架配套,高档采用动力型刀架,兼有液压刀架、伺服刀架、立式刀架等品种,预计近年来对数控刀架需求量将大大增加。但是数控回转工作台更有发展前途,它是一种可以实现圆周进给和分度运动的工作台,它常被使用于卧式的镗床和加工中心上,可提高加工效率,完成更多的工艺,它主要由原动力、齿轮传动、蜗杆传动、工作台等部分组成,并可进行间隙消除和蜗轮加紧,是一种很实用的加工工具。
首先,明确课题研究的目的和意义,以及国内外的发展现状,就目前的发展趋势进行了研讨,针对当前数控工作台在加工中心中发挥的作用,对工作台进行了全面的了解。
其次,课题主要对数控回转工作台的结构进行了分析,阐述了它的工作原理,并对其内部的机械结构进行了设计。包括对工作台、工作台底座、主轴、齿圈进行了初步的设计计算。
最后,通过对工作台及其相关配套机构的了解,对工作台的各部分分别建模,选用适当的装配方法并制定合理的装配顺序,运用UG软件对其进行整体的模拟装配,直观的展现整个装配流程。然后运用AutoCAD软件将模块转换成三维工程图。
关键词 数控回转工作台;齿轮传动;圆周进给;分度
目录
摘要 I
Abstract II
第1章 绪论 1
1.1 课题背景 1
1.2 课题研究的目的及意义 1
1.3 国内及国外的发展趋势及现状 2
1.4 本课题研究的主要内容 4
第2章 加工中心总体方案设计 6
2.1 加工中心常用工作台简介 6
2.2 数控回转工作台的工作原理 8
2.3 数控回转工作台的结构分析 9
2.4 本章小结 10
第3章 关键部件的设计 11
3.1 工作台和齿圈设计 11
3.2 工作台主轴的设计 12
3.2.1 轴的设计方案 13
3.2.2 轴材料的选择 13
3.2.3 轴的受力分析及校核 13
3.3 工作台底座设计 15
3.4 传动方案的确定 16
3.4.1 传动方案的确定 16
3.4.2 传动方案及其分析 16
3.5 齿轮传动的设计 16
3.5.1 齿轮类型和材料的选择 16
3.5.2 按齿面解除疲劳强度设计 17
3.5.3 确定齿轮的主要参数与尺寸 18
3.5.4 校核齿根弯曲疲劳强度 18
3.5.5 齿轮结构设计 19
3.6 本章小结 19
第4章 装配工艺设计 20
4.1 工作台的装配工艺 20
4.1.1 工作台相关机构的安装 21
4.1.2 工作台相关机构的装配 22
4.2 工作台的整体装配 23
4.2.1 装配方法的选择 24
4.2.2 装配顺序的选择 24
4.2.3 装配过程 24
4.3 装配工艺的检测 29
4.3.1 几何精度的预检 29
4.3.2 定位精度预检 29
4.3.3 同轴度的检测 29
4.4 本章小结 30
结论 31
致谢 32
参考文献 33
附录 外文原文和翻译 34
温馨提示:
1、题目前面的备注【字母数字编号】为本站整理分类的编号,与课题内容无关,请选题时忽视;
2、若题目上备注三维,则表示文件里包含三维源文件,由于三维组成零件数量较多,为保证预览截图的简洁性,本站将三维文件夹进行了打包。三维及CAD预览截图,均为本站电脑打开软件进行截图的,保证能够打开,下载原件超高清,下载后解压即可;
3、本站所有资源如无特殊说明,都需要本地电脑安装Office2007。图纸软件为AutoCAD,PROE,UG,SolidWorks,CATIA等;
4、本站所有图文资料仅供用户学习参考,不作为任何商用或其他用途;
5、本站不保证下载资源的准确性、安全性和完整性, 不包修改,不支持退换,同时也不承担用户因使用这些下载资源对自己和他人造成任何形式的伤害或损失;
6、 下载文件中如有侵权或不适当内容,请与我们联系,我们立即纠正。