

作品包括:
Word版说明书1份,共41页,约14000字
任务书一份
开题报告一份
外文翻译一份
CAD版本图纸,共7张
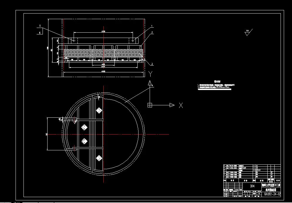
摘要:此次设计的生产装置为一种常见的、结构简单、于生产上应用广泛的中间循环式蒸发器。、其属于固定管板式换热器。本次设计包含三效蒸发原理,蒸发器的设计。而蒸发器的设计又包含蒸发器类型的选取、热力的计算、部件的选取和计算、开孔和开孔补强、法兰、接管的选取、除沫器及支座等等的设计、计算和校核。
此次设计的重点为蒸发器的设计。因为介质是食品类,所以对蒸发器壳体材料的选择、焊接及部件间的连接等等有较高的要求。因为蒸发器内压力与温度都不是太高,所以作为一类压力容器来设计。而其中焊接,无损检测的要求较严格。设计难点是热力计算、蒸发器各部件的尺寸计算及材料选择等。
关键词:蒸发器 ; 三效蒸发 ; 热力计算
目录
1 概述 1
1?1蒸发及蒸发流程 1
1?2蒸发操作的分类 1
1?3蒸发操作的特点 2
1?4蒸发设备 2
2 蒸发工艺设计计算 4
2?1 设计参数 4
2?2 部分设计参数符号 4
2?3 蒸浓液浓度计算 6
2?4 有效温度差的确定 7
2?5蒸发器的传热面积的估算 8
2?6 温差的重新分配与传热面积的重新分配 9
3 蒸发器工艺尺寸计算 10
3?1加热管的选择和管数的初步估计 10
3?2循环管的选择 12
3?3 接管尺寸的确定 13
3?4 设计条件 14
3?5 蒸发器结构设计参数的确定 15
3?6 管板的选择尺寸及设计要求 16
3?7 筒体设计 16
3?8 连接 18
3?8?1 管子与管板的连接 18
3?8?2 管板与壳体的连接 19
3?9 封头的选择、强度和厚度计算 19
3?10 法兰的确定 20
3?11 除沫器的选择、尺寸的确定 21
3?12 人孔 22
3?13 支座 22
3?14 开孔补强设计 24
4 蒸发器的校核及设计要求 26
4?1校核所用部分参数符号 26
4?2 筒体的校核 29
4?3 管板的校核 30
4?4 封头的校核 36
5 蒸发器设备的检验 38
中英文翻译 39
参考文献 51
谢 辞 52
温馨提示:
1、题目前面的备注【字母数字编号】为本站整理分类的编号,与课题内容无关,请选题时忽视;
2、若题目上备注三维,则表示文件里包含三维源文件,由于三维组成零件数量较多,为保证预览截图的简洁性,本站将三维文件夹进行了打包。三维及CAD预览截图,均为本站电脑打开软件进行截图的,保证能够打开,下载原件超高清,下载后解压即可;
3、本站所有资源如无特殊说明,都需要本地电脑安装Office2007。图纸软件为AutoCAD,PROE,UG,SolidWorks,CATIA等;
4、本站所有图文资料仅供用户学习参考,不作为任何商用或其他用途;
5、本站不保证下载资源的准确性、安全性和完整性, 不包修改,不支持退换,同时也不承担用户因使用这些下载资源对自己和他人造成任何形式的伤害或损失;
6、 下载文件中如有侵权或不适当内容,请与我们联系,我们立即纠正。