P296-T形带圆孔空调垫片的冲压成型工艺及模具设计-长55
P295-油封钢圈冲压工艺及模具设计
P294-手推车轴碗的冲压成形工艺及模具设计
P293-中铰链垫片的冲压成形工艺及模具设计-2套模具长53
P292-保持架的冲压模具设计
P291-侧双圆孔U形弯曲件的冲压成形工艺及模具设计-2套模具
P290-闭角U形弯曲件的滚动轴弯曲模具设计
P289-支撑板的冲压成形工艺及模具设计
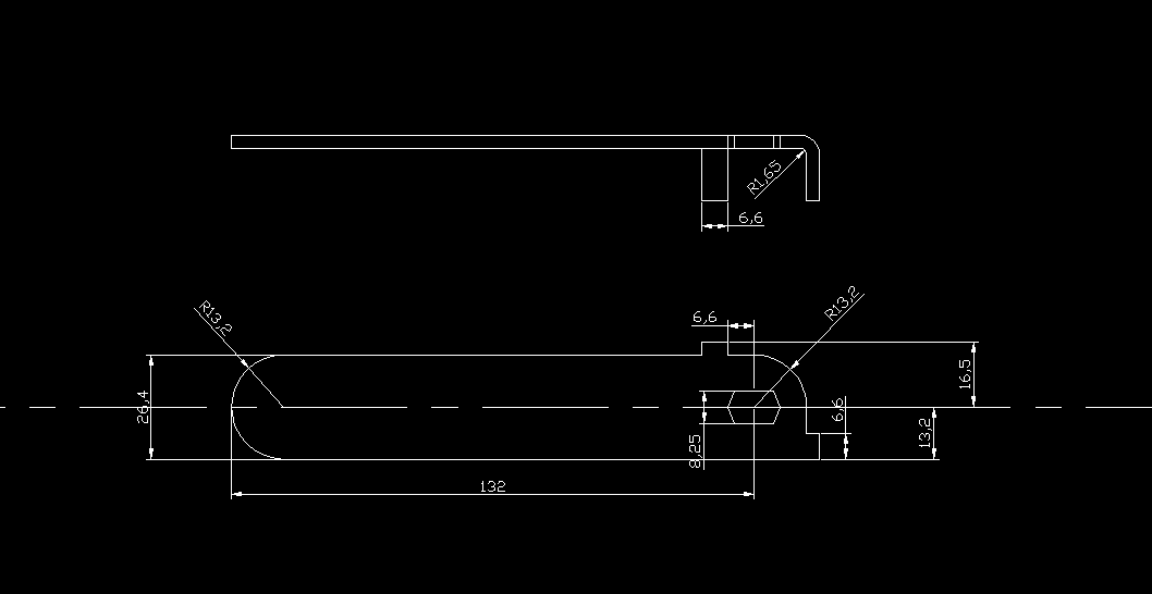
P288-手柄的冲孔落料弯曲正装连续级进模设计
P287-带孔L形支撑片的冲孔落料复合模设计
P286-张力盘的冲压成形工艺及模具设计
P285-带孔圆形垫板的冲压成形工艺与模具设计-外径29
P284-带内孔凸缘端盖的冲压拉深级进模具设计-长250
P283-带三孔凸缘几字形垫圈的冲压模具结构设计-长85
P282-带四圆孔矩形垫片的落料冲孔正装复合模具设计-长220
P281-带凸缘U形三孔长方底座的冲孔落料弯曲成形工艺与复合模具设计
P280-带凸缘七孔长方U形件底座的冲压成形工艺及模具设计
P279-带凸缘筒形件端盖的落料拉深模具设计-外径42.4
P278-带凸缘筒形件壳体的冲压工艺及模具设计-长280
P277-锥形件落料拉深工艺及模具设计