

作品包括:
word版本说明书一份,共42页,约13000字
CAD版本图纸,共9张
UG三维图一份。
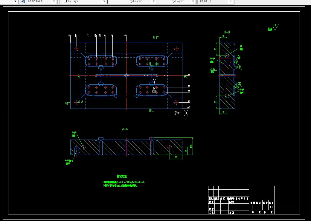
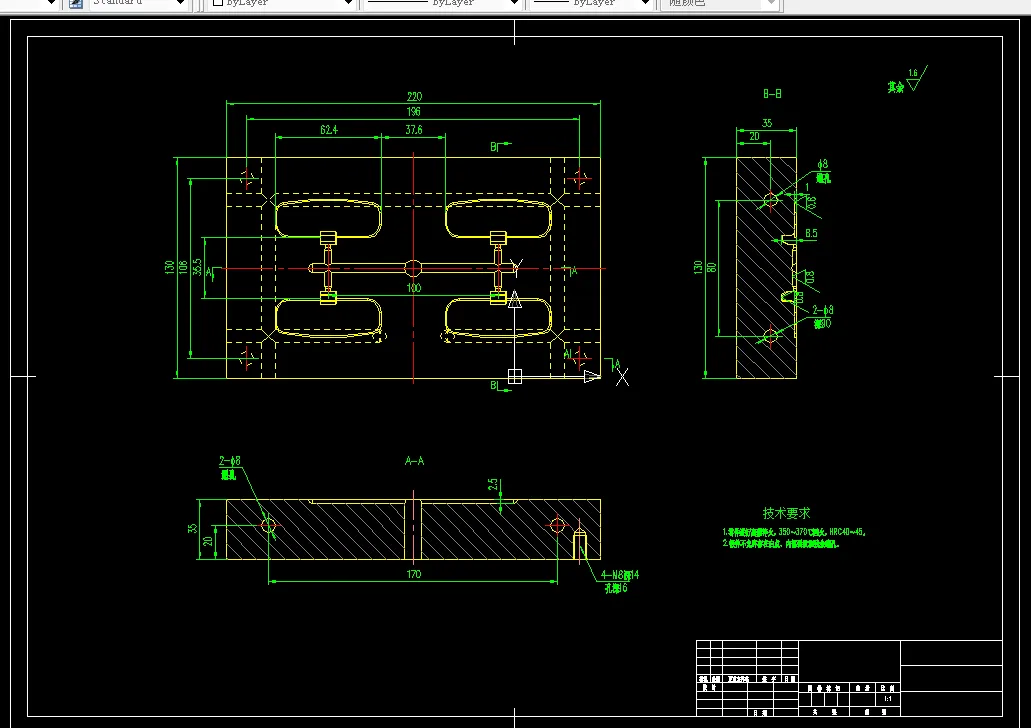
A0-装配图.dwg
A1-A板[型腔固定板].dwg
A1-B板[型芯固定板].dwg
A2-顶针面板.dwg
A2-顶针推板.dwg
A2-型腔.dwg
A2-型芯.dwg
A4-定位圈.dwg
A4-塑件图.dwg
摘 要
注塑成型是塑件生产最常用的方法之一。本设计通过注塑模具产品,利用实体模型测量产品的尺寸,对实体进行建模,并对塑件的材料和塑件结构进行分析,并对塑件的模具进行设计,包括塑件成品的设计、工艺参数的分析与计算、工作部分的设计、模具结构的设计和加工方案的制定,确定塑件的最佳浇注位置,并通过实际情况进行调整,从而得到对实际生产来说最合理的浇注位置。在确定模具型腔数目后,分析产品的气穴、熔接痕、充填时间、充填结束时的体积温度、流动前沿处的温度、速度/时间转换点压力、充填结束时的压力、注射位置处压力等,可确定注塑模具的合理性。最后本运用ug 4.0及其EMX4.1模块来完成模具整体设计工作。
关键词:模具设计;UG4.0;
目 录
引言…………………………………………………………………………………2
第一章 设计任务与流程…………………………………………….………..….3
1.1毕业设计任务…………………………………………………………………..3
1.2注塑模具设计的流程…………………………………………………………..3
第二章 塑件成品、注塑模具设计与构型…………………………………...….5
2.1 概述…………………………………………………………………………….5
2.2 模具设计环境和应用软件…………………………………………………….5
2.2.1 UG4.0……………………………………………………………………5
2.2.2 AutoCAD………………………………………………………………..5
2.3零件的三维图和二维工程图建模………………………………...…………..5
2.3.1零件的立体图建模……………………………………………………..5
2.3.2零件的二维工程图绘制………………………………………………..6
2.4塑件的基本数据…………………………………...…………………………..6
2.4.1塑件塑料品种的确定…………………………………………………..6
2.4.2塑件材质………………………………………………………………..6
2.4.3塑件体积与质量………………………………………………………..9
2.4.4塑件图及其尺寸公差…………………………………………………..9
2.4.5分型面及排气形式的确定………………………………………….....10
2.4.6型腔数的确定与型腔的分布………………………………………….11
第三章 分析设计与计算…………………………………...…………………...12
3.1浇注系统的设计…………………………………………………...………….12
3.1.1主流道设计………………………………………………...…………..13
3.1.2 浇口的设计……………………………………………………...…….19
3.2 成型方案…………………………………………………………………...…26
3.2.1 成型部分的设计……………………………………...……………….26
3.2.2 成型零部件结构设计……………………………………...………….27
3.2.3 成型零部件工作尺寸计算………………………………………..…..28
3.3 导向机构设计…………………………………………………………...……29
3.3.1 合模导向机构………………………………………...……………….29
3.4 脱模机构设计……………………………………………………...…………30
3.4.1 推杆脱模机构设计……………………………………………………30
3.5 冷却系统的计算……………………………………………………………...31
3.6 模架形式及规格…………………………………………………………...…34
3.7模具装配图与零件图的绘制……………………………………………..…..35
结 论…………………………….…………………………………...…………..36
参考文献……………………………………………………………..……………37
谢 辞…………………………………………………..…………………………38
附 图……………………………………………...……………………………...39
温馨提示:
1、题目前面的备注【字母数字编号】为本站整理分类的编号,与课题内容无关,请选题时忽视;
2、若题目上备注三维,则表示文件里包含三维源文件,由于三维组成零件数量较多,为保证预览截图的简洁性,本站将三维文件夹进行了打包。三维及CAD预览截图,均为本站电脑打开软件进行截图的,保证能够打开,下载原件超高清,下载后解压即可;
3、本站所有资源如无特殊说明,都需要本地电脑安装Office2007。图纸软件为AutoCAD,PROE,UG,SolidWorks,CATIA等;
4、本站所有图文资料仅供用户学习参考,不作为任何商用或其他用途;
5、本站不保证下载资源的准确性、安全性和完整性, 不包修改,不支持退换,同时也不承担用户因使用这些下载资源对自己和他人造成任何形式的伤害或损失;
6、 下载文件中如有侵权或不适当内容,请与我们联系,我们立即纠正。